Ga naar de hoofdinhoud Ga naar de zoekopdracht Ga naar de hoofdnavigatie
Advies
Sales Contact Image
Verkoop advies 030 202 5006
Onze hotline
Dagen
20% korting op dakbedekking | Code: ROOF20 | Prijsstijging vanaf mei als gevolg van hogere logistieke kosten

€ 7.879,00

-20% op dakbedekking | Code : ROOF20

Gemiddelde waardering van 4.7 van 5 sterren

(4)

Tuin- en Vrijetijdshuis Arizona

De hieronder geselecteerde accessoires worden aan de winkelwagen toegevoegd.
Purchase Advice Image
Persoonlijk product- en aankoopadvies gewenst Tel: 030 202 5006
Vragen over het product en extra deal binnen halen?
Levertijd 6-7 weken
Paid Delivery Icon
Veilig betalen
Skonto Icon
3% korting bij vooruitbetaling
Productvarianten
Beschermende impregnering kiezen:
Zonder beschermende impregnering
Wanddikte kiezen:
44 mm Wanddikte
Levering in gewenst tijdvak
Passende accessoires bij dit product
Productbeschrijving

Een absoluut hoogtepunt van ons assortiment is het Arizona tuin- en recreatiehuis met geïntegreerde slaapzolder, dat populair is bij klanten en perfect is voor rustige nachten op het platteland. De overige drie kamers bieden veel extra ruimte, zodat het huis kan worden omgebouwd tot een volwaardige leefruimte en je een toevluchtsoord in je tuin kunt creëren dat permanent kan worden gebruikt.

Artikelgegevens voor het Arizona tuin- en recreatiehuis:

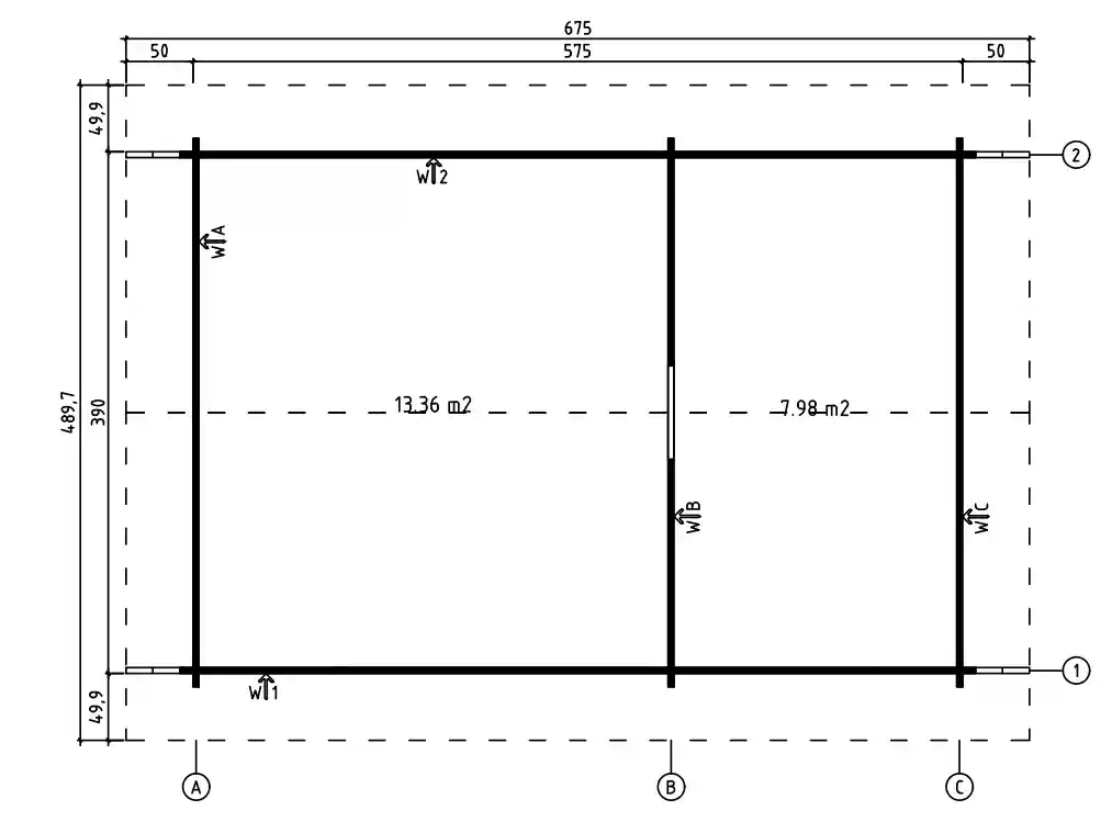
  • Buitenafmetingen: 675 x 490 cm
  • Afmetingen basis: 566 x 381 cm
  • Vloeroppervlak: 22,4 m²
  • Hoogte zijwanden: ca. 234 cm
  • Totale hoogte: ca. 331 cm
  • Luifel: ca. 50 cm (rechts & links)
  • Volume: ca. 63,2 m³
  • Glulam dubbele deur: ca. 149 x 196 cm
  • 2 x binnendeuren: ca. 84 x 190 cm
  • 1 x draai/kiep enkel raam: ca. 88 x 88 cm
  • 1 x draai/kiep dubbel raam: ca. 129 x 99 cm
  • 1 x draai/kiep enkel raam (slaapzolder): ca. 54 x 54 cm
  • Wanddikte: 44 mm

Inbegrepen bij de levering van het Arizona tuin- en recreatiehuis:

  • Massief houten dak van rabatdelen
  • Alle logs met 4-voudig gefreesde hoeken (wind- en regendicht)
  • Deuren & ramen met ISO-glas en rubberen afdichtingen
  • Hoogwaardige dubbele deur met verlijmd houten frame
  • Hoogwaardige roestvrijstalen deurdrempel
  • 2 x hoogwaardige massief houten binnendeuren
  • 3 x hoogwaardige ramen met draai-/kiepfunctie
  • Stevige slaapzolder met ladder/trap
  • Stormstangen voor windbescherming
  • Slot, krukgarnituur & montagemateriaal
  • Geleverd in natuurlijke afwerking zonder kleurbehandeling
Accessoires en services
3 Accessoire(s) zijn zojuist geselecteerd (inclusief onze aanbevelingen). De juiste hoeveelheden zijn vooraf ingesteld.

Dit heb je nodig voor de montage

Spaarset Basisaccessoires en Montage S

Meer details weergeven

Spaarset Basisaccessoires en Montage S

Basis accessoire set met besparingen tot 20% vergeleken met losse aankopen!

De perfecte set voor de veilige montage en verankering van je tuinhuisje - biedt betrouwbare bescherming tegen vocht, wind en storm. Met slechts één klik krijg je alle belangrijke onderdelen in voldoende hoeveelheid voor een duurzame en stabiele structuur.

Bestaande uit:

  • Vochtscherm (ca. 50 stuks) van speciaal rubbergranulaat - beschermt tegen optrekkend vocht, egaliseert oneffenheden en zorgt voor drainage en luchtcirculatie.
  • Stormbeugels (set: 4 stuks) - Voor het stevig bevestigen van het tuinhuisje aan de fundering (schroeven & pluggen niet inbegrepen).
  • Windverankeringsset (set voor 2 zijden) - Verbindt de bovenste en onderste stammen en voorkomt dat ze uit elkaar worden geduwd tijdens stormen.

Onze aanbeveling

Voor optimale en permanente bescherming tegen storm en vocht raden we het gecombineerde gebruik van alle onderdelen in de set aan. Zo is je tuinhuisje optimaal beveiligd en betrouwbaar beschermd tegen weer en wind.

€ 139,00

Besparing set shingle dakbedekking - 39 m²

Meer details weergeven

Besparing set shingle dakbedekking - 39 m²

Je allround zorgeloos pakket voor een regenbestendig dak - met de complete set dakshingles bespaar je tot wel 20% vergeleken met wanneer je ze afzonderlijk koopt!

Leveringsomvang voor dakoppervlakken tot 39 m²:

- Premium rechthoekige dakshingles zwart (17 verpakkingen van elk 3 m²)

- Ondutiss Strong Air 120 onderspanbaan (5 rollen)

- Viltspijkers (14 pakken)

- Bitumenlijm (4 tubes)

Premium rechthoekige dakshingles zwart:

Onze premium rechthoekige bitumen dakshingles maken indruk met een hoogwaardige dragerlaag van robuust glasvlies en een elegant, intens gekleurd mineraalgranulaat aan de bovenkant. Deze combinatie zorgt niet alleen voor een elegant uiterlijk, maar ook voor maximale bescherming: de shingles voorkomen op betrouwbare wijze dat water binnendringt, bieden een wind- en UV-bestendig oppervlak en geven je dak een elegante, onderhoudsvriendelijke look - langdurige schoonheid en betrouwbare weerbestendigheid.

Ondutiss Strong Air 120 onderlaagmembraan:

Het hoogwaardige, drielaagse polypropyleen onderlaag- en bekistingsmembraan biedt betrouwbare bescherming tegen wind en vocht en ondersteunt efficiënte thermische isolatie.

- Afmeting: 10 x 1 m

Dakviltpinnen:

De dakviltpinnen worden gebruikt voor een robuuste en weerbestendige bevestiging van de shingles en de onderlaagmembraan. Hun gegalvaniseerde oppervlak biedt een betrouwbare bescherming tegen corrosie.

- Afmetingen: 2,5 x L 15 mm

- Ø kop: 8 mm

- Gegalvaniseerd

- Hoeveelheid: ca. 200 g = ca. 133 stuks

Bitumenlijm:

Met deze hoogwaardige bitumenlijm kun je naast de dakviltstiften ook windgevoelige shingles bevestigen en zo zorgen voor de ideale duurzaamheid van je dak - ook perfect voor snelle, betrouwbare reparaties. De lijm is direct klaar voor gebruik - niet verdunnen, niet verwarmen, gewoon aanbrengen en bevestigen.
Voor optimale hechting: Zorg ervoor dat het oppervlak schoon, droog en vrij van zand, bladeren of ander vuil is. Het oppervlak mag niet bevroren of bedekt zijn met vorst.

- Kleur: zwart

- Inhoud: 310 ml

- Voor gebruik op hout en bitumen

De accessoireverpakking is geoptimaliseerd voor de gebruikelijke benodigde hoeveelheden Afhankelijk van het type bevestiging en overlap kan het materiaalverbruik iets variëren.

€ 999,00

Nokbedekking zadeldak

Meer details weergeven

Nokbedekking zadeldak

Voor een perfecte afdichting van de nokvoeg van de dakbedekking

  • Aluminium
  • antraciet - grijs gepoedercoat
  • Zijlengte: 12,5 cm
  • Lengte: 2 m
  • Dikte: 0,8 mm
  • Wijzig het aantal nokafdekkingen naar het gewenste aantal.

Incl. blikschroeven

€ 49,00

Dakrandfolie om Gevelplanken te bedekken

Meer details weergeven

Dakrandfolie om Gevelplanken te bedekken

Gevelplaat om de gevelplanken af te dekken.

  • Kleur: Antraciet
  • Materiaal: Gepoedercoat aluminium
  • Dikte: 0,8 mm
  • Diepte: 120 mm
  • Hoogte: 50 mm
  • Hoogte druiprand: 15 mm
  • Lengte: 2 m

Incl. blikschroeven

€ 39,00

Gootset RG 100 - voor 2 dakzijden tot 9 m elk - Antraciet metallic

Meer details weergeven

Gootset RG 100 - voor 2 dakzijden tot 9 m elk - Antraciet metallic

Voor blokhutten met zijlengtes tot 9 m, complete set voor 2 houten huiszijden.

Marley dakgootsets beschermen de muren en funderingen van tuinhuizen en blokhutten op een veilige en betrouwbare manier tegen schade veroorzaakt door regenwater.

Voordelen:

  • Complete set met dakgoten, regenpijpen en bevestigingsmateriaal.
  • Gemakkelijk te monteren
  • Alles compleet in de set
  • Bestand tegen weer, UV en temperatuur
  • Slagvaste kunststof van hoge kwaliteit
  • Topkwaliteit - Made in Germany
  • 10 jaar garantie

Inhoud van de set:

  • 8x goot, halfrond 2 m RG 100
  • 4x goot, halfrond 1 m RG 100
  • 8x gootverbindingsschaal RG 100
  • 8x eindstuk voor links en rechts RG 100
  • 36x gootbeugel RG 100
  • 36x Afstelbeugel voor gootbeugel
  • 4x verbindingsstuk RG 100 / DN 75
  • 8x pijpbocht DN 75, 45
  • 4x standpijp DN 75 2 m
  • 8x buisklem met oogbout

€ 879,00

Voor blokhutten met zijlengtes tot 9 m, complete set voor 2 houten huiszijden.

Marley dakgootsets beschermen de muren en funderingen van tuinhuizen en blokhutten op een veilige en betrouwbare manier tegen schade veroorzaakt door regenwater.

Voordelen:

  • Complete set met dakgoten, regenpijpen en bevestigingsmateriaal.
  • Gemakkelijk te monteren
  • Alles compleet in de set
  • Bestand tegen weer, UV en temperatuur
  • Slagvaste kunststof van hoge kwaliteit
  • Topkwaliteit - Made in Germany
  • 10 jaar garantie

Inhoud van de set:

  • 8x goot, halfrond 2 m RG 100
  • 4x goot, halfrond 1 m RG 100
  • 8x gootverbindingsschaal RG 100
  • 8x eindstuk voor links en rechts RG 100
  • 36x gootbeugel RG 100
  • 36x Afstelbeugel voor gootbeugel
  • 4x verbindingsstuk RG 100 / DN 75
  • 8x pijpbocht DN 75, 45
  • 4x standpijp DN 75 2 m
  • 8x buisklem met oogbout

Voor blokhutten met zijlengtes tot 9 m, complete set voor 2 houten huiszijden.

Marley dakgootsets beschermen de muren en funderingen van tuinhuizen en blokhutten op een veilige en betrouwbare manier tegen schade veroorzaakt door regenwater.

Voordelen:

  • Complete set met dakgoten, regenpijpen en bevestigingsmateriaal.
  • Gemakkelijk te monteren
  • Alles compleet in de set
  • Bestand tegen weer, UV en temperatuur
  • Slagvaste kunststof van hoge kwaliteit
  • Topkwaliteit - Made in Germany
  • 10 jaar garantie

Inhoud van de set:

  • 8x goot, halfrond 2 m RG 100
  • 4x goot, halfrond 1 m RG 100
  • 8x gootverbindingsschaal RG 100
  • 8x eindstuk voor links en rechts RG 100
  • 36x gootbeugel RG 100
  • 36x Afstelbeugel voor gootbeugel
  • 4x verbindingsstuk RG 100 / DN 75
  • 8x pijpbocht DN 75, 45
  • 4x standpijp DN 75 2 m
  • 8x buisklem met oogbout

Gootingang

Meer details weergeven

Gootingang

Een gootstuk is de professionele afwerking van de dakrand. Het is de overgangsplaat van het dakoppervlak naar de dakgoot. Het inzetstuk zorgt voor een gecontroleerde instroom van water in de goot.

Materiaal: gegalvaniseerd staal, poedercoating

Afmetingen: A:60 mm, B:125 mm, D:15 mm

Lengte: 200 cm

Dikte: 0,50 mm

Incl. blikschroeven

€ 39,00

Levering in gewenst tijdvak en services

Comfortgarantie

Meer details weergeven

Comfortgarantie

Welke producten worden door de comfortgarantie gedekt?

Onze comfortgarantie geldt uitsluitend voor producten die voor privégebruik bedoeld zijn. Daaronder vallen:

  • Tuinhuisjes en schuren – een plek om te ontspannen of om spullen op te bergen
  • Sauna’s – voor ontspanning en wellness in je eigen huis
  • Speeltoestellen voor kinderen – voor urenlang veilig speelplezier
  • Houten tuinpaviljoens – jouw eigen stukje paradijs in de tuin
  • Carports – betrouwbare bescherming tegen regen, sneeuw en zon
  • Garages – veilige opslag voor je voertuig en extra bergruimte

Je kunt vertrouwen op de kwaliteit van je product. Gaat er toch iets mis? Dan lossen we het snel voor je op.

Wat valt er onder de Comfortgarantie?

Met de comfortgarantie ben je goed beschermd. Gaat er iets kapot? Dan ontvang je gratis de juiste vervangende onderdelen voor:

  • Deuren – glasschade tot € 200
  • Ramen – glasschade tot € 200
  • Dakgoten – voor een goede waterafvoer
  • Deursloten – voor optimale veiligheid
  • Hang- en sluitwerk – voor het vervangen van kleine maar essentiële onderdelen
  • Dakbedekking – zoals dakleer, shingles of KSK-folie

Belangrijk om te weten:

De comfortgarantie dekt uitsluitend de levering van vervangende onderdelen. De installatie is niet inbegrepen en moet je zelf uitvoeren.
Met de comfortgarantie ben je optimaal beschermd en geniet je zonder zorgen van je product.

Garantievoorwaarden
Alle details en aanvullende informatie over de comfortgarantie.

Vragen?
Onze klantenservice helpt je graag verder!

€ 69,00

Accessoires voor je product

PGH hardwasolie 2,5 L

Meer details weergeven

PGH hardwasolie 2,5 L

Hoogwaardige hardwaxolie voor binnen

Onze hardwaxolie biedt een hoogwaardige oplossing voor het gronden en behandelen van verschillende absorberende interieuroppervlakken. Met een zijdematte, slijtvaste afwerking die natuurlijke texturen doet herleven en tinten verdiept, biedt het de beste resultaten voor houten, kurk- en stenen vloeren en andere oppervlakken. Gemakkelijk in gebruik en getest volgens de hoogste normen, is het de ideale keuze voor professionele resultaten.

Artikelgegevens van de hardwaxolie:

  • Toepassing: Voorstrijken en behandelen van zuigende ondergronden binnenshuis.

  • Eigenschappen: Zijdemat oppervlak, verdiept de kleur, waterafstotend.
  • Getest op chemische weerstand en migratie.
  • Ingrediënten: Lijnolie, houtolie, ricinusolie, natuurlijke harsester, andere.
  • VOC-gehalte: Max. 440 g/l (EU-grenswaarde: max. 500 g/l).
  • Toepassing: Schudden voor gebruik, dun aanbrengen, polijsten.
  • Droogtijd: Ca. 6-12 uur, overschilderbaar na 16-24 uur.
  • Verbruik: 30-50 g/m²; dekking ca. 20 m²/l.
  • Opslag: Koel, droog en ongeopend ten minste 24 maanden houdbaar.
  • Verwijdering: Volgens plaatselijke voorschriften.
  • Opmerkingen: Kleurgegevens niet bindend, proeflaag aanbevolen.

€ 79,00

Weerbeschermingskleurenset M - tot 48 m² - Schwedenrot - Wetterschutzfarbe

Meer details weergeven

Weerbeschermingskleurenset M - tot 48 m² - Schwedenrot - Wetterschutzfarbe

Onze weersbestendige kleurenset M - tot 48 m² beschermt hout buiten op betrouwbare wijze tegen zon, regen, kou en UV-straling. De elastische coatinglaag zorgt voor langdurige bescherming en een egaal, gekleurd oppervlak.

De milieuvriendelijke, halfglanzende rode houtkleur is bijzonder duurzaam, bladdert niet af en is ideaal voor ruw gezaagd hout en alle houten constructies buiten.

  • Goede dekking
  • Weer- en UV-bestendig
  • Waterdampdoorlatend
  • Elastische coatinglaag
  • Filmbescherming tegen schimmelaantasting
  • Bestand tegen speeksel en transpiratie (DIN 53 160)

Voordat je je hout de definitieve look geeft met de weerbestendige verf, heeft het de juiste voorbereiding nodig. Dat is precies waar onze houtgrondverf met open poriën voor gemaakt is.

Deze dringt diep door in het hout, blijft ademen en zorgt voor een ideale hechting van je volgende laag. Zo haal je het beste uit je houtbeits of -lak - zowel visueel als technisch.

Waarom je moet primen:

  • Optimale hechting voor beitsen & vernissen
  • Open poriën & zeer effectief
  • Geschikt voor buiten
  • Met filmbescherming tegen schimmelaantasting
  • Weerbestendig na volledige droging

Leveringsomvang:

  • 2 x 2,5 l houtprimer
  • 3 x 2,5 l weerbeschermingsverf in Zweeds rood

€ 239,00

Onze weersbestendige kleurenset M - tot 48 m² beschermt hout buiten op betrouwbare wijze tegen zon, regen, kou en UV-straling. De elastische coatinglaag zorgt voor langdurige bescherming en een egaal, gekleurd oppervlak.

De milieuvriendelijke, halfglanzende rode houtkleur is bijzonder duurzaam, bladdert niet af en is ideaal voor ruw gezaagd hout en alle houten constructies buiten.

  • Goede dekking
  • Weer- en UV-bestendig
  • Waterdampdoorlatend
  • Elastische coatinglaag
  • Filmbescherming tegen schimmelaantasting
  • Bestand tegen speeksel en transpiratie (DIN 53 160)

Voordat je je hout de definitieve look geeft met de weerbestendige verf, heeft het de juiste voorbereiding nodig. Dat is precies waar onze houtgrondverf met open poriën voor gemaakt is.

Deze dringt diep door in het hout, blijft ademen en zorgt voor een ideale hechting van je volgende laag. Zo haal je het beste uit je houtbeits of -lak - zowel visueel als technisch.

Waarom je moet primen:

  • Optimale hechting voor beitsen & vernissen
  • Open poriën & zeer effectief
  • Geschikt voor buiten
  • Met filmbescherming tegen schimmelaantasting
  • Weerbestendig na volledige droging

Leveringsomvang:

  • 2 x 2,5 l houtprimer
  • 3 x 2,5 l weerbeschermingsverf in Zweeds rood

Onze weersbestendige kleurset M - tot 48 m² beschermt hout buiten op betrouwbare wijze tegen zon, regen, kou en UV-straling. De elastische verflaag zorgt voor langdurige bescherming en een egaal, gekleurd oppervlak.

De milieuvriendelijke, halfglanzende witte houtkleur is bijzonder duurzaam, bladdert niet af en is ideaal voor ruw gezaagd hout en alle houten constructies buiten.

  • Goede dekking
  • Weer- en UV-bestendig
  • Waterdampdoorlatend
  • Elastische coatinglaag
  • Filmbescherming tegen schimmelaantasting
  • Bestand tegen speeksel en transpiratie (DIN 53 160)

Voordat je je hout de definitieve look geeft met de weerbestendige verf, heeft het de juiste voorbereiding nodig. Dat is precies waar onze houtgrondverf met open poriën voor gemaakt is.

Deze dringt diep door in het hout, blijft ademen en zorgt voor een ideale hechting van je volgende laag. Zo haal je het beste uit je houtbeits of -lak - zowel visueel als technisch.

Waarom je moet primen:

  • Optimale hechting voor beitsen & vernissen
  • Open poriën & zeer effectief
  • Geschikt voor buiten
  • Met filmbescherming tegen schimmelaantasting
  • Weerbestendig na volledige droging

Leveringsomvang:

  • 2 x 2,5 l houtprimer
  • 3 x 2,5 l weerbeschermingskleur in wit

Onze weersbestendige kleurset M - tot 48 m² beschermt hout buiten op betrouwbare wijze tegen zon, regen, kou en UV-straling. De elastische verflaag zorgt voor langdurige bescherming en een egaal, gekleurd oppervlak.

De milieuvriendelijke, halfglanzende zwarte houtkleur is bijzonder duurzaam, bladdert niet af en is ideaal voor ruw gezaagd hout en alle houten constructies buiten.

  • Goede dekking
  • Weer- en UV-bestendig
  • Waterdampdoorlatend
  • Elastische coatinglaag
  • Filmbescherming tegen schimmelaantasting
  • Bestand tegen speeksel en transpiratie (DIN 53 160)

Voordat je je hout de definitieve look geeft met de weerbestendige verf, heeft het de juiste voorbereiding nodig. Dat is precies waar onze houtgrondverf met open poriën voor gemaakt is.

Deze dringt diep door in het hout, blijft ademen en zorgt voor een ideale hechting van je volgende laag. Zo haal je het beste uit je houtbeits of -lak - zowel visueel als technisch.

Waarom je moet primen:

  • Optimale hechting voor beitsen & vernissen
  • Open poriën & zeer effectief
  • Geschikt voor buiten
  • Met filmbescherming tegen schimmelaantasting
  • Weerbestendig na volledige droging

Leveringsomvang:

  • 2 x 2,5 l houtprimer
  • 3 x 2,5 l weerbeschermingskleur in zwart

Onze weersbestendige kleurset M - tot 48 m² beschermt hout buiten op betrouwbare wijze tegen zon, regen, kou en UV-straling. De elastische verflaag zorgt voor langdurige bescherming en een egaal, gekleurd oppervlak.

De milieuvriendelijke, halfglanzende antraciet houtverf is bijzonder duurzaam, schilfert niet en is ideaal voor ruw gezaagd hout en alle houten constructies buiten.

  • Goede dekking
  • Weer- en UV-bestendig
  • Waterdampdoorlatend
  • Elastische coatinglaag
  • Filmbescherming tegen schimmelaantasting
  • Bestand tegen speeksel en transpiratie (DIN 53 160)

Voordat je je hout de definitieve look geeft met de weerbestendige verf, heeft het de juiste voorbereiding nodig. Dat is precies waar onze houtgrondverf met open poriën voor gemaakt is.

Deze dringt diep door in het hout, blijft ademen en zorgt voor een ideale hechting van je volgende laag. Zo haal je het beste uit je houtbeits of -lak - zowel visueel als technisch.

Waarom je moet primen:

  • Optimale hechting voor beitsen & vernissen
  • Open poriën & zeer effectief
  • Geschikt voor buiten
  • Met filmbescherming tegen schimmelaantasting
  • Weerbestendig na volledige droging

Leveringsomvang:

  • 2 x 2,5 l houtprimer
  • 3 x 2,5 l antracietgrijze weerbestendige verf

Onze weersbestendige kleurenset M - tot 48 m² beschermt hout buiten op betrouwbare wijze tegen zon, regen, kou en UV-straling. De elastische coatinglaag zorgt voor langdurige bescherming en een egaal, gekleurd oppervlak.

De milieuvriendelijke, halfglanzende rode houtkleur is bijzonder duurzaam, bladdert niet af en is ideaal voor ruw gezaagd hout en alle houten constructies buiten.

  • Goede dekking
  • Weer- en UV-bestendig
  • Waterdampdoorlatend
  • Elastische coatinglaag
  • Filmbescherming tegen schimmelaantasting
  • Bestand tegen speeksel en transpiratie (DIN 53 160)

Voordat je je hout de definitieve look geeft met de weerbestendige verf, heeft het de juiste voorbereiding nodig. Dat is precies waar onze houtgrondverf met open poriën voor gemaakt is.

Deze dringt diep door in het hout, blijft ademen en zorgt voor een ideale hechting van je volgende laag. Zo haal je het beste uit je houtbeits of -lak - zowel visueel als technisch.

Waarom je moet primen:

  • Optimale hechting voor beitsen & vernissen
  • Open poriën & zeer effectief
  • Geschikt voor buiten
  • Met filmbescherming tegen schimmelaantasting
  • Weerbestendig na volledige droging

Leveringsomvang:

  • 2 x 2,5 l houtprimer
  • 3 x 2,5 l weerbeschermingsverf in Zweeds rood

Onze weersbestendige kleurset M - tot 48 m² beschermt hout buiten op betrouwbare wijze tegen zon, regen, kou en UV-straling. De elastische verflaag zorgt voor langdurige bescherming en een egaal, gekleurd oppervlak.

De milieuvriendelijke, halfglanzende witte houtkleur is bijzonder duurzaam, bladdert niet af en is ideaal voor ruw gezaagd hout en alle houten constructies buiten.

  • Goede dekking
  • Weer- en UV-bestendig
  • Waterdampdoorlatend
  • Elastische coatinglaag
  • Filmbescherming tegen schimmelaantasting
  • Bestand tegen speeksel en transpiratie (DIN 53 160)

Voordat je je hout de definitieve look geeft met de weerbestendige verf, heeft het de juiste voorbereiding nodig. Dat is precies waar onze houtgrondverf met open poriën voor gemaakt is.

Deze dringt diep door in het hout, blijft ademen en zorgt voor een ideale hechting van je volgende laag. Zo haal je het beste uit je houtbeits of -lak - zowel visueel als technisch.

Waarom je moet primen:

  • Optimale hechting voor beitsen & vernissen
  • Open poriën & zeer effectief
  • Geschikt voor buiten
  • Met filmbescherming tegen schimmelaantasting
  • Weerbestendig na volledige droging

Leveringsomvang:

  • 2 x 2,5 l houtprimer
  • 3 x 2,5 l weerbeschermingskleur in wit

Onze weersbestendige kleurset M - tot 48 m² beschermt hout buiten op betrouwbare wijze tegen zon, regen, kou en UV-straling. De elastische verflaag zorgt voor langdurige bescherming en een egaal, gekleurd oppervlak.

De milieuvriendelijke, halfglanzende zwarte houtkleur is bijzonder duurzaam, bladdert niet af en is ideaal voor ruw gezaagd hout en alle houten constructies buiten.

  • Goede dekking
  • Weer- en UV-bestendig
  • Waterdampdoorlatend
  • Elastische coatinglaag
  • Filmbescherming tegen schimmelaantasting
  • Bestand tegen speeksel en transpiratie (DIN 53 160)

Voordat je je hout de definitieve look geeft met de weerbestendige verf, heeft het de juiste voorbereiding nodig. Dat is precies waar onze houtgrondverf met open poriën voor gemaakt is.

Deze dringt diep door in het hout, blijft ademen en zorgt voor een ideale hechting van je volgende laag. Zo haal je het beste uit je houtbeits of -lak - zowel visueel als technisch.

Waarom je moet primen:

  • Optimale hechting voor beitsen & vernissen
  • Open poriën & zeer effectief
  • Geschikt voor buiten
  • Met filmbescherming tegen schimmelaantasting
  • Weerbestendig na volledige droging

Leveringsomvang:

  • 2 x 2,5 l houtprimer
  • 3 x 2,5 l weerbeschermingskleur in zwart

Onze weersbestendige kleurset M - tot 48 m² beschermt hout buiten op betrouwbare wijze tegen zon, regen, kou en UV-straling. De elastische verflaag zorgt voor langdurige bescherming en een egaal, gekleurd oppervlak.

De milieuvriendelijke, halfglanzende antraciet houtverf is bijzonder duurzaam, schilfert niet en is ideaal voor ruw gezaagd hout en alle houten constructies buiten.

  • Goede dekking
  • Weer- en UV-bestendig
  • Waterdampdoorlatend
  • Elastische coatinglaag
  • Filmbescherming tegen schimmelaantasting
  • Bestand tegen speeksel en transpiratie (DIN 53 160)

Voordat je je hout de definitieve look geeft met de weerbestendige verf, heeft het de juiste voorbereiding nodig. Dat is precies waar onze houtgrondverf met open poriën voor gemaakt is.

Deze dringt diep door in het hout, blijft ademen en zorgt voor een ideale hechting van je volgende laag. Zo haal je het beste uit je houtbeits of -lak - zowel visueel als technisch.

Waarom je moet primen:

  • Optimale hechting voor beitsen & vernissen
  • Open poriën & zeer effectief
  • Geschikt voor buiten
  • Met filmbescherming tegen schimmelaantasting
  • Weerbestendig na volledige droging

Leveringsomvang:

  • 2 x 2,5 l houtprimer
  • 3 x 2,5 l antracietgrijze weerbestendige verf

Set houtbeits - buiten M - tot 48 m² - Weiß - Lasur

Meer details weergeven

Set houtbeits - buiten M - tot 48 m² - Weiß - Lasur

Onze transparante houtbeits set - exterieur M - tot 48 m² voor buiten is ideaal voor het beschermen en decoratief coaten van hout. Het glazuur met open poriën is weer- en waterbestendig en behoudt de natuurlijke houtstructuur.

Met zijn filmbescherming tegen schimmel- en blauwvlekkenaantasting is de glazuur ideaal voor ramen, deuren, schuttingen, pergola's, dakoverstekken en houten lambriseringen.

Voordat je je hout de uiteindelijke look geeft met de houtbeits, heeft het de juiste voorbereiding nodig. Dat is precies waar onze houtprimer met open poriën voor gemaakt is.

Deze dringt diep door in het hout, blijft ademen en zorgt voor een ideale hechting van je volgende laag. Zo haal je het beste uit je houtbeits of -lak - zowel visueel als technisch.

Waarom je moet primen:

  • Optimale hechting voor beitsen & vernissen
  • Open poriën & zeer effectief
  • Geschikt voor buiten
  • Met filmbescherming tegen schimmelaantasting
  • Weerbestendig na volledige droging

Leveringsomvang:

  • 2 x 2,5 l houtprimer
  • 3 x 2,5 l houtbeits in transparant wit

€ 229,00

Onze transparante houtbeits set - exterieur M - tot 48 m² voor buiten is ideaal voor het beschermen en decoratief coaten van hout. Het glazuur met open poriën is weer- en waterbestendig en behoudt de natuurlijke houtstructuur.

Met zijn filmbescherming tegen schimmel- en blauwvlekkenaantasting is de glazuur ideaal voor ramen, deuren, schuttingen, pergola's, dakoverstekken en houten lambriseringen.

Voordat je je hout de uiteindelijke look geeft met de houtbeits, heeft het de juiste voorbereiding nodig. Dat is precies waar onze houtprimer met open poriën voor gemaakt is.

Deze dringt diep door in het hout, blijft ademen en zorgt voor een ideale hechting van je volgende laag. Zo haal je het beste uit je houtbeits of -lak - zowel visueel als technisch.

Waarom je moet primen:

  • Optimale hechting voor beitsen & vernissen
  • Open poriën & zeer effectief
  • Geschikt voor buiten
  • Met filmbescherming tegen schimmelaantasting
  • Weerbestendig na volledige droging

Leveringsomvang:

  • 2 x 2,5 l houtprimer
  • 3 x 2,5 l houtbeits in transparant wit

Onze transparante houtbeits set - exterieur M - tot 48 m² voor buiten is ideaal voor het beschermen en decoratief coaten van hout. Het glazuur met open poriën is weer- en waterbestendig en behoudt de natuurlijke houtstructuur.

Met zijn filmbescherming tegen schimmel- en blauwvlekkenaantasting is de glazuur ideaal voor ramen, deuren, schuttingen, pergola's, dakoverstekken en houten lambriseringen.

Voordat je je hout de uiteindelijke look geeft met de houtbeits, heeft het de juiste voorbereiding nodig. Dat is precies waar onze houtprimer met open poriën voor gemaakt is.

Deze dringt diep door in het hout, blijft ademen en zorgt voor een ideale hechting van je volgende laag. Zo haal je het beste uit je houtbeits of -lak - zowel visueel als technisch.

Waarom je moet primen:

  • Optimale hechting voor beitsen & vernissen
  • Open poriën & zeer effectief
  • Geschikt voor buiten
  • Met filmbescherming tegen schimmelaantasting
  • Weerbestendig na volledige droging

Leveringsomvang:

  • 2 x 2,5 l houtprimer
  • 3 x 2,5 l houtbeits in transparante grenen kleur

Onze transparante houtbeits set - exterieur M - tot 48 m² voor buiten isideaal voor het beschermen en decoratief coaten van hout. Het glazuur met open poriën is weer- en waterbestendig en behoudt de natuurlijke houtstructuur.

Met de filmbescherming tegen schimmel- en blauwschimmelaantasting is de beits ideaal voor ramen, deuren, hekken, pergola's, dakoverstekken en houten lambriseringen.

Voordat je je hout de uiteindelijke look geeft met de houtbeits, heeft het de juiste voorbereiding nodig. Dat is precies waar onze houtprimer met open poriën voor gemaakt is.

Deze dringt diep door in het hout, blijft ademen en zorgt voor een ideale hechting van je volgende laag. Zo haal je het beste uit je houtbeits of -lak - zowel visueel als technisch.

Waarom je moet primen:

  • Optimale hechting voor beitsen & vernissen
  • Open poriën & zeer effectief
  • Geschikt voor buiten
  • Met filmbescherming tegen schimmelaantasting
  • Weerbestendig na volledige droging

Leveringsomvang:

  • 2 x 2,5 l houtprimer
  • 3 x 2,5 l houtbeits in transparant lichtgrijs

Onze transparante houtbeits set - exterieur M - tot 48 m² voor buiten is ideaal voor het beschermen en decoratief coaten van hout. Het glazuur met open poriën is weer- en waterbestendig en behoudt de natuurlijke houtstructuur.

Met zijn filmbescherming tegen schimmel- en blauwvlekkenaantasting is de glazuur ideaal voor ramen, deuren, schuttingen, pergola's, dakoverstekken en houten lambriseringen.

Voordat je je hout de uiteindelijke look geeft met de houtbeits, heeft het de juiste voorbereiding nodig. Dat is precies waar onze houtprimer met open poriën voor gemaakt is.

Deze dringt diep door in het hout, blijft ademen en zorgt voor een ideale hechting van je volgende laag. Zo haal je het beste uit je houtbeits of -lak - zowel visueel als technisch.

Waarom je moet primen:

  • Optimale hechting voor beitsen & vernissen
  • Open poriën & zeer effectief
  • Geschikt voor buiten
  • Met filmbescherming tegen schimmelaantasting
  • Weerbestendig na volledige droging

Leveringsomvang:

  • 2 x 2,5 l houtprimer
  • 3 x 2,5 l houtbeits in transparant antracietgrijs

Onze transparante houtbeits set - exterieur M - tot 48 m² voor buiten is ideaal voor het beschermen en decoratief coaten van hout. Het glazuur met open poriën is weer- en waterbestendig en behoudt de natuurlijke houtstructuur.

Met zijn filmbescherming tegen schimmel- en blauwvlekkenaantasting is de glazuur ideaal voor ramen, deuren, schuttingen, pergola's, dakoverstekken en houten lambriseringen.

Voordat je je hout de uiteindelijke look geeft met de houtbeits, heeft het de juiste voorbereiding nodig. Dat is precies waar onze houtprimer met open poriën voor gemaakt is.

Deze dringt diep door in het hout, blijft ademen en zorgt voor een ideale hechting van je volgende laag. Zo haal je het beste uit je houtbeits of -lak - zowel visueel als technisch.

Waarom je moet primen:

  • Optimale hechting voor beitsen & vernissen
  • Open poriën & zeer effectief
  • Geschikt voor buiten
  • Met filmbescherming tegen schimmelaantasting
  • Weerbestendig na volledige droging

Leveringsomvang:

  • 2 x 2,5 l houtprimer
  • 3 x 2,5 l houtbeits in transparant wit

Onze transparante houtbeits set - exterieur M - tot 48 m² voor buiten is ideaal voor het beschermen en decoratief coaten van hout. Het glazuur met open poriën is weer- en waterbestendig en behoudt de natuurlijke houtstructuur.

Met zijn filmbescherming tegen schimmel- en blauwvlekkenaantasting is de glazuur ideaal voor ramen, deuren, schuttingen, pergola's, dakoverstekken en houten lambriseringen.

Voordat je je hout de uiteindelijke look geeft met de houtbeits, heeft het de juiste voorbereiding nodig. Dat is precies waar onze houtprimer met open poriën voor gemaakt is.

Deze dringt diep door in het hout, blijft ademen en zorgt voor een ideale hechting van je volgende laag. Zo haal je het beste uit je houtbeits of -lak - zowel visueel als technisch.

Waarom je moet primen:

  • Optimale hechting voor beitsen & vernissen
  • Open poriën & zeer effectief
  • Geschikt voor buiten
  • Met filmbescherming tegen schimmelaantasting
  • Weerbestendig na volledige droging

Leveringsomvang:

  • 2 x 2,5 l houtprimer
  • 3 x 2,5 l houtbeits in transparante grenen kleur

Onze transparante houtbeits set - exterieur M - tot 48 m² voor buiten isideaal voor het beschermen en decoratief coaten van hout. Het glazuur met open poriën is weer- en waterbestendig en behoudt de natuurlijke houtstructuur.

Met de filmbescherming tegen schimmel- en blauwschimmelaantasting is de beits ideaal voor ramen, deuren, hekken, pergola's, dakoverstekken en houten lambriseringen.

Voordat je je hout de uiteindelijke look geeft met de houtbeits, heeft het de juiste voorbereiding nodig. Dat is precies waar onze houtprimer met open poriën voor gemaakt is.

Deze dringt diep door in het hout, blijft ademen en zorgt voor een ideale hechting van je volgende laag. Zo haal je het beste uit je houtbeits of -lak - zowel visueel als technisch.

Waarom je moet primen:

  • Optimale hechting voor beitsen & vernissen
  • Open poriën & zeer effectief
  • Geschikt voor buiten
  • Met filmbescherming tegen schimmelaantasting
  • Weerbestendig na volledige droging

Leveringsomvang:

  • 2 x 2,5 l houtprimer
  • 3 x 2,5 l houtbeits in transparant lichtgrijs

Onze transparante houtbeits set - exterieur M - tot 48 m² voor buiten is ideaal voor het beschermen en decoratief coaten van hout. Het glazuur met open poriën is weer- en waterbestendig en behoudt de natuurlijke houtstructuur.

Met zijn filmbescherming tegen schimmel- en blauwvlekkenaantasting is de glazuur ideaal voor ramen, deuren, schuttingen, pergola's, dakoverstekken en houten lambriseringen.

Voordat je je hout de uiteindelijke look geeft met de houtbeits, heeft het de juiste voorbereiding nodig. Dat is precies waar onze houtprimer met open poriën voor gemaakt is.

Deze dringt diep door in het hout, blijft ademen en zorgt voor een ideale hechting van je volgende laag. Zo haal je het beste uit je houtbeits of -lak - zowel visueel als technisch.

Waarom je moet primen:

  • Optimale hechting voor beitsen & vernissen
  • Open poriën & zeer effectief
  • Geschikt voor buiten
  • Met filmbescherming tegen schimmelaantasting
  • Weerbestendig na volledige droging

Leveringsomvang:

  • 2 x 2,5 l houtprimer
  • 3 x 2,5 l houtbeits in transparant antracietgrijs
Beoordelingen

Gemiddelde waardering van 4.7 van 5 sterren

(4)

Gemiddelde waardering van 4.7 van 5 sterren

(4 Beoordelingen)

Gemiddelde waardering van 5 van 5 sterren

Gemiddelde waardering van 5 van 5 sterren

Gemiddelde waardering van 5 van 5 sterren

Gemiddelde waardering van 4 van 5 sterren

Productdetails
Details:
Wanddikte
44
Type materiaal
Noords sparrenhout | Pijnboom
Oppervlaktebehandeling
Zonder
Basiskleur
Onbehandeld
Vloeroppervlak
22,4
Totale afmetingen (cm)
675 x 490
Totale hoogte
331
Volume
63,2
spiegelbeeld constructie mogelijk voor
Ja
Vloer
Als accessoires
Bouwwijze
Blokplankenbouw
Met slaapzolder
Inclusief
Dakvorm
Zadeldak
Dakoppervlak (m²)
37,1
Dakhelling
27
Dakbedekking
Zonder
Binnenafmetingen (cm)
571 x 386
Aantal kamers
Diverse
Afmetingen van de basis (cm)
566 x 381
Afmetingen deuren (cm)
149 x 196 cm | 84 x 190 cm | 84 x 190 cm
Aantal ramen
3
Uitvoering ramen
Draai-kantelraam
Afmetingen ramen (cm)
129 x 99 cm | 88 x 88 cm | 54 x 54 cm
Beglazing
Isolerend glas

Populaire producten