Ga naar de hoofdinhoud Ga naar de zoekopdracht Ga naar de hoofdnavigatie
Advies
Sales Contact Image
Verkoop advies 030 202 5006
Onze hotline
Dagen
-33% op accessoires | Code: ACCESSOIRES33

€ 3.059,00

Gemiddelde waardering van 4.8 van 5 sterren

(5)

Tuinhuis Atrium F

De hieronder geselecteerde accessoires worden aan de winkelwagen toegevoegd.
Purchase Advice Image
Persoonlijk product- en aankoopadvies gewenst Tel: 030 202 5006
Vragen over het product en extra deal binnen halen?
Levertijd 6-7 weken
Paid Delivery Icon
Veilig betalen
Skonto Icon
2% korting bij vooruitbetaling
Productvarianten
Beschermende impregnering kiezen:
Zonder beschermende impregnering
Wanddikte kiezen:
34 mm Wandstärke
Levering in gewenst tijdvak
Passende accessoires bij dit product
Productbeschrijving

Details van het tuinhuis Atrium F:

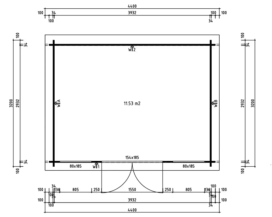
  • Afmetingen bodem: 397 x 297 cm
  • Vloeroppervlak: ongeveer 12 m²
  • Volume: ca. 24,6 m³
  • Wanddikte: 34 mm

Inbegrepen bij het tuinhuis Atrium F:

  • Massief houten dak van rabatdelen
  • Alle logs met 4-voudig gefreesde hoeken (wind- en regendicht)
  • Beglazing voor deuren en ramen met ISO-glas
  • Hoogwaardige dubbele deur met verlijmd houten frame
  • Hoogwaardige aluminium drempel
  • Vaste premium ramen van vloer tot plafond met aluminium waterkering
  • Stormlijsten voor windbescherming
  • Slot, krukgarnituur & montagemateriaal
  • Geleverd in naturel zonder kleurbehandeling
  • Als er glaslatten bij ramen of deuren worden geleverd, worden deze apart geleverd.
    Dit betekent dat je altijd de keuze hebt om het huis te ontwerpen in een klassieke look met glasroeden/houten dwarsbalken of een modernere look zonder glasroeden.
Accessoires en services
3 Accessoire(s) zijn zojuist geselecteerd (inclusief onze aanbevelingen). De juiste hoeveelheden zijn vooraf ingesteld.

Dit heb je nodig voor de montage

Spaarset Basisaccessoires en Montage S

Meer details weergeven

Spaarset Basisaccessoires en Montage S

Basis accessoire set met besparingen tot 20% vergeleken met losse aankopen!

De perfecte set voor de veilige montage en verankering van je tuinhuisje - biedt betrouwbare bescherming tegen vocht, wind en storm. Met slechts één klik krijg je alle belangrijke onderdelen in voldoende hoeveelheid voor een duurzame en stabiele structuur.

Bestaande uit:

  • Vochtscherm (ca. 50 stuks) van speciaal rubbergranulaat - beschermt tegen optrekkend vocht, egaliseert oneffenheden en zorgt voor drainage en luchtcirculatie.
  • Stormbeugels (set: 4 stuks) - Voor het stevig bevestigen van het tuinhuisje aan de fundering (schroeven & pluggen niet inbegrepen).
  • Windverankeringsset (set voor 2 zijden) - Verbindt de bovenste en onderste stammen en voorkomt dat ze uit elkaar worden geduwd tijdens stormen.

Onze aanbeveling

Voor optimale en permanente bescherming tegen storm en vocht raden we het gecombineerde gebruik van alle onderdelen in de set aan. Zo is je tuinhuisje optimaal beveiligd en betrouwbaar beschermd tegen weer en wind.

€ 139,00

Spaarset Universeel houten Vloer set 15 m² - 18 mm Natuurlijke vloer

Meer details weergeven

Spaarset Universeel houten Vloer set 15 m² - 18 mm Natuurlijke vloer

Universele set houten vloeren met besparingen tot 20% in vergelijking met afzonderlijke aankopen!

Past bij het huis - Met deze set heb je met één klik het juiste aantal houten vloerpakketten voor je gewenste product.

Inhoud van de set:

  • Planken met messing en groef, 18 mm dik, natuurlijke afwerking
  • Passend aantal plinten, met of zonder fabrieksimpregnatie
  • onder druk geïmpregneerd funderingshout
  • de kleur van de impregnering kan afwijken van die van het huis
  • Materiaal: Scandinavisch vurenhout

Houd er rekening mee dat de vloer op maat moet worden gemaakt. Bij de set worden gedetailleerde montage-instructies geleverd.

Deze set is berekend voor huizen met een vloeroppervlak van 12,01 - 15 m². Als je twijfelt, raden we je aan de items afzonderlijk te kopen.

€ 899,00

Universele set houten vloeren met besparingen tot 20% in vergelijking met afzonderlijke aankopen!

Past bij het huis - Met deze set heb je met één klik het juiste aantal houten vloerpakketten voor je gewenste product.

Inhoud van de set:

  • Planken met messing en groef, 18 mm dik, natuurlijke afwerking
  • Passend aantal plinten, met of zonder fabrieksimpregnatie
  • onder druk geïmpregneerd funderingshout
  • de kleur van de impregnering kan afwijken van die van het huis
  • Materiaal: Scandinavisch vurenhout

Houd er rekening mee dat de vloer op maat moet worden gemaakt. Bij de set worden gedetailleerde montage-instructies geleverd.

Deze set is berekend voor huizen met een vloeroppervlak van 12,01 - 15 m². Als je twijfelt, raden we je aan de items afzonderlijk te kopen.

Universele set houten vloeren met besparingen tot 20% in vergelijking met afzonderlijke aankopen!

Past bij het huis - Met deze set heb je met één klik het juiste aantal houten vloerpakketten voor je gewenste product.

Inhoud van de set:

  • Tand en groef planken, 28 mm dik, met fabrieksimpregnatie
  • Passend aantal plinten, met of zonder fabrieksimpregnatie
  • onder druk geïmpregneerd funderingshout
  • de kleur van de impregnering kan afwijken van die van het huis
  • Materiaal: Scandinavisch vurenhout

Houd er rekening mee dat de vloer op maat moet worden gemaakt. Bij de set worden gedetailleerde montage-instructies geleverd.

Deze set is berekend voor huizen met een vloeroppervlak van 12,01 - 15 m². Als je twijfelt, raden we je aan de items afzonderlijk te kopen.

Universele set houten vloeren met besparingen tot 20% in vergelijking met afzonderlijke aankopen!

Past bij het huis - Met deze set heb je met één klik het juiste aantal houten vloerpakketten voor je gewenste product.

Inhoud van de set:

  • Planken met messing en groef, 18 mm dik, natuurlijke afwerking
  • Passend aantal plinten, met of zonder fabrieksimpregnatie
  • onder druk geïmpregneerd funderingshout
  • de kleur van de impregnering kan afwijken van die van het huis
  • Materiaal: Scandinavisch vurenhout

Houd er rekening mee dat de vloer op maat moet worden gemaakt. Bij de set worden gedetailleerde montage-instructies geleverd.

Deze set is berekend voor huizen met een vloeroppervlak van 12,01 - 15 m². Als je twijfelt, raden we je aan de items afzonderlijk te kopen.

Universele set houten vloeren met besparingen tot 20% in vergelijking met afzonderlijke aankopen!

Past bij het huis - Met deze set heb je met één klik het juiste aantal houten vloerpakketten voor je gewenste product.

Inhoud van de set:

  • Tand en groef planken, 28 mm dik, met fabrieksimpregnatie
  • Passend aantal plinten, met of zonder fabrieksimpregnatie
  • onder druk geïmpregneerd funderingshout
  • de kleur van de impregnering kan afwijken van die van het huis
  • Materiaal: Scandinavisch vurenhout

Houd er rekening mee dat de vloer op maat moet worden gemaakt. Bij de set worden gedetailleerde montage-instructies geleverd.

Deze set is berekend voor huizen met een vloeroppervlak van 12,01 - 15 m². Als je twijfelt, raden we je aan de items afzonderlijk te kopen.

Premium voordelige set EPDM dakbedekking - 4 x 5,2 m

Meer details weergeven

Premium voordelige set EPDM dakbedekking - 4 x 5,2 m

Jouw onderhoudsvrije totaalpakket voor een langdurig regenbestendig dak - de EPDM complete set voor een speciale prijs met 20 jaar fabrieksgarantie!

Leveringsomvang:

- EPDM folie op maat gesneden: 4,0 x 5,2 m

- Oppervlakte lijm

- Rol met handvat

- Hoekprofiel type 1c (10 stuks) incl. blikschroeven met afdichtschijven

EPDM folie:

Ervaar dakafdichting op het hoogste niveau - eenvoudig, veilig, duurzaam en duurzaam. Onze EPDM dakbaan maakt indruk met een combinatie van uitstekende duurzaamheid, milieuvriendelijkheid en moeiteloze verwerking.

20 jaar fabrieksgarantie - voor maximale veiligheid en vertrouwen in kwaliteit.
Levensverwachting van meer dan 50 jaar - een investering die generaties lang meegaat.
Goedgekeurde dakafdichting - getest en gecertificeerd voor professioneel gebruik.
Duurzaam & recyclebaar - kan aan het einde van de levensduur op een milieuvriendelijke manier worden weggegooid bij het huishoudelijk afval.
Wortelbestendig - ideaal voor het vergroenen van je dak en ecologisch bouwen.
Eenvoudig te installeren - geen speciaal gereedschap, geen gasbrander, geen lasapparatuur nodig.
Naadloze afdichting uit één stuk - beschermt betrouwbaar tegen vocht en weersinvloeden.

Vertrouw op EPDM - de slimme oplossing voor je dak die duurzaamheid, milieubewustzijn en gebruiksvriendelijkheid perfect combineert.

- Afmeting folie: 4,0 m x 5,2 m

- Dikte: 1,2 mm

- Gewicht per oppervlakte-eenheid: 1,5 kg/m²

- Hoge temperatuurstabiliteit van -45 °C tot +130 °C

- Vrij van weekmakers

- UV-bestendig, ozonbestendig

- Blijvend elastisch, breukrek > 300

Hoekprofiel type 1c:

Voor een duurzame en veilige dakbedekking: Het aluminium hoekprofiel type 1c beschermt de overgangen tussen de dakbedekking en de dakrand op betrouwbare wijze tegen binnendringend vocht. Het biedt niet alleen een duurzame houvast, maar ook een schone, visueel aantrekkelijke dakafwerking - ideaal voor platte daken en daken met één dakhelling.

- Materiaal: Aluminium

- Kleur: Antraciet poedercoating

- Lengte: 2 m

- Dikte: 0,8 mm

Tinsmidschroeven met afdichtschijven:

De hoogwaardige tinsmidschroeven met afdichtschijf zorgen voor een blijvend stevige en stabiele bevestiging van de hoekprofielen. Tip: Voor de beste houvast raden we 4 schroeven per profiel aan.

- Afmetingen: 4,5 mm diameter en 20 mm lengte / Torx

- Kleur: Antraciet RAL 7016

Het accessoirepakket is geoptimaliseerd voor de gebruikelijke benodigde hoeveelheden. Het materiaalverbruik kan licht variëren afhankelijk van het type bevestiging en overlapping.

€ 1.479,00

Dakgotenset box, antraciet metallic - monopitch dak voor 1 dakzijde tot 6 m

Meer details weergeven

Dakgotenset box, antraciet metallic - monopitch dak voor 1 dakzijde tot 6 m

Voor blokhutten met zijlengtes tot 6 m, complete set voor 1 houten huiszijde.

Marley dakgootsets beschermen de muren en funderingen van tuinhuizen en blokhutten veilig en betrouwbaar tegen schade veroorzaakt door regenwater.

Voordelen:

  • Complete set met dakgoten, regenpijpen en bevestigingsmateriaal.
  • Gemakkelijk te monteren
  • Alles compleet in de set
  • Bestand tegen weer, UV en temperatuur
  • Slagvaste kunststof van hoge kwaliteit
  • Topkwaliteit - Made in Germany
  • 10 jaar garantie

Inhoud van de set:

  • 3x goot 70, 2 m
  • 2x gootverbindingsschaal 70
  • 2x eindstuk voor linker en rechter
  • 1x verbindingsstuk 70/ DN53
  • 13x instelhoek voor gootbeugel
  • 1x standpijp DN 53, 2m
  • 2x pijpbocht DN 53, 45°
  • 1x buisklem met oogbout

€ 159,00

Gootingang

Meer details weergeven

Gootingang

Een gootstuk is de professionele afwerking van de dakrand. Het is de overgangsplaat van het dakoppervlak naar de dakgoot. Het inzetstuk zorgt voor een gecontroleerde instroom van water in de goot.

Materiaal: gegalvaniseerd staal, poedercoating

Afmetingen: A:60 mm, B:125 mm, D:15 mm

Lengte: 200 cm

Dikte: 0,50 mm

Incl. blikschroeven

€ 39,00

Downpipe set F1 DN60 voor EPDM - Niet voor KSK

Meer details weergeven

Downpipe set F1 DN60 voor EPDM - Niet voor KSK

Voor Afwatering van dakbreedtes tot 300 cm

Downpipe set DN 60 Antraciet met inlaataansluiting

Diameter van de ring: 120 mm
Diameter van de buis: 60 mm

Dakhoogte tot 250 cm

1 set karton met

  • Gootuitgang
  • Downpipe
  • Bogen
  • Pijpklemmen

 

€ 129,00

Levering in gewenst tijdvak en services

Comfortgarantie

Meer details weergeven

Comfortgarantie

Welke producten worden door de comfortgarantie gedekt?

Onze comfortgarantie geldt uitsluitend voor producten die voor privégebruik bedoeld zijn. Daaronder vallen:

  • Tuinhuisjes en schuren – een plek om te ontspannen of om spullen op te bergen
  • Sauna’s – voor ontspanning en wellness in je eigen huis
  • Speeltoestellen voor kinderen – voor urenlang veilig speelplezier
  • Houten tuinpaviljoens – jouw eigen stukje paradijs in de tuin
  • Carports – betrouwbare bescherming tegen regen, sneeuw en zon
  • Garages – veilige opslag voor je voertuig en extra bergruimte

Je kunt vertrouwen op de kwaliteit van je product. Gaat er toch iets mis? Dan lossen we het snel voor je op.

Wat valt er onder de Comfortgarantie?

Met de comfortgarantie ben je goed beschermd. Gaat er iets kapot? Dan ontvang je gratis de juiste vervangende onderdelen voor:

  • Deuren – glasschade tot € 200
  • Ramen – glasschade tot € 200
  • Dakgoten – voor een goede waterafvoer
  • Deursloten – voor optimale veiligheid
  • Hang- en sluitwerk – voor het vervangen van kleine maar essentiële onderdelen
  • Dakbedekking – zoals dakleer, shingles of KSK-folie

Belangrijk om te weten:

De comfortgarantie dekt uitsluitend de levering van vervangende onderdelen. De installatie is niet inbegrepen en moet je zelf uitvoeren.
Met de comfortgarantie ben je optimaal beschermd en geniet je zonder zorgen van je product.

Garantievoorwaarden
Alle details en aanvullende informatie over de comfortgarantie.

Vragen?
Onze klantenservice helpt je graag verder!

€ 69,00

Accessoires voor je product

PGH hardwasolie 0,75 L

Meer details weergeven

PGH hardwasolie 0,75 L

Hoogwaardige hardwaxolie voor binnen

Onze hardwaxolie biedt een hoogwaardige oplossing voor het gronden en behandelen van verschillende absorberende interieuroppervlakken. Met een zijdematte, slijtvaste afwerking die natuurlijke texturen doet herleven en tinten verdiept, biedt het de beste resultaten voor houten, kurk- en stenen vloeren en andere oppervlakken. Gemakkelijk in gebruik en getest volgens de hoogste normen, is het de ideale keuze voor professionele resultaten.

Artikelgegevens van de hardwaxolie:

  • Toepassing: Voorstrijken en behandelen van zuigende ondergronden binnenshuis.

  • Eigenschappen: Zijdemat oppervlak, verdiept de kleur, waterafstotend.
  • Getest op chemische weerstand en migratie.
  • Ingrediënten: Lijnolie, houtolie, ricinusolie, natuurlijke harsester, andere.
  • VOC-gehalte: Max. 440 g/l (EU-grenswaarde: max. 500 g/l).
  • Toepassing: Schudden voor gebruik, dun aanbrengen, polijsten.
  • Droogtijd: Ca. 6-12 uur, overschilderbaar na 16-24 uur.
  • Verbruik: 30-50 g/m²; dekking ca. 20 m²/l.
  • Opslag: Koel, droog en ongeopend ten minste 24 maanden houdbaar.
  • Verwijdering: Volgens plaatselijke voorschriften.
  • Opmerkingen: Kleurgegevens niet bindend, proeflaag aanbevolen.

€ 39,00

Weerbeschermingskleurenset S - tot 34 m² - Schwedenrot - Wetterschutzfarbe

Meer details weergeven

Weerbeschermingskleurenset S - tot 34 m² - Schwedenrot - Wetterschutzfarbe

Onze weersbestendige kleurset S - tot 34 m² beschermt hout buiten op betrouwbare wijze tegen zon, regen, kou en UV-straling. De elastische verflaag zorgt voor langdurige bescherming en een egaal, gekleurd oppervlak.

De milieuvriendelijke, halfglanzende rode houtkleur is bijzonder duurzaam, bladdert niet af en is ideaal voor ruw gezaagd hout en alle houten constructies buiten.

  • Goede dekking
  • Weer- en UV-bestendig
  • Waterdampdoorlatend
  • Elastische coatinglaag
  • Filmbescherming tegen schimmelaantasting
  • Bestand tegen speeksel en transpiratie (DIN 53 160)

Voordat je je hout de definitieve look geeft met de weerbestendige verf, heeft het de juiste voorbereiding nodig. Dat is precies waar onze houtgrondverf met open poriën voor gemaakt is.

Deze dringt diep door in het hout, blijft ademen en zorgt voor een ideale hechting van je volgende laag. Zo haal je het beste uit je houtbeits of -lak - zowel visueel als technisch.

Waarom je moet primen:

  • Optimale hechting voor beitsen & vernissen
  • Open poriën & zeer effectief
  • Geschikt voor buiten
  • Met filmbescherming tegen schimmelaantasting
  • Weerbestendig na volledige droging

Leveringsomvang:

  • 1 x 2,5 l houtprimer
  • 2 x 2,5 l weerbeschermingsverf in Zweeds rood

€ 169,00

Onze weersbestendige kleurset S - tot 34 m² beschermt hout buiten op betrouwbare wijze tegen zon, regen, kou en UV-straling. De elastische verflaag zorgt voor langdurige bescherming en een egaal, gekleurd oppervlak.

De milieuvriendelijke, halfglanzende rode houtkleur is bijzonder duurzaam, bladdert niet af en is ideaal voor ruw gezaagd hout en alle houten constructies buiten.

  • Goede dekking
  • Weer- en UV-bestendig
  • Waterdampdoorlatend
  • Elastische coatinglaag
  • Filmbescherming tegen schimmelaantasting
  • Bestand tegen speeksel en transpiratie (DIN 53 160)

Voordat je je hout de definitieve look geeft met de weerbestendige verf, heeft het de juiste voorbereiding nodig. Dat is precies waar onze houtgrondverf met open poriën voor gemaakt is.

Deze dringt diep door in het hout, blijft ademen en zorgt voor een ideale hechting van je volgende laag. Zo haal je het beste uit je houtbeits of -lak - zowel visueel als technisch.

Waarom je moet primen:

  • Optimale hechting voor beitsen & vernissen
  • Open poriën & zeer effectief
  • Geschikt voor buiten
  • Met filmbescherming tegen schimmelaantasting
  • Weerbestendig na volledige droging

Leveringsomvang:

  • 1 x 2,5 l houtprimer
  • 2 x 2,5 l weerbeschermingsverf in Zweeds rood

Onze weersbestendige kleurset S - tot 34 m² beschermt hout buiten op betrouwbare wijze tegen zon, regen, kou en UV-straling. De elastische verflaag zorgt voor langdurige bescherming en een egaal, gekleurd oppervlak.

De milieuvriendelijke, halfglanzende antraciet houtkleur is bijzonder duurzaam, bladdert niet af en is ideaal voor ruw gezaagd hout en alle houten constructies buiten.

  • Goede dekking
  • Weer- en UV-bestendig
  • Waterdampdoorlatend
  • Elastische coatinglaag
  • Filmbescherming tegen schimmelaantasting
  • Bestand tegen speeksel en transpiratie (DIN 53 160)

Voordat je je hout de definitieve look geeft met de weerbestendige verf, heeft het de juiste voorbereiding nodig. Dat is precies waar onze houtgrondverf met open poriën voor gemaakt is.

Deze dringt diep door in het hout, blijft ademen en zorgt voor een ideale hechting van je volgende laag. Zo haal je het beste uit je houtbeits of -lak - zowel visueel als technisch.

Waarom je moet primen:

  • Optimale hechting voor beitsen & vernissen
  • Open poriën & zeer effectief
  • Geschikt voor buiten
  • Met filmbescherming tegen schimmelaantasting
  • Weerbestendig na volledige droging

Leveringsomvang:

  • 1 x 2,5 l houtprimer
  • 2 x 2,5 l weerbeschermingsverf in antracietgrijs

Onze weersbestendige kleurset S - tot 34 m² beschermt hout buiten op betrouwbare wijze tegen zon, regen, kou en UV-straling. De elastische coatinglaag zorgt voor langdurige bescherming en een egaal, gekleurd oppervlak.

De milieuvriendelijke, halfglanzende witte houtkleur is bijzonder duurzaam, bladdert niet af en is ideaal voor ruw gezaagd hout en alle houten constructies buiten.

  • Goede dekking
  • Weer- en UV-bestendig
  • Waterdampdoorlatend
  • Elastische coatinglaag
  • Filmbescherming tegen schimmelaantasting
  • Bestand tegen speeksel en transpiratie (DIN 53 160)

Voordat je je hout de definitieve look geeft met de weerbestendige verf, heeft het de juiste voorbereiding nodig. Dat is precies waar onze houtgrondverf met open poriën voor gemaakt is.

Deze dringt diep door in het hout, blijft ademen en zorgt voor een ideale hechting van je volgende laag. Zo haal je het beste uit je houtbeits of -lak - zowel visueel als technisch.

Waarom je moet primen:

  • Optimale hechting voor beitsen & vernissen
  • Open poriën & zeer effectief
  • Geschikt voor buiten
  • Met filmbescherming tegen schimmelaantasting
  • Weerbestendig na volledige droging

Leveringsomvang:

  • 1 x 2,5 l houtprimer
  • 2 x 2,5 l weerbeschermingskleur in wit

Onze weersbestendige kleurset S - tot 34 m² beschermt hout buiten op betrouwbare wijze tegen zon, regen, kou en UV-straling. De elastische verflaag zorgt voor langdurige bescherming en een egaal, gekleurd oppervlak.

De milieuvriendelijke, halfglanzende zwarte houtkleur is bijzonder duurzaam, bladdert niet af en is ideaal voor ruw gezaagd hout en alle houten constructies buiten.

  • Goede dekking
  • Weer- en UV-bestendig
  • Waterdampdoorlatend
  • Elastische coatinglaag
  • Filmbescherming tegen schimmelaantasting
  • Bestand tegen speeksel en transpiratie (DIN 53 160)

Voordat je je hout de definitieve look geeft met de weerbestendige verf, heeft het de juiste voorbereiding nodig. Dat is precies waar onze houtgrondverf met open poriën voor gemaakt is.

Deze dringt diep door in het hout, blijft ademen en zorgt voor een ideale hechting van je volgende laag. Zo haal je het beste uit je houtbeits of -lak - zowel visueel als technisch.

Waarom je moet primen:

  • Optimale hechting voor beitsen & vernissen
  • Open poriën & zeer effectief
  • Geschikt voor buiten
  • Met filmbescherming tegen schimmelaantasting
  • Weerbestendig na volledige droging

Leveringsomvang:

  • 1 x 2,5 l houtprimer
  • 2 x 2,5 l weerbeschermingskleur in zwart

Onze weersbestendige kleurset S - tot 34 m² beschermt hout buiten op betrouwbare wijze tegen zon, regen, kou en UV-straling. De elastische verflaag zorgt voor langdurige bescherming en een egaal, gekleurd oppervlak.

De milieuvriendelijke, halfglanzende rode houtkleur is bijzonder duurzaam, bladdert niet af en is ideaal voor ruw gezaagd hout en alle houten constructies buiten.

  • Goede dekking
  • Weer- en UV-bestendig
  • Waterdampdoorlatend
  • Elastische coatinglaag
  • Filmbescherming tegen schimmelaantasting
  • Bestand tegen speeksel en transpiratie (DIN 53 160)

Voordat je je hout de definitieve look geeft met de weerbestendige verf, heeft het de juiste voorbereiding nodig. Dat is precies waar onze houtgrondverf met open poriën voor gemaakt is.

Deze dringt diep door in het hout, blijft ademen en zorgt voor een ideale hechting van je volgende laag. Zo haal je het beste uit je houtbeits of -lak - zowel visueel als technisch.

Waarom je moet primen:

  • Optimale hechting voor beitsen & vernissen
  • Open poriën & zeer effectief
  • Geschikt voor buiten
  • Met filmbescherming tegen schimmelaantasting
  • Weerbestendig na volledige droging

Leveringsomvang:

  • 1 x 2,5 l houtprimer
  • 2 x 2,5 l weerbeschermingsverf in Zweeds rood

Onze weersbestendige kleurset S - tot 34 m² beschermt hout buiten op betrouwbare wijze tegen zon, regen, kou en UV-straling. De elastische verflaag zorgt voor langdurige bescherming en een egaal, gekleurd oppervlak.

De milieuvriendelijke, halfglanzende antraciet houtkleur is bijzonder duurzaam, bladdert niet af en is ideaal voor ruw gezaagd hout en alle houten constructies buiten.

  • Goede dekking
  • Weer- en UV-bestendig
  • Waterdampdoorlatend
  • Elastische coatinglaag
  • Filmbescherming tegen schimmelaantasting
  • Bestand tegen speeksel en transpiratie (DIN 53 160)

Voordat je je hout de definitieve look geeft met de weerbestendige verf, heeft het de juiste voorbereiding nodig. Dat is precies waar onze houtgrondverf met open poriën voor gemaakt is.

Deze dringt diep door in het hout, blijft ademen en zorgt voor een ideale hechting van je volgende laag. Zo haal je het beste uit je houtbeits of -lak - zowel visueel als technisch.

Waarom je moet primen:

  • Optimale hechting voor beitsen & vernissen
  • Open poriën & zeer effectief
  • Geschikt voor buiten
  • Met filmbescherming tegen schimmelaantasting
  • Weerbestendig na volledige droging

Leveringsomvang:

  • 1 x 2,5 l houtprimer
  • 2 x 2,5 l weerbeschermingsverf in antracietgrijs

Onze weersbestendige kleurset S - tot 34 m² beschermt hout buiten op betrouwbare wijze tegen zon, regen, kou en UV-straling. De elastische coatinglaag zorgt voor langdurige bescherming en een egaal, gekleurd oppervlak.

De milieuvriendelijke, halfglanzende witte houtkleur is bijzonder duurzaam, bladdert niet af en is ideaal voor ruw gezaagd hout en alle houten constructies buiten.

  • Goede dekking
  • Weer- en UV-bestendig
  • Waterdampdoorlatend
  • Elastische coatinglaag
  • Filmbescherming tegen schimmelaantasting
  • Bestand tegen speeksel en transpiratie (DIN 53 160)

Voordat je je hout de definitieve look geeft met de weerbestendige verf, heeft het de juiste voorbereiding nodig. Dat is precies waar onze houtgrondverf met open poriën voor gemaakt is.

Deze dringt diep door in het hout, blijft ademen en zorgt voor een ideale hechting van je volgende laag. Zo haal je het beste uit je houtbeits of -lak - zowel visueel als technisch.

Waarom je moet primen:

  • Optimale hechting voor beitsen & vernissen
  • Open poriën & zeer effectief
  • Geschikt voor buiten
  • Met filmbescherming tegen schimmelaantasting
  • Weerbestendig na volledige droging

Leveringsomvang:

  • 1 x 2,5 l houtprimer
  • 2 x 2,5 l weerbeschermingskleur in wit

Onze weersbestendige kleurset S - tot 34 m² beschermt hout buiten op betrouwbare wijze tegen zon, regen, kou en UV-straling. De elastische verflaag zorgt voor langdurige bescherming en een egaal, gekleurd oppervlak.

De milieuvriendelijke, halfglanzende zwarte houtkleur is bijzonder duurzaam, bladdert niet af en is ideaal voor ruw gezaagd hout en alle houten constructies buiten.

  • Goede dekking
  • Weer- en UV-bestendig
  • Waterdampdoorlatend
  • Elastische coatinglaag
  • Filmbescherming tegen schimmelaantasting
  • Bestand tegen speeksel en transpiratie (DIN 53 160)

Voordat je je hout de definitieve look geeft met de weerbestendige verf, heeft het de juiste voorbereiding nodig. Dat is precies waar onze houtgrondverf met open poriën voor gemaakt is.

Deze dringt diep door in het hout, blijft ademen en zorgt voor een ideale hechting van je volgende laag. Zo haal je het beste uit je houtbeits of -lak - zowel visueel als technisch.

Waarom je moet primen:

  • Optimale hechting voor beitsen & vernissen
  • Open poriën & zeer effectief
  • Geschikt voor buiten
  • Met filmbescherming tegen schimmelaantasting
  • Weerbestendig na volledige droging

Leveringsomvang:

  • 1 x 2,5 l houtprimer
  • 2 x 2,5 l weerbeschermingskleur in zwart

Set houtbeits - buiten S - tot 34 m² - Weiß - Lasur

Meer details weergeven

Set houtbeits - buiten S - tot 34 m² - Weiß - Lasur

Onze transparante houtbeits set - exterieur S - tot 34 m² voor buiten is ideaal voor het beschermen en decoratief coaten van hout. Het glazuur met open poriën is weer- en waterbestendig en behoudt de natuurlijke houtstructuur.

Met de filmbescherming tegen schimmel- en blauwschimmelaantasting is de beits ideaal voor ramen, deuren, hekken, pergola's, dakoverstekken en houten lambriseringen.

Voordat je je hout de uiteindelijke look geeft met de houtbeits, heeft het de juiste voorbereiding nodig. Dat is precies waar onze houtprimer met open poriën voor gemaakt is.

Deze dringt diep door in het hout, blijft ademen en zorgt voor een ideale hechting van je volgende laag. Zo haal je het beste uit je houtbeits of -lak - zowel visueel als technisch.

Waarom je moet primen:

  • Optimale hechting voor beitsen & vernissen
  • Open poriën & zeer effectief
  • Geschikt voor buiten
  • Met filmbescherming tegen schimmelaantasting
  • Weerbestendig na volledige droging

Leveringsomvang:

  • 1 x 2,5 l houtprimer
  • 2 x 2,5 l houtbeits in transparant wit

€ 159,00

Onze transparante houtbeits set - exterieur S - tot 34 m² voor buiten is ideaal voor het beschermen en decoratief coaten van hout. Het glazuur met open poriën is weer- en waterbestendig en behoudt de natuurlijke houtstructuur.

Met de filmbescherming tegen schimmel- en blauwschimmelaantasting is de beits ideaal voor ramen, deuren, hekken, pergola's, dakoverstekken en houten lambriseringen.

Voordat je je hout de uiteindelijke look geeft met de houtbeits, heeft het de juiste voorbereiding nodig. Dat is precies waar onze houtprimer met open poriën voor gemaakt is.

Deze dringt diep door in het hout, blijft ademen en zorgt voor een ideale hechting van je volgende laag. Zo haal je het beste uit je houtbeits of -lak - zowel visueel als technisch.

Waarom je moet primen:

  • Optimale hechting voor beitsen & vernissen
  • Open poriën & zeer effectief
  • Geschikt voor buiten
  • Met filmbescherming tegen schimmelaantasting
  • Weerbestendig na volledige droging

Leveringsomvang:

  • 1 x 2,5 l houtprimer
  • 2 x 2,5 l houtbeits in transparant wit

Onze transparante houtbeits set - exterieur S - tot 34 m² voor buiten is ideaal voor het beschermen en decoratief coaten van hout. Het glazuur met open poriën is weer- en waterbestendig en behoudt de natuurlijke houtstructuur.

Met de filmbescherming tegen schimmel- en blauwschimmelaantasting is de beits ideaal voor ramen, deuren, hekken, pergola's, dakoverstekken en houten lambriseringen.

Voordat je je hout de uiteindelijke look geeft met de houtbeits, heeft het de juiste voorbereiding nodig. Dat is precies waar onze houtprimer met open poriën voor gemaakt is.

Deze dringt diep door in het hout, blijft ademen en zorgt voor een ideale hechting van je volgende laag. Zo haal je het beste uit je houtbeits of -lak - zowel visueel als technisch.

Waarom je moet primen:

  • Optimale hechting voor beitsen & vernissen
  • Open poriën & zeer effectief
  • Geschikt voor buiten
  • Met filmbescherming tegen schimmelaantasting
  • Weerbestendig na volledige droging

Leveringsomvang:

  • 1 x 2,5 l houtprimer
  • 2 x 2,5 l houtbeits in transparante grenen kleur

Onze transparante houtbeits set - exterieur S - tot 34 m² voor buiten is ideaal voor het beschermen en decoratief coaten van hout. Het glazuur met open poriën is weer- en waterbestendig en behoudt de natuurlijke houtstructuur.

Met de filmbescherming tegen schimmel- en blauwschimmelaantasting is de beits ideaal voor ramen, deuren, hekken, pergola's, dakoverstekken en houten lambriseringen.

Voordat je je hout de uiteindelijke look geeft met de houtbeits, heeft het de juiste voorbereiding nodig. Dat is precies waar onze houtprimer met open poriën voor gemaakt is.

Deze dringt diep door in het hout, blijft ademen en zorgt voor een ideale hechting van je volgende laag. Zo haal je het beste uit je houtbeits of -lak - zowel visueel als technisch.

Waarom je moet primen:

  • Optimale hechting voor beitsen & vernissen
  • Open poriën & zeer effectief
  • Geschikt voor buiten
  • Met filmbescherming tegen schimmelaantasting
  • Weerbestendig na volledige droging

Leveringsomvang:

  • 1 x 2,5 l houtprimer
  • 2 x 2,5 l houtbeits in transparant lichtgrijs

Onze transparante houtbeits set - exterieur S - tot 34 m² voor buiten is ideaal voor het beschermen en decoratief coaten van hout. Het glazuur met open poriën is weer- en waterbestendig en behoudt de natuurlijke houtstructuur.

Met de filmbescherming tegen schimmel- en blauwschimmelaantasting is de beits ideaal voor ramen, deuren, hekken, pergola's, dakoverstekken en houten lambriseringen.

Voordat je je hout de uiteindelijke look geeft met de houtbeits, heeft het de juiste voorbereiding nodig. Dat is precies waar onze houtprimer met open poriën voor gemaakt is.

Deze dringt diep door in het hout, blijft ademen en zorgt voor een ideale hechting van je volgende laag. Zo haal je het beste uit je houtbeits of -lak - zowel visueel als technisch.

Waarom je moet primen:

  • Optimale hechting voor beitsen & vernissen
  • Open poriën & zeer effectief
  • Geschikt voor buiten
  • Met filmbescherming tegen schimmelaantasting
  • Weerbestendig na volledige droging

Leveringsomvang:

  • 1 x 2,5 l houtprimer
  • 2 x 2,5 l houtbeits in transparant antracietgrijs

Onze transparante houtbeits set - exterieur S - tot 34 m² voor buiten is ideaal voor het beschermen en decoratief coaten van hout. Het glazuur met open poriën is weer- en waterbestendig en behoudt de natuurlijke houtstructuur.

Met de filmbescherming tegen schimmel- en blauwschimmelaantasting is de beits ideaal voor ramen, deuren, hekken, pergola's, dakoverstekken en houten lambriseringen.

Voordat je je hout de uiteindelijke look geeft met de houtbeits, heeft het de juiste voorbereiding nodig. Dat is precies waar onze houtprimer met open poriën voor gemaakt is.

Deze dringt diep door in het hout, blijft ademen en zorgt voor een ideale hechting van je volgende laag. Zo haal je het beste uit je houtbeits of -lak - zowel visueel als technisch.

Waarom je moet primen:

  • Optimale hechting voor beitsen & vernissen
  • Open poriën & zeer effectief
  • Geschikt voor buiten
  • Met filmbescherming tegen schimmelaantasting
  • Weerbestendig na volledige droging

Leveringsomvang:

  • 1 x 2,5 l houtprimer
  • 2 x 2,5 l houtbeits in transparant wit

Onze transparante houtbeits set - exterieur S - tot 34 m² voor buiten is ideaal voor het beschermen en decoratief coaten van hout. Het glazuur met open poriën is weer- en waterbestendig en behoudt de natuurlijke houtstructuur.

Met de filmbescherming tegen schimmel- en blauwschimmelaantasting is de beits ideaal voor ramen, deuren, hekken, pergola's, dakoverstekken en houten lambriseringen.

Voordat je je hout de uiteindelijke look geeft met de houtbeits, heeft het de juiste voorbereiding nodig. Dat is precies waar onze houtprimer met open poriën voor gemaakt is.

Deze dringt diep door in het hout, blijft ademen en zorgt voor een ideale hechting van je volgende laag. Zo haal je het beste uit je houtbeits of -lak - zowel visueel als technisch.

Waarom je moet primen:

  • Optimale hechting voor beitsen & vernissen
  • Open poriën & zeer effectief
  • Geschikt voor buiten
  • Met filmbescherming tegen schimmelaantasting
  • Weerbestendig na volledige droging

Leveringsomvang:

  • 1 x 2,5 l houtprimer
  • 2 x 2,5 l houtbeits in transparante grenen kleur

Onze transparante houtbeits set - exterieur S - tot 34 m² voor buiten is ideaal voor het beschermen en decoratief coaten van hout. Het glazuur met open poriën is weer- en waterbestendig en behoudt de natuurlijke houtstructuur.

Met de filmbescherming tegen schimmel- en blauwschimmelaantasting is de beits ideaal voor ramen, deuren, hekken, pergola's, dakoverstekken en houten lambriseringen.

Voordat je je hout de uiteindelijke look geeft met de houtbeits, heeft het de juiste voorbereiding nodig. Dat is precies waar onze houtprimer met open poriën voor gemaakt is.

Deze dringt diep door in het hout, blijft ademen en zorgt voor een ideale hechting van je volgende laag. Zo haal je het beste uit je houtbeits of -lak - zowel visueel als technisch.

Waarom je moet primen:

  • Optimale hechting voor beitsen & vernissen
  • Open poriën & zeer effectief
  • Geschikt voor buiten
  • Met filmbescherming tegen schimmelaantasting
  • Weerbestendig na volledige droging

Leveringsomvang:

  • 1 x 2,5 l houtprimer
  • 2 x 2,5 l houtbeits in transparant lichtgrijs

Onze transparante houtbeits set - exterieur S - tot 34 m² voor buiten is ideaal voor het beschermen en decoratief coaten van hout. Het glazuur met open poriën is weer- en waterbestendig en behoudt de natuurlijke houtstructuur.

Met de filmbescherming tegen schimmel- en blauwschimmelaantasting is de beits ideaal voor ramen, deuren, hekken, pergola's, dakoverstekken en houten lambriseringen.

Voordat je je hout de uiteindelijke look geeft met de houtbeits, heeft het de juiste voorbereiding nodig. Dat is precies waar onze houtprimer met open poriën voor gemaakt is.

Deze dringt diep door in het hout, blijft ademen en zorgt voor een ideale hechting van je volgende laag. Zo haal je het beste uit je houtbeits of -lak - zowel visueel als technisch.

Waarom je moet primen:

  • Optimale hechting voor beitsen & vernissen
  • Open poriën & zeer effectief
  • Geschikt voor buiten
  • Met filmbescherming tegen schimmelaantasting
  • Weerbestendig na volledige droging

Leveringsomvang:

  • 1 x 2,5 l houtprimer
  • 2 x 2,5 l houtbeits in transparant antracietgrijs
Beoordelingen

Gemiddelde waardering van 4.8 van 5 sterren

(5)

Gemiddelde waardering van 4.8 van 5 sterren

(5 Beoordelingen)

Gemiddelde waardering van 5 van 5 sterren

Gemiddelde waardering van 5 van 5 sterren

Gemiddelde waardering van 5 van 5 sterren

Gemiddelde waardering van 4 van 5 sterren

Gemiddelde waardering van 5 van 5 sterren

Productdetails
Details:
Wanddikte
34
Type materiaal
Noords sparrenhout
Oppervlaktebehandeling
Zonder
Basiskleur
Onbehandeld
Vloeroppervlak
12
Totale afmetingen (cm)
440 x 340
Totale hoogte
230
Volume
24,6
Vloer
Als accessoires
Bouwwijze
Blokplankenbouw
Dakvorm
Lessenaardak
Dakoppervlak (m²)
15,2
Dakhelling
5
Dakbedekking
Zonder
Binnenafmetingen (cm)
393 x 293
Afmetingen van de basis (cm)
397 x 297
Afmetingen deuren (cm)
154 x 185 cm
Aantal ramen
2
Uitvoering ramen
Vloerdiep raam
Afmetingen ramen (cm)
80 x 185 cm | 80 x 185 cm
Beglazing
Isolerend glas

Populaire producten