Ga naar de hoofdinhoud Ga naar de zoekopdracht Ga naar de hoofdnavigatie
Advies
Sales Contact Image
Verkoop advies 030 202 5006
Onze hotline
Dagen
20% korting op dakbedekking | Code: ROOF20 | Prijsstijging vanaf 5 mei als gevolg van hogere logistieke kosten

€ 4.249,00

-15%
Adviesprijs € 4.999,00
€ -750,00
Aanbieding

-20% op dakbedekking | Code : ROOF20

Gemiddelde waardering van 4.1 van 5 sterren

(11)

Tuinhuis Freiburg

De hieronder geselecteerde accessoires worden aan de winkelwagen toegevoegd.
Purchase Advice Image
Persoonlijk product- en aankoopadvies gewenst Tel: 030 202 5006
Vragen over het product en extra deal binnen halen?
Levertijd 3-4 weken
Paid Delivery Icon
Veilig betalen
Skonto Icon
3% korting bij vooruitbetaling
Productvarianten
Beschermende impregnering kiezen:
Zonder beschermende impregnering
Deur selectie kiezen:
Met enkele dubbele deur
Wanddikte kiezen:
44 mm Wanddikte
Levering in gewenst tijdvak
Passende accessoires bij dit product
Productbeschrijving

Kun je niet kiezen tussen een rustig plekje of een beschut terras in de tuin? Kies voor het Freiburg tuinhuisje en je krijgt beide.

Details van het Freiburg tuinhuis:

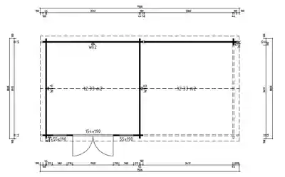
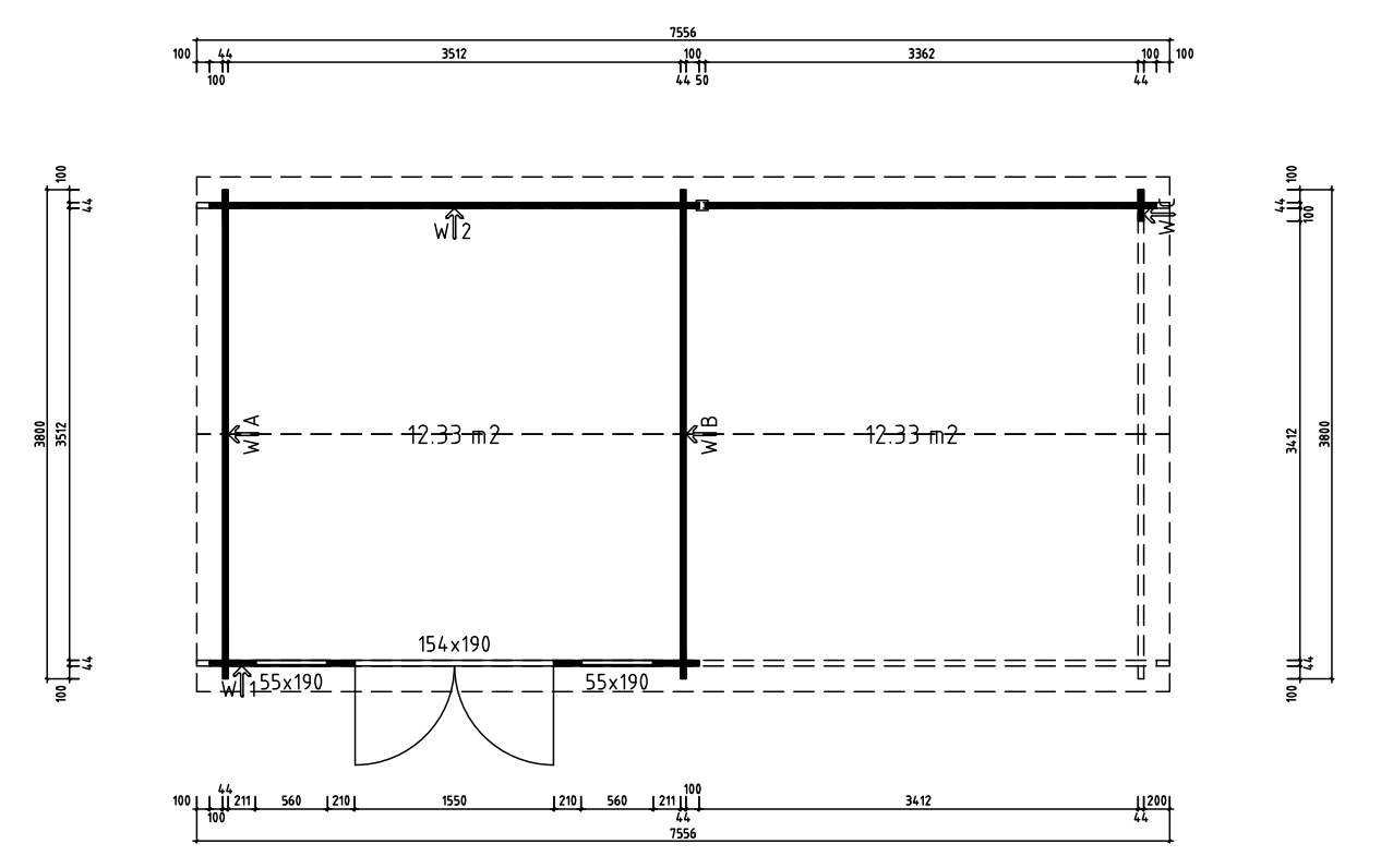
  • Buitenafmetingen: 756 x 400 cm
  • Afmetingen bodem: 711 x 356 cm
  • Vloeroppervlak: 25,8 m²
  • Hoogte zijwanden: ca. 223 cm
  • Totale hoogte: ca. 270 cm
  • Volume kamer: 74,3 m³
  • Dubbele deur: ca. 154 x 190 cm
  • Twee vaste raamelementen: ca. 55 x 190 cm
  • Wanddikte: 44 mm

Inbegrepen bij het Freiburg tuinhuis:

  • Massief houten dak van rabatdelen
  • Alle logs met 4-voudig gefreesde hoeken (wind- en regendicht)
  • Beglazing voor deur en ramen gemaakt van ISO-glas
  • Hoogwaardige aluminium dorpel
  • Dubbele deur en twee vaste raamelementen
  • Stevig zijdak met achterwand
  • Metalen paalsteunen met stelschroef (zonder schroeven voor installatie op de grond)
  • Cilinderslot, krukgarnituur, montagemateriaal en montageplan
  • Geleverd in naturel zonder kleurbehandeling
Accessoires en services
3 Accessoire(s) zijn zojuist geselecteerd (inclusief onze aanbevelingen). De juiste hoeveelheden zijn vooraf ingesteld.

Dit heb je nodig voor de montage

Spaarset Basisaccessoires en Montage S

Meer details weergeven

Spaarset Basisaccessoires en Montage S

Basis accessoire set met besparingen tot 20% vergeleken met losse aankopen!

De perfecte set voor de veilige montage en verankering van je tuinhuisje - biedt betrouwbare bescherming tegen vocht, wind en storm. Met slechts één klik krijg je alle belangrijke onderdelen in voldoende hoeveelheid voor een duurzame en stabiele structuur.

Bestaande uit:

  • Vochtscherm (ca. 50 stuks) van speciaal rubbergranulaat - beschermt tegen optrekkend vocht, egaliseert oneffenheden en zorgt voor drainage en luchtcirculatie.
  • Stormbeugels (set: 4 stuks) - Voor het stevig bevestigen van het tuinhuisje aan de fundering (schroeven & pluggen niet inbegrepen).
  • Windverankeringsset (set voor 2 zijden) - Verbindt de bovenste en onderste stammen en voorkomt dat ze uit elkaar worden geduwd tijdens stormen.

Onze aanbeveling

Voor optimale en permanente bescherming tegen storm en vocht raden we het gecombineerde gebruik van alle onderdelen in de set aan. Zo is je tuinhuisje optimaal beveiligd en betrouwbaar beschermd tegen weer en wind.

€ 139,00

Spaarset Universeel houten Vloer set 15 m² - 18 mm Natuurlijke vloer

Meer details weergeven

Spaarset Universeel houten Vloer set 15 m² - 18 mm Natuurlijke vloer

Universele set houten vloeren met besparingen tot 20% in vergelijking met afzonderlijke aankopen!

Past bij het huis - Met deze set heb je met één klik het juiste aantal houten vloerpakketten voor je gewenste product.

Inhoud van de set:

  • Planken met messing en groef, 18 mm dik, natuurlijke afwerking
  • Passend aantal plinten, met of zonder fabrieksimpregnatie
  • onder druk geïmpregneerd funderingshout
  • de kleur van de impregnering kan afwijken van die van het huis
  • Materiaal: Scandinavisch vurenhout

Houd er rekening mee dat de vloer op maat moet worden gemaakt. Bij de set worden gedetailleerde montage-instructies geleverd.

Deze set is berekend voor huizen met een vloeroppervlak van 12,01 - 15 m². Als je twijfelt, raden we je aan de items afzonderlijk te kopen.

€ 899,00

Universele set houten vloeren met besparingen tot 20% in vergelijking met afzonderlijke aankopen!

Past bij het huis - Met deze set heb je met één klik het juiste aantal houten vloerpakketten voor je gewenste product.

Inhoud van de set:

  • Planken met messing en groef, 18 mm dik, natuurlijke afwerking
  • Passend aantal plinten, met of zonder fabrieksimpregnatie
  • onder druk geïmpregneerd funderingshout
  • de kleur van de impregnering kan afwijken van die van het huis
  • Materiaal: Scandinavisch vurenhout

Houd er rekening mee dat de vloer op maat moet worden gemaakt. Bij de set worden gedetailleerde montage-instructies geleverd.

Deze set is berekend voor huizen met een vloeroppervlak van 12,01 - 15 m². Als je twijfelt, raden we je aan de items afzonderlijk te kopen.

Universele set houten vloeren met besparingen tot 20% in vergelijking met afzonderlijke aankopen!

Past bij het huis - Met deze set heb je met één klik het juiste aantal houten vloerpakketten voor je gewenste product.

Inhoud van de set:

  • Tand en groef planken, 28 mm dik, met fabrieksimpregnatie
  • Passend aantal plinten, met of zonder fabrieksimpregnatie
  • onder druk geïmpregneerd funderingshout
  • de kleur van de impregnering kan afwijken van die van het huis
  • Materiaal: Scandinavisch vurenhout

Houd er rekening mee dat de vloer op maat moet worden gemaakt. Bij de set worden gedetailleerde montage-instructies geleverd.

Deze set is berekend voor huizen met een vloeroppervlak van 12,01 - 15 m². Als je twijfelt, raden we je aan de items afzonderlijk te kopen.

Universele set houten vloeren met besparingen tot 20% in vergelijking met afzonderlijke aankopen!

Past bij het huis - Met deze set heb je met één klik het juiste aantal houten vloerpakketten voor je gewenste product.

Inhoud van de set:

  • Planken met messing en groef, 18 mm dik, natuurlijke afwerking
  • Passend aantal plinten, met of zonder fabrieksimpregnatie
  • onder druk geïmpregneerd funderingshout
  • de kleur van de impregnering kan afwijken van die van het huis
  • Materiaal: Scandinavisch vurenhout

Houd er rekening mee dat de vloer op maat moet worden gemaakt. Bij de set worden gedetailleerde montage-instructies geleverd.

Deze set is berekend voor huizen met een vloeroppervlak van 12,01 - 15 m². Als je twijfelt, raden we je aan de items afzonderlijk te kopen.

Universele set houten vloeren met besparingen tot 20% in vergelijking met afzonderlijke aankopen!

Past bij het huis - Met deze set heb je met één klik het juiste aantal houten vloerpakketten voor je gewenste product.

Inhoud van de set:

  • Tand en groef planken, 28 mm dik, met fabrieksimpregnatie
  • Passend aantal plinten, met of zonder fabrieksimpregnatie
  • onder druk geïmpregneerd funderingshout
  • de kleur van de impregnering kan afwijken van die van het huis
  • Materiaal: Scandinavisch vurenhout

Houd er rekening mee dat de vloer op maat moet worden gemaakt. Bij de set worden gedetailleerde montage-instructies geleverd.

Deze set is berekend voor huizen met een vloeroppervlak van 12,01 - 15 m². Als je twijfelt, raden we je aan de items afzonderlijk te kopen.

Besparing set shingle dakbedekking - 33 m²

Meer details weergeven

Besparing set shingle dakbedekking - 33 m²

Jouw allround zorgeloos pakket voor een regenbestendig dak - met de complete set dakshingles bespaar je tot wel 20% vergeleken met wanneer je ze afzonderlijk koopt!

Leveringsomvang voor dakoppervlakken tot 33 m²:

- Premium rechthoekige dakshingles zwart (14 verpakkingen van elk 3 m²)

- Ondutiss Strong Air 120 onderspanbaan (4 rollen)

- Viltspijkers (12 pakken)

- Bitumenlijm (4 tubes)

Premium rechthoekige dakshingles zwart:

Onze premium rechthoekige bitumen dakshingles maken indruk met een hoogwaardige dragerlaag van robuust glasvlies en een elegant, intens gekleurd mineraalgranulaat aan de bovenkant. Deze combinatie zorgt niet alleen voor een elegant uiterlijk, maar ook voor maximale bescherming: de shingles voorkomen op betrouwbare wijze dat water binnendringt, bieden een wind- en UV-bestendig oppervlak en geven je dak een elegante, onderhoudsvriendelijke look - langdurige schoonheid en betrouwbare weerbestendigheid.

Ondutiss Strong Air 120 onderlaagmembraan:

Het hoogwaardige, drielaagse polypropyleen onderlaag- en bekistingsmembraan biedt betrouwbare bescherming tegen wind en vocht en ondersteunt efficiënte thermische isolatie.

- Afmeting: 10 x 1 m

Dakviltpinnen:

De dakviltpinnen worden gebruikt voor een robuuste en weerbestendige bevestiging van de dakshingles en de onderlaagmembraan. Hun gegalvaniseerde oppervlak biedt een betrouwbare bescherming tegen corrosie.

- Afmetingen: 2,5 x L 15 mm

- Ø kop: 8 mm

- Gegalvaniseerd

- Hoeveelheid: ca. 200 g = ca. 133 stuks

Bitumenlijm:

Met deze hoogwaardige bitumenlijm kun je naast de dakviltpinnen ook windgevoelige shingles bevestigen en zo zorgen voor de ideale duurzaamheid van je dak - ook perfect voor snelle, betrouwbare reparaties. De lijm is direct klaar voor gebruik - niet verdunnen, niet verwarmen, gewoon aanbrengen en bevestigen.
Voor optimale hechting: Zorg ervoor dat het oppervlak schoon, droog en vrij van zand, bladeren of ander vuil is. Het oppervlak mag niet bevroren of bedekt zijn met vorst.

- Kleur: zwart

- Inhoud: 310 ml

- Voor gebruik op hout en bitumen

De accessoireverpakking is geoptimaliseerd voor de gebruikelijke benodigde hoeveelheden Afhankelijk van het type bevestiging en overlap kan het materiaalverbruik iets variëren.

€ 839,00

Nokbedekking zadeldak

Meer details weergeven

Nokbedekking zadeldak

Voor een perfecte afdichting van de nokvoeg van de dakbedekking

  • Aluminium
  • antraciet - grijs gepoedercoat
  • Zijlengte: 12,5 cm
  • Lengte: 2 m
  • Dikte: 0,8 mm
  • Wijzig het aantal nokafdekkingen naar het gewenste aantal.

Incl. blikschroeven

€ 49,00

Dakrandfolie om Gevelplanken te bedekken

Meer details weergeven

Dakrandfolie om Gevelplanken te bedekken

Gevelplaat om de gevelplanken af te dekken.

  • Kleur: Antraciet
  • Materiaal: Gepoedercoat aluminium
  • Dikte: 0,8 mm
  • Diepte: 120 mm
  • Hoogte: 50 mm
  • Hoogte druiprand: 15 mm
  • Lengte: 2 m

Incl. blikschroeven

€ 39,00

Gootset RG 100 - voor 2 dakzijden tot 8 m elk - Antraciet metallic

Meer details weergeven

Gootset RG 100 - voor 2 dakzijden tot 8 m elk - Antraciet metallic

Voor houten tuinhuizen met zijlengtes tot 8 m, complete set voor 2 houten tuinhuiszijden.

Gootset voor tuinhuisjes met boeiboord - voor tuinhuisjes zonder boeiboord moet dit door de klant worden geleverd voor de installatie.

Marley dakgotensets beschermen de muren en funderingen van tuinhuizen en blokhutten veilig en betrouwbaar tegen schade veroorzaakt door regenwater.

Voordelen:

  • Complete set met dakgoten, regenpijpen en bevestigingsmateriaal.
  • Gemakkelijk te monteren
  • Alles compleet in de set
  • Bestand tegen weer, UV en temperatuur
  • Slagvaste kunststof van hoge kwaliteit
  • Topkwaliteit - Made in Germany
  • 10 jaar garantie

Inhoud van de set:

  • 8x goot, halfrond 2 m RG 100
  • 4x goot, halfrond 1 m RG 100
  • 8x gootverbindingsschaal RG 100
  • 8x eindstuk voor links en rechts RG 100
  • 36x gootbeugel RG 100
  • 36x Stelbeugel voor gootbeugel
  • 4x verbindingsstuk RG 100 / DN 75
  • 8x pijpbocht DN 75, 45
  • 4x standpijp DN 75 2 m
  • 8x buisklem met oogbout
  • 1x buitenhoek 90° RG 100

€ 879,00

Voor houten tuinhuizen met zijlengtes tot 8 m, complete set voor 2 houten tuinhuiszijden.

Gootset voor tuinhuisjes met boeiboord - voor tuinhuisjes zonder boeiboord moet dit door de klant worden geleverd voor de installatie.

Marley dakgotensets beschermen de muren en funderingen van tuinhuizen en blokhutten veilig en betrouwbaar tegen schade veroorzaakt door regenwater.

Voordelen:

  • Complete set met dakgoten, regenpijpen en bevestigingsmateriaal.
  • Gemakkelijk te monteren
  • Alles compleet in de set
  • Bestand tegen weer, UV en temperatuur
  • Slagvaste kunststof van hoge kwaliteit
  • Topkwaliteit - Made in Germany
  • 10 jaar garantie

Inhoud van de set:

  • 8x goot, halfrond 2 m RG 100
  • 4x goot, halfrond 1 m RG 100
  • 8x gootverbindingsschaal RG 100
  • 8x eindstuk voor links en rechts RG 100
  • 36x gootbeugel RG 100
  • 36x Stelbeugel voor gootbeugel
  • 4x verbindingsstuk RG 100 / DN 75
  • 8x pijpbocht DN 75, 45
  • 4x standpijp DN 75 2 m
  • 8x buisklem met oogbout
  • 1x buitenhoek 90° RG 100

Voor houten tuinhuizen met zijlengtes tot 8 m, complete set voor 2 houten tuinhuiszijden.

Gootset voor tuinhuisjes met boeiboord - voor tuinhuisjes zonder boeiboord moet dit door de klant worden geleverd voor de installatie.

Marley dakgotensets beschermen de muren en funderingen van tuinhuizen en blokhutten veilig en betrouwbaar tegen schade veroorzaakt door regenwater.

Voordelen:

  • Complete set met dakgoten, regenpijpen en bevestigingsmateriaal.
  • Gemakkelijk te monteren
  • Alles compleet in de set
  • Bestand tegen weer, UV en temperatuur
  • Slagvaste kunststof van hoge kwaliteit
  • Topkwaliteit - Made in Germany
  • 10 jaar garantie

Inhoud van de set:

  • 8x goot, halfrond 2 m RG 100
  • 4x goot, halfrond 1 m RG 100
  • 8x gootverbindingsschaal RG 100
  • 8x eindstuk voor links en rechts RG 100
  • 36x gootbeugel RG 100
  • 36x Stelbeugel voor gootbeugel
  • 4x verbindingsstuk RG 100 / DN 75
  • 8x pijpbocht DN 75, 45
  • 4x standpijp DN 75 2 m
  • 8x buisklem met oogbout
  • 1x buitenhoek 90° RG 100

Gootingang

Meer details weergeven

Gootingang

Een gootstuk is de professionele afwerking van de dakrand. Het is de overgangsplaat van het dakoppervlak naar de dakgoot. Het inzetstuk zorgt voor een gecontroleerde instroom van water in de goot.

Materiaal: gegalvaniseerd staal, poedercoating

Afmetingen: A:60 mm, B:125 mm, D:15 mm

Lengte: 200 cm

Dikte: 0,50 mm

Incl. blikschroeven

€ 39,00

Levering in gewenst tijdvak en services

Comfortgarantie

Meer details weergeven

Comfortgarantie

Welke producten worden door de comfortgarantie gedekt?

Onze comfortgarantie geldt uitsluitend voor producten die voor privégebruik bedoeld zijn. Daaronder vallen:

  • Tuinhuisjes en schuren – een plek om te ontspannen of om spullen op te bergen
  • Sauna’s – voor ontspanning en wellness in je eigen huis
  • Speeltoestellen voor kinderen – voor urenlang veilig speelplezier
  • Houten tuinpaviljoens – jouw eigen stukje paradijs in de tuin
  • Carports – betrouwbare bescherming tegen regen, sneeuw en zon
  • Garages – veilige opslag voor je voertuig en extra bergruimte

Je kunt vertrouwen op de kwaliteit van je product. Gaat er toch iets mis? Dan lossen we het snel voor je op.

Wat valt er onder de Comfortgarantie?

Met de comfortgarantie ben je goed beschermd. Gaat er iets kapot? Dan ontvang je gratis de juiste vervangende onderdelen voor:

  • Deuren – glasschade tot € 200
  • Ramen – glasschade tot € 200
  • Dakgoten – voor een goede waterafvoer
  • Deursloten – voor optimale veiligheid
  • Hang- en sluitwerk – voor het vervangen van kleine maar essentiële onderdelen
  • Dakbedekking – zoals dakleer, shingles of KSK-folie

Belangrijk om te weten:

De comfortgarantie dekt uitsluitend de levering van vervangende onderdelen. De installatie is niet inbegrepen en moet je zelf uitvoeren.
Met de comfortgarantie ben je optimaal beschermd en geniet je zonder zorgen van je product.

Garantievoorwaarden
Alle details en aanvullende informatie over de comfortgarantie.

Vragen?
Onze klantenservice helpt je graag verder!

€ 69,00

Accessoires voor je product

PGH hardwasolie 0,75 L

Meer details weergeven

PGH hardwasolie 0,75 L

Hoogwaardige hardwaxolie voor binnen

Onze hardwaxolie biedt een hoogwaardige oplossing voor het gronden en behandelen van verschillende absorberende interieuroppervlakken. Met een zijdematte, slijtvaste afwerking die natuurlijke texturen doet herleven en tinten verdiept, biedt het de beste resultaten voor houten, kurk- en stenen vloeren en andere oppervlakken. Gemakkelijk in gebruik en getest volgens de hoogste normen, is het de ideale keuze voor professionele resultaten.

Artikelgegevens van de hardwaxolie:

  • Toepassing: Voorstrijken en behandelen van zuigende ondergronden binnenshuis.

  • Eigenschappen: Zijdemat oppervlak, verdiept de kleur, waterafstotend.
  • Getest op chemische weerstand en migratie.
  • Ingrediënten: Lijnolie, houtolie, ricinusolie, natuurlijke harsester, andere.
  • VOC-gehalte: Max. 440 g/l (EU-grenswaarde: max. 500 g/l).
  • Toepassing: Schudden voor gebruik, dun aanbrengen, polijsten.
  • Droogtijd: Ca. 6-12 uur, overschilderbaar na 16-24 uur.
  • Verbruik: 30-50 g/m²; dekking ca. 20 m²/l.
  • Opslag: Koel, droog en ongeopend ten minste 24 maanden houdbaar.
  • Verwijdering: Volgens plaatselijke voorschriften.
  • Opmerkingen: Kleurgegevens niet bindend, proeflaag aanbevolen.

€ 39,00

Beoordelingen

Gemiddelde waardering van 4.1 van 5 sterren

(11)

Gemiddelde waardering van 4.1 van 5 sterren

(11 Beoordelingen)

Gemiddelde waardering van 4 van 5 sterren

Gemiddelde waardering van 5 van 5 sterren

Gemiddelde waardering van 4.5 van 5 sterren

Gemiddelde waardering van 3 van 5 sterren

Gemiddelde waardering van 5 van 5 sterren

Gemiddelde waardering van 4.5 van 5 sterren

Gemiddelde waardering van 5 van 5 sterren

Gemiddelde waardering van 3 van 5 sterren

Gemiddelde waardering van 4 van 5 sterren

Gemiddelde waardering van 5 van 5 sterren

Productdetails
Details:
Wanddikte
44
Type materiaal
Noords sparrenhout | Pijnboom
Oppervlaktebehandeling
Zonder
Basiskleur
Onbehandeld
Vloeroppervlak
25,8
Totale afmetingen (cm)
756 x 400
Totale hoogte
270
Volume
74,3
spiegelbeeld constructie mogelijk voor
Ja
Vloer
Als accessoires
Bouwwijze
Blokplankenbouw
Dakvorm
Zadeldak
Dakoppervlak (m²)
31,3
Dakhelling
15
Dakbedekking
Zonder
Binnenafmetingen (cm)
351 x 351
Afmetingen van de basis (cm)
711 x 356
Afmetingen deuren (cm)
154 x 190 cm
Aantal ramen
2
Uitvoering ramen
Vast raam
Afmetingen ramen (cm)
55 x 190 cm | 55 x 190 cm
Beglazing
Isolerend glas

Populaire producten