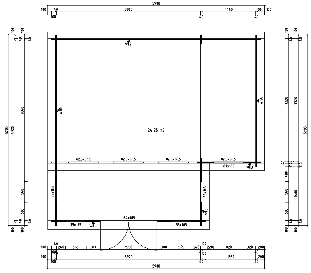
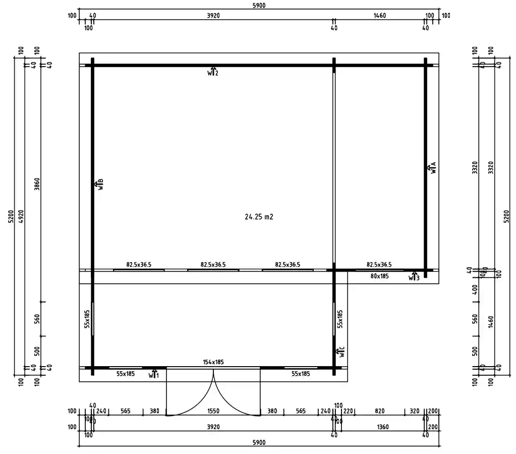
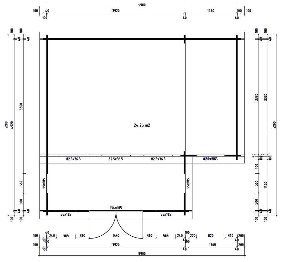
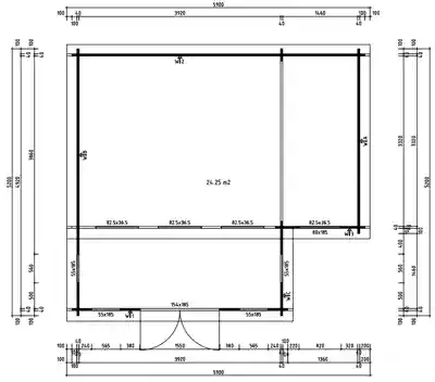
Dit heb je nodig voor de montage
Levering in gewenst tijdvak en services
Levering op het gewenste tijdstip - 1.-15. Februari
Meer details weergeven
Wil je nu een tuinhuisje, carport of sauna kopen maar wachten tot later om het te laten leveren? - Maak gebruik van onze levering op het gewenste moment en profiteer van onze voorseizoenprijzen.
Wat moet u doen?
- Selecteer de juiste variant van dit artikel voor de gewenste leveringsperiode (u kunt de gewenste maand en de gewenste helft van de maand selecteren) en plaats het vervolgens in het winkelmandje.
- Wij nemen ca. 10 dagen voor het begin van de door u geselecteerde bezorgperiode contact met u op om de levertijd met u af te stemmen.
- We leveren je bestelling op de afgesproken datum.
Houd er rekening mee dat een eerdere levering van de bestelling dan het door jou gekozen tijdsvak alleen in uitzonderlijke gevallen mogelijk is. We kunnen het exacte tijdstip van levering pas bekendmaken bij de definitieve tourplanning. Een levering op een gewenste datum kan niet altijd worden gegarandeerd, vooral niet tijdens het hoogseizoen, dus plan de leverdatum altijd met een buffer.
Individuele accessoire-artikelen die we niet vanuit ons centrale magazijn verzenden, worden je van tevoren toegestuurd nadat je je bestelling hebt geplaatst. Helaas kan dit om logistieke redenen niet worden vermeden.
€ 1,00
Accessoires voor je product
Windverankering voor Blokplanken
Meer details weergeven
Windverankering voor Blokplanken
Wij raden u aan om in bijzonder sterke windstreken uw tuinhuis te beveiligen met een extra Windverankering. De set bestaat uit stabiele draadstangen, die met behulp van speciale metalen beugels en trekveren in alle vier de hoeken van uw Tuin van buiten of binnen worden gemonteerd.
De draadstangen verbinden de onderste en de bovenste plank en voorkomen zo dat de afzonderlijke Blokplanken uit elkaar vallen en houden ze bij stormachtig weer mm.
Aangezien de afzonderlijke Blokplanken niet aan elkaar moeten worden geschroefd, is het vastzetten met deze set de beste manier om de planken met elkaar te verbinden.
De set bestaat uit 8x
draadstangen M6 x 1000mm (geschikt voor Montage alle 4 de hoeken) incl. aansluitbussen, Montage, trekveren en Montage met schroeven.
Het Montage (schroeven) is geschikt voor Blokplanken met een Wanddikte van 19-45 mm. Als u deze setmm voor dikkere stammen Blokplanken 45 mm), moeten de schroeven ter plaatse worden vervangen door langere schroeven !
Voor een 100% Stormbeveiliging adviseren wij een combinatie van deze set en de Hoekijzers voor bevestiging aan de Fundering.
€ 59,00
Houten Bar
Meer details weergeven
Artikel omschrijving:
- Buitenafmeting: 200 x 75 cm
- Afmeting voet: 190 x 65 cm
- Totale hoogte: ca. 110 cm
- Diepte aanrecht: ca. 45 cm
- incl. montagehandleiding & montagemateriaal
- Materiaal dikte: 40 mm
- Zij-aan-zij montage mogelijk
€ 699,00
Accessoires voor buitengebruik
Accessoires voor binnengebruik

