Ga naar de hoofdinhoud Ga naar de zoekopdracht Ga naar de hoofdnavigatie
Advies
Sales Contact Image
Verkoop advies 030 202 5006
Onze hotline
Dagen
20% korting op dakbedekking | Code: ROOF20 | Prijsstijging vanaf 5 mei als gevolg van hogere logistieke kosten

€ 3.599,00

-20% op dakbedekking | Code : ROOF20

Comfort Set saunahuis Lizzy XXS

De hieronder geselecteerde accessoires worden aan de winkelwagen toegevoegd.
Purchase Advice Image
Persoonlijk product- en aankoopadvies gewenst Tel: 030 202 5006
Vragen over het product en extra deal binnen halen?
Levertijd 6-7 weken
Paid Delivery Icon
Veilig betalen
Skonto Icon
3% korting bij vooruitbetaling
Levering in gewenst tijdvak
Passende accessoires bij dit product
Productbeschrijving

Het FinnTherm Lizzy XXS saunahuisje is bijzonder uitnodigend dankzij de grote glazen voorkant. De kleinste versie van deze serie is ook perfect voor kleine tuinen. Het saunahuisje wordt geleverd met de accessoires die in de set zitten (dakbedekking, saunakachel, accessoires voor de kachel en andere accessoires). We hebben een allround zorgeloos pakket voor je samengesteld, dat wil zeggen dat je je nergens zorgen over hoeft te maken en snel kunt genieten van de voordelen van je sauna.

 

incl. saunakachel en accessoires

✓ incl. dakbedekking en installatieaccessoires

incl. saunaset

 

Artikelgegevens en leveringsomvang van de Comfort Set saunahuis Lizzy XXS:

Sauna:

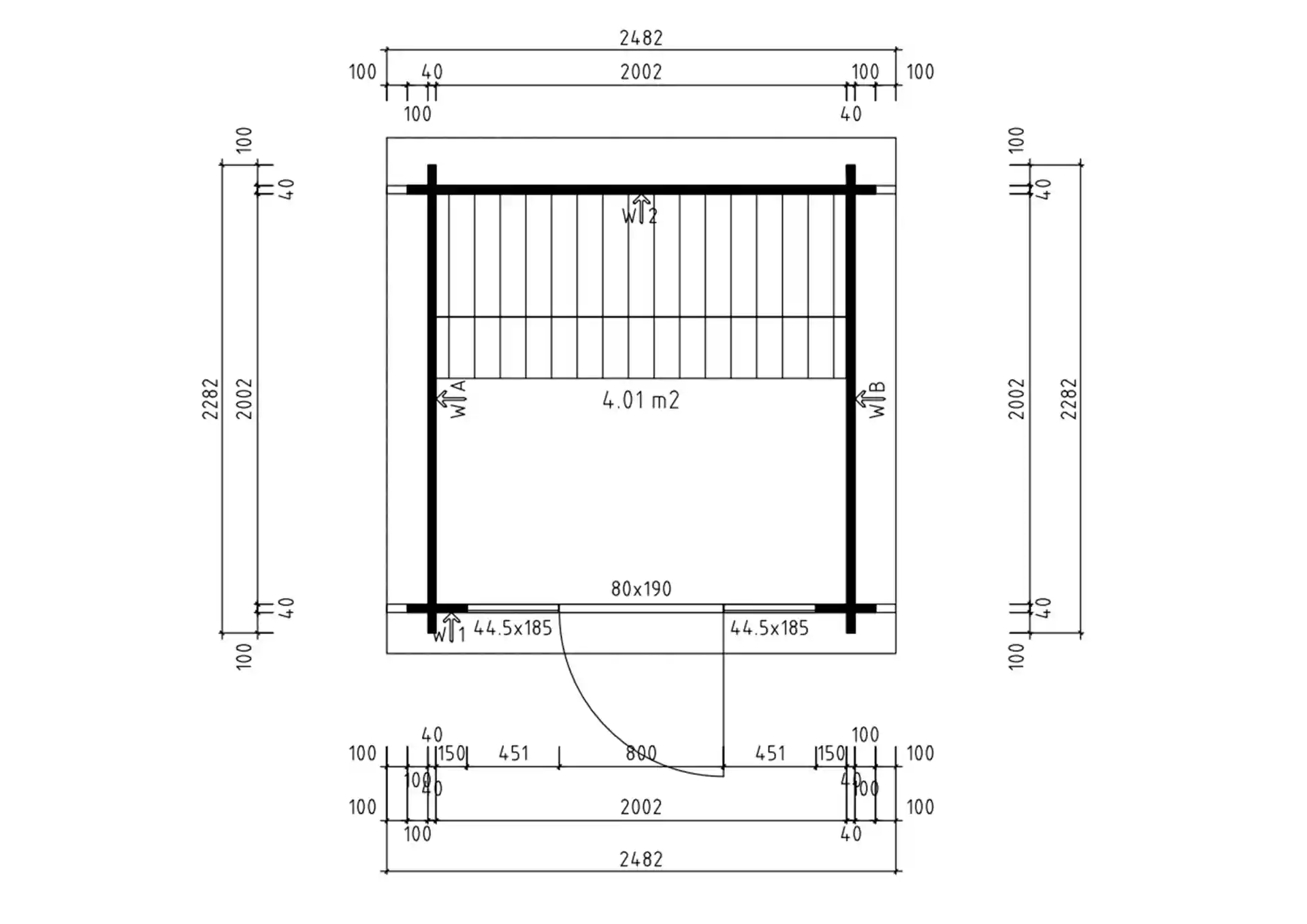
  • Afmetingen dak: B 248 x D 251 cm
  • Binnenafmetingen: B 200 x D 200 cm
  • Hoogte fries: 262 cm
  • Hoogte zijwanden: 205 cm
  • Wanddikte: 40 mm
  • Dakvorm: Plat dak
  • Dakoverstek voor/links/rechts/achter: 10/10/10/10 cm
  • Materiaal: Scandinavisch vurenhout, naturel (zonder kleurbehandeling)
  • Aantal banken: 2
  • Maximaal aantal personen: 3
  • Enkele deur met glas: 80 x 190 cm
  • Enkel raam: 45 x 185 cm elk
  • Saunaruimte: ca. B 200 x D 200 cm
  • Ventilatierooster
  • Vloer 18 mm
  • Massief houten dak 18 mm
  • Deurgreepset & montagemateriaal

Kachel:

  • Type kachel: elektrisch
  • Kleur: zilver
  • Vermogen kachel: 9,0 kW
  • Type installatie: wandmontage
  • Stroomvoorziening: 400 Volt
  • Materiaal: aluminium/roestvrij staal
  • Type kachel: Fins, voor hete, droge sauna's
  • Afmetingen kachel: breedte 49,5 cm, diepte 27,5 cm, hoogte 44 cm
  • Geïntegreerde bediening op de kachel
  • incl. 20 kg saunastenen (Ø 5-10 cm) en FinnTherm siliconenkabel 5-polig 2,5 mm² - 5 m

Verdere accessoires:

  • EPDM dakbedekking incl. hoekprofiel type 1 c en blikschroeven
  • Vochtscherm - rubbergranulaat pads (ca. 50 stuks)
  • Stormhoek (4 stuks)
  • Saunaremmer 4 liter van dennenhout
  • Opscheplepel van dennenhout
  • Thermometer en hygrometer
  • Dennenhouten zandloper
Accessoires en services
1 Accessoire(s) is zojuist geselecteerd (inclusief onze aanbevelingen). De juiste hoeveelheden zijn vooraf ingesteld.

Levering in gewenst tijdvak en services

Comfortgarantie

Meer details weergeven

Comfortgarantie

Welke producten worden door de comfortgarantie gedekt?

Onze comfortgarantie geldt uitsluitend voor producten die voor privégebruik bedoeld zijn. Daaronder vallen:

  • Tuinhuisjes en schuren – een plek om te ontspannen of om spullen op te bergen
  • Sauna’s – voor ontspanning en wellness in je eigen huis
  • Speeltoestellen voor kinderen – voor urenlang veilig speelplezier
  • Houten tuinpaviljoens – jouw eigen stukje paradijs in de tuin
  • Carports – betrouwbare bescherming tegen regen, sneeuw en zon
  • Garages – veilige opslag voor je voertuig en extra bergruimte

Je kunt vertrouwen op de kwaliteit van je product. Gaat er toch iets mis? Dan lossen we het snel voor je op.

Wat valt er onder de Comfortgarantie?

Met de comfortgarantie ben je goed beschermd. Gaat er iets kapot? Dan ontvang je gratis de juiste vervangende onderdelen voor:

  • Deuren – glasschade tot € 200
  • Ramen – glasschade tot € 200
  • Dakgoten – voor een goede waterafvoer
  • Deursloten – voor optimale veiligheid
  • Hang- en sluitwerk – voor het vervangen van kleine maar essentiële onderdelen
  • Dakbedekking – zoals dakleer, shingles of KSK-folie

Belangrijk om te weten:

De comfortgarantie dekt uitsluitend de levering van vervangende onderdelen. De installatie is niet inbegrepen en moet je zelf uitvoeren.
Met de comfortgarantie ben je optimaal beschermd en geniet je zonder zorgen van je product.

Garantievoorwaarden
Alle details en aanvullende informatie over de comfortgarantie.

Vragen?
Onze klantenservice helpt je graag verder!

€ 69,00

Accessoires voor je product

Witte LED-set, 270 cm

Meer details weergeven

Witte LED-set, 270 cm

Deze LED-verlichting zorgt voor aangenaam, indirect licht in uw sauna. Dankzij de variabele kleurtemperaturen - van warm wit (2700K) tot daglichtwit (6500K) - kun je naar wens schakelen tussen koele en warme lichttonen. Het kan gemakkelijk worden bediend met een afstandsbediening, direct op het apparaat of via een app.

De LED-strip is speciaal ontworpen voor gebruik in sauna's en is hittebestendig en waterdicht, waardoor hij ideaal is voor veeleisende omstandigheden.

De installatie is eenvoudig: verwijder het beschermpapier van de zelfklevende tape en bevestig de strip. De strip kan stevig onder de saunabanken worden bevestigd met de bijgeleverde bevestigingsclips. Indien nodig kunnen de lichtjes op de gemarkeerde punten worden ingekort met een schaar.

De complete set bevat alle benodigde onderdelen voor stijlvolle en functionele verlichting in uw sauna.

 

Eenvoudige installatie

LED verlichting voor uw sauna

individueel lichtontwerp

 

Details van de set saunalampen:

  • Lengte: 270 cm
  • Kleurtemperatuur: 2700K tot 6500K
  • Bediening: via afstandsbediening of app

 

Leveringsomvang:

  • LED-strip, 270 cm, 24V DC

  • Besturingseenheid

  • Waterdichte doos voor besturingseenheid IP67

  • Afstandsbediening incl. batterijen

  • Stroomkabel

  • Bevestigingsklemmen incl. schroeven

  • batterijen

De elektrische aansluiting van de set mag volgens de geldende voorschriften alleen door een erkende elektricien worden uitgevoerd.

€ 259,00

Veelkleurige LED-set, 270 cm

Meer details weergeven

Veelkleurige LED-set, 270 cm

Deze LED-verlichting zorgt voor aangenaam, indirect licht in uw sauna. Dankzij de variabele kleurinstellingen kun je naar wens schakelen tussen koele en warme lichttonen. De verlichting kan eenvoudig worden bediend met een afstandsbediening, rechtstreeks op het apparaat of via een app.

De LED-strip is speciaal ontworpen voor gebruik in de sauna en is hittebestendig en waterdicht, waardoor hij ideaal is voor veeleisende omstandigheden.

De installatie is eenvoudig: verwijder het beschermpapier van de zelfklevende tape en bevestig de strip. De strip kan stevig onder de saunabanken worden bevestigd met de bijgeleverde bevestigingsclips. Indien nodig kunnen de lichtjes op de gemarkeerde punten worden ingekort met een schaar.

De complete set bevat alle benodigde onderdelen voor stijlvolle en functionele verlichting in uw sauna.

 

Eenvoudige installatie

Kleurrijk LED licht voor uw sauna

Individueel lichtontwerp

 

Details van de set saunalampen:

  • Lengte: 270 cm
  • Kleur: RGB, 2700K tot 6500K
  • Bediening: via afstandsbediening of app

 

Leveringsomvang:

  • LED RGB-strip, 270 cm, 24V DC

  • Besturingseenheid

  • Waterdichte kast voor besturingseenheid IP67

  • Afstandsbediening incl. batterijen

  • Stroomkabel

  • Bevestigingsklemmen incl. schroeven

  • batterijen

De elektrische aansluiting van de set mag volgens de geldende voorschriften alleen door een erkende elektricien worden uitgevoerd.

€ 289,00

Weerbeschermingskleurenset S - tot 34 m² - Schwedenrot - Wetterschutzfarbe

Meer details weergeven

Weerbeschermingskleurenset S - tot 34 m² - Schwedenrot - Wetterschutzfarbe

Onze weersbestendige kleurset S - tot 34 m² beschermt hout buiten op betrouwbare wijze tegen zon, regen, kou en UV-straling. De elastische verflaag zorgt voor langdurige bescherming en een egaal, gekleurd oppervlak.

De milieuvriendelijke, halfglanzende rode houtkleur is bijzonder duurzaam, bladdert niet af en is ideaal voor ruw gezaagd hout en alle houten constructies buiten.

  • Goede dekking
  • Weer- en UV-bestendig
  • Waterdampdoorlatend
  • Elastische coatinglaag
  • Filmbescherming tegen schimmelaantasting
  • Bestand tegen speeksel en transpiratie (DIN 53 160)

Voordat je je hout de definitieve look geeft met de weerbestendige verf, heeft het de juiste voorbereiding nodig. Dat is precies waar onze houtgrondverf met open poriën voor gemaakt is.

Deze dringt diep door in het hout, blijft ademen en zorgt voor een ideale hechting van je volgende laag. Zo haal je het beste uit je houtbeits of -lak - zowel visueel als technisch.

Waarom je moet primen:

  • Optimale hechting voor beitsen & vernissen
  • Open poriën & zeer effectief
  • Geschikt voor buiten
  • Met filmbescherming tegen schimmelaantasting
  • Weerbestendig na volledige droging

Leveringsomvang:

  • 1 x 2,5 l houtprimer
  • 2 x 2,5 l weerbeschermingsverf in Zweeds rood

€ 169,00

Onze weersbestendige kleurset S - tot 34 m² beschermt hout buiten op betrouwbare wijze tegen zon, regen, kou en UV-straling. De elastische verflaag zorgt voor langdurige bescherming en een egaal, gekleurd oppervlak.

De milieuvriendelijke, halfglanzende rode houtkleur is bijzonder duurzaam, bladdert niet af en is ideaal voor ruw gezaagd hout en alle houten constructies buiten.

  • Goede dekking
  • Weer- en UV-bestendig
  • Waterdampdoorlatend
  • Elastische coatinglaag
  • Filmbescherming tegen schimmelaantasting
  • Bestand tegen speeksel en transpiratie (DIN 53 160)

Voordat je je hout de definitieve look geeft met de weerbestendige verf, heeft het de juiste voorbereiding nodig. Dat is precies waar onze houtgrondverf met open poriën voor gemaakt is.

Deze dringt diep door in het hout, blijft ademen en zorgt voor een ideale hechting van je volgende laag. Zo haal je het beste uit je houtbeits of -lak - zowel visueel als technisch.

Waarom je moet primen:

  • Optimale hechting voor beitsen & vernissen
  • Open poriën & zeer effectief
  • Geschikt voor buiten
  • Met filmbescherming tegen schimmelaantasting
  • Weerbestendig na volledige droging

Leveringsomvang:

  • 1 x 2,5 l houtprimer
  • 2 x 2,5 l weerbeschermingsverf in Zweeds rood

Onze weersbestendige kleurset S - tot 34 m² beschermt hout buiten op betrouwbare wijze tegen zon, regen, kou en UV-straling. De elastische verflaag zorgt voor langdurige bescherming en een egaal, gekleurd oppervlak.

De milieuvriendelijke, halfglanzende antraciet houtkleur is bijzonder duurzaam, bladdert niet af en is ideaal voor ruw gezaagd hout en alle houten constructies buiten.

  • Goede dekking
  • Weer- en UV-bestendig
  • Waterdampdoorlatend
  • Elastische coatinglaag
  • Filmbescherming tegen schimmelaantasting
  • Bestand tegen speeksel en transpiratie (DIN 53 160)

Voordat je je hout de definitieve look geeft met de weerbestendige verf, heeft het de juiste voorbereiding nodig. Dat is precies waar onze houtgrondverf met open poriën voor gemaakt is.

Deze dringt diep door in het hout, blijft ademen en zorgt voor een ideale hechting van je volgende laag. Zo haal je het beste uit je houtbeits of -lak - zowel visueel als technisch.

Waarom je moet primen:

  • Optimale hechting voor beitsen & vernissen
  • Open poriën & zeer effectief
  • Geschikt voor buiten
  • Met filmbescherming tegen schimmelaantasting
  • Weerbestendig na volledige droging

Leveringsomvang:

  • 1 x 2,5 l houtprimer
  • 2 x 2,5 l weerbeschermingsverf in antracietgrijs

Onze weersbestendige kleurset S - tot 34 m² beschermt hout buiten op betrouwbare wijze tegen zon, regen, kou en UV-straling. De elastische coatinglaag zorgt voor langdurige bescherming en een egaal, gekleurd oppervlak.

De milieuvriendelijke, halfglanzende witte houtkleur is bijzonder duurzaam, bladdert niet af en is ideaal voor ruw gezaagd hout en alle houten constructies buiten.

  • Goede dekking
  • Weer- en UV-bestendig
  • Waterdampdoorlatend
  • Elastische coatinglaag
  • Filmbescherming tegen schimmelaantasting
  • Bestand tegen speeksel en transpiratie (DIN 53 160)

Voordat je je hout de definitieve look geeft met de weerbestendige verf, heeft het de juiste voorbereiding nodig. Dat is precies waar onze houtgrondverf met open poriën voor gemaakt is.

Deze dringt diep door in het hout, blijft ademen en zorgt voor een ideale hechting van je volgende laag. Zo haal je het beste uit je houtbeits of -lak - zowel visueel als technisch.

Waarom je moet primen:

  • Optimale hechting voor beitsen & vernissen
  • Open poriën & zeer effectief
  • Geschikt voor buiten
  • Met filmbescherming tegen schimmelaantasting
  • Weerbestendig na volledige droging

Leveringsomvang:

  • 1 x 2,5 l houtprimer
  • 2 x 2,5 l weerbeschermingskleur in wit

Onze weersbestendige kleurset S - tot 34 m² beschermt hout buiten op betrouwbare wijze tegen zon, regen, kou en UV-straling. De elastische verflaag zorgt voor langdurige bescherming en een egaal, gekleurd oppervlak.

De milieuvriendelijke, halfglanzende zwarte houtkleur is bijzonder duurzaam, bladdert niet af en is ideaal voor ruw gezaagd hout en alle houten constructies buiten.

  • Goede dekking
  • Weer- en UV-bestendig
  • Waterdampdoorlatend
  • Elastische coatinglaag
  • Filmbescherming tegen schimmelaantasting
  • Bestand tegen speeksel en transpiratie (DIN 53 160)

Voordat je je hout de definitieve look geeft met de weerbestendige verf, heeft het de juiste voorbereiding nodig. Dat is precies waar onze houtgrondverf met open poriën voor gemaakt is.

Deze dringt diep door in het hout, blijft ademen en zorgt voor een ideale hechting van je volgende laag. Zo haal je het beste uit je houtbeits of -lak - zowel visueel als technisch.

Waarom je moet primen:

  • Optimale hechting voor beitsen & vernissen
  • Open poriën & zeer effectief
  • Geschikt voor buiten
  • Met filmbescherming tegen schimmelaantasting
  • Weerbestendig na volledige droging

Leveringsomvang:

  • 1 x 2,5 l houtprimer
  • 2 x 2,5 l weerbeschermingskleur in zwart

Onze weersbestendige kleurset S - tot 34 m² beschermt hout buiten op betrouwbare wijze tegen zon, regen, kou en UV-straling. De elastische verflaag zorgt voor langdurige bescherming en een egaal, gekleurd oppervlak.

De milieuvriendelijke, halfglanzende rode houtkleur is bijzonder duurzaam, bladdert niet af en is ideaal voor ruw gezaagd hout en alle houten constructies buiten.

  • Goede dekking
  • Weer- en UV-bestendig
  • Waterdampdoorlatend
  • Elastische coatinglaag
  • Filmbescherming tegen schimmelaantasting
  • Bestand tegen speeksel en transpiratie (DIN 53 160)

Voordat je je hout de definitieve look geeft met de weerbestendige verf, heeft het de juiste voorbereiding nodig. Dat is precies waar onze houtgrondverf met open poriën voor gemaakt is.

Deze dringt diep door in het hout, blijft ademen en zorgt voor een ideale hechting van je volgende laag. Zo haal je het beste uit je houtbeits of -lak - zowel visueel als technisch.

Waarom je moet primen:

  • Optimale hechting voor beitsen & vernissen
  • Open poriën & zeer effectief
  • Geschikt voor buiten
  • Met filmbescherming tegen schimmelaantasting
  • Weerbestendig na volledige droging

Leveringsomvang:

  • 1 x 2,5 l houtprimer
  • 2 x 2,5 l weerbeschermingsverf in Zweeds rood

Onze weersbestendige kleurset S - tot 34 m² beschermt hout buiten op betrouwbare wijze tegen zon, regen, kou en UV-straling. De elastische verflaag zorgt voor langdurige bescherming en een egaal, gekleurd oppervlak.

De milieuvriendelijke, halfglanzende antraciet houtkleur is bijzonder duurzaam, bladdert niet af en is ideaal voor ruw gezaagd hout en alle houten constructies buiten.

  • Goede dekking
  • Weer- en UV-bestendig
  • Waterdampdoorlatend
  • Elastische coatinglaag
  • Filmbescherming tegen schimmelaantasting
  • Bestand tegen speeksel en transpiratie (DIN 53 160)

Voordat je je hout de definitieve look geeft met de weerbestendige verf, heeft het de juiste voorbereiding nodig. Dat is precies waar onze houtgrondverf met open poriën voor gemaakt is.

Deze dringt diep door in het hout, blijft ademen en zorgt voor een ideale hechting van je volgende laag. Zo haal je het beste uit je houtbeits of -lak - zowel visueel als technisch.

Waarom je moet primen:

  • Optimale hechting voor beitsen & vernissen
  • Open poriën & zeer effectief
  • Geschikt voor buiten
  • Met filmbescherming tegen schimmelaantasting
  • Weerbestendig na volledige droging

Leveringsomvang:

  • 1 x 2,5 l houtprimer
  • 2 x 2,5 l weerbeschermingsverf in antracietgrijs

Onze weersbestendige kleurset S - tot 34 m² beschermt hout buiten op betrouwbare wijze tegen zon, regen, kou en UV-straling. De elastische coatinglaag zorgt voor langdurige bescherming en een egaal, gekleurd oppervlak.

De milieuvriendelijke, halfglanzende witte houtkleur is bijzonder duurzaam, bladdert niet af en is ideaal voor ruw gezaagd hout en alle houten constructies buiten.

  • Goede dekking
  • Weer- en UV-bestendig
  • Waterdampdoorlatend
  • Elastische coatinglaag
  • Filmbescherming tegen schimmelaantasting
  • Bestand tegen speeksel en transpiratie (DIN 53 160)

Voordat je je hout de definitieve look geeft met de weerbestendige verf, heeft het de juiste voorbereiding nodig. Dat is precies waar onze houtgrondverf met open poriën voor gemaakt is.

Deze dringt diep door in het hout, blijft ademen en zorgt voor een ideale hechting van je volgende laag. Zo haal je het beste uit je houtbeits of -lak - zowel visueel als technisch.

Waarom je moet primen:

  • Optimale hechting voor beitsen & vernissen
  • Open poriën & zeer effectief
  • Geschikt voor buiten
  • Met filmbescherming tegen schimmelaantasting
  • Weerbestendig na volledige droging

Leveringsomvang:

  • 1 x 2,5 l houtprimer
  • 2 x 2,5 l weerbeschermingskleur in wit

Onze weersbestendige kleurset S - tot 34 m² beschermt hout buiten op betrouwbare wijze tegen zon, regen, kou en UV-straling. De elastische verflaag zorgt voor langdurige bescherming en een egaal, gekleurd oppervlak.

De milieuvriendelijke, halfglanzende zwarte houtkleur is bijzonder duurzaam, bladdert niet af en is ideaal voor ruw gezaagd hout en alle houten constructies buiten.

  • Goede dekking
  • Weer- en UV-bestendig
  • Waterdampdoorlatend
  • Elastische coatinglaag
  • Filmbescherming tegen schimmelaantasting
  • Bestand tegen speeksel en transpiratie (DIN 53 160)

Voordat je je hout de definitieve look geeft met de weerbestendige verf, heeft het de juiste voorbereiding nodig. Dat is precies waar onze houtgrondverf met open poriën voor gemaakt is.

Deze dringt diep door in het hout, blijft ademen en zorgt voor een ideale hechting van je volgende laag. Zo haal je het beste uit je houtbeits of -lak - zowel visueel als technisch.

Waarom je moet primen:

  • Optimale hechting voor beitsen & vernissen
  • Open poriën & zeer effectief
  • Geschikt voor buiten
  • Met filmbescherming tegen schimmelaantasting
  • Weerbestendig na volledige droging

Leveringsomvang:

  • 1 x 2,5 l houtprimer
  • 2 x 2,5 l weerbeschermingskleur in zwart

Set houtbeits - buiten S - tot 34 m² - Weiß - Lasur

Meer details weergeven

Set houtbeits - buiten S - tot 34 m² - Weiß - Lasur

Onze transparante houtbeits set - exterieur S - tot 34 m² voor buiten is ideaal voor het beschermen en decoratief coaten van hout. Het glazuur met open poriën is weer- en waterbestendig en behoudt de natuurlijke houtstructuur.

Met de filmbescherming tegen schimmel- en blauwschimmelaantasting is de beits ideaal voor ramen, deuren, hekken, pergola's, dakoverstekken en houten lambriseringen.

Voordat je je hout de uiteindelijke look geeft met de houtbeits, heeft het de juiste voorbereiding nodig. Dat is precies waar onze houtprimer met open poriën voor gemaakt is.

Deze dringt diep door in het hout, blijft ademen en zorgt voor een ideale hechting van je volgende laag. Zo haal je het beste uit je houtbeits of -lak - zowel visueel als technisch.

Waarom je moet primen:

  • Optimale hechting voor beitsen & vernissen
  • Open poriën & zeer effectief
  • Geschikt voor buiten
  • Met filmbescherming tegen schimmelaantasting
  • Weerbestendig na volledige droging

Leveringsomvang:

  • 1 x 2,5 l houtprimer
  • 2 x 2,5 l houtbeits in transparant wit

€ 159,00

Onze transparante houtbeits set - exterieur S - tot 34 m² voor buiten is ideaal voor het beschermen en decoratief coaten van hout. Het glazuur met open poriën is weer- en waterbestendig en behoudt de natuurlijke houtstructuur.

Met de filmbescherming tegen schimmel- en blauwschimmelaantasting is de beits ideaal voor ramen, deuren, hekken, pergola's, dakoverstekken en houten lambriseringen.

Voordat je je hout de uiteindelijke look geeft met de houtbeits, heeft het de juiste voorbereiding nodig. Dat is precies waar onze houtprimer met open poriën voor gemaakt is.

Deze dringt diep door in het hout, blijft ademen en zorgt voor een ideale hechting van je volgende laag. Zo haal je het beste uit je houtbeits of -lak - zowel visueel als technisch.

Waarom je moet primen:

  • Optimale hechting voor beitsen & vernissen
  • Open poriën & zeer effectief
  • Geschikt voor buiten
  • Met filmbescherming tegen schimmelaantasting
  • Weerbestendig na volledige droging

Leveringsomvang:

  • 1 x 2,5 l houtprimer
  • 2 x 2,5 l houtbeits in transparant wit

Onze transparante houtbeits set - exterieur S - tot 34 m² voor buiten is ideaal voor het beschermen en decoratief coaten van hout. Het glazuur met open poriën is weer- en waterbestendig en behoudt de natuurlijke houtstructuur.

Met de filmbescherming tegen schimmel- en blauwschimmelaantasting is de beits ideaal voor ramen, deuren, hekken, pergola's, dakoverstekken en houten lambriseringen.

Voordat je je hout de uiteindelijke look geeft met de houtbeits, heeft het de juiste voorbereiding nodig. Dat is precies waar onze houtprimer met open poriën voor gemaakt is.

Deze dringt diep door in het hout, blijft ademen en zorgt voor een ideale hechting van je volgende laag. Zo haal je het beste uit je houtbeits of -lak - zowel visueel als technisch.

Waarom je moet primen:

  • Optimale hechting voor beitsen & vernissen
  • Open poriën & zeer effectief
  • Geschikt voor buiten
  • Met filmbescherming tegen schimmelaantasting
  • Weerbestendig na volledige droging

Leveringsomvang:

  • 1 x 2,5 l houtprimer
  • 2 x 2,5 l houtbeits in transparante grenen kleur

Onze transparante houtbeits set - exterieur S - tot 34 m² voor buiten is ideaal voor het beschermen en decoratief coaten van hout. Het glazuur met open poriën is weer- en waterbestendig en behoudt de natuurlijke houtstructuur.

Met de filmbescherming tegen schimmel- en blauwschimmelaantasting is de beits ideaal voor ramen, deuren, hekken, pergola's, dakoverstekken en houten lambriseringen.

Voordat je je hout de uiteindelijke look geeft met de houtbeits, heeft het de juiste voorbereiding nodig. Dat is precies waar onze houtprimer met open poriën voor gemaakt is.

Deze dringt diep door in het hout, blijft ademen en zorgt voor een ideale hechting van je volgende laag. Zo haal je het beste uit je houtbeits of -lak - zowel visueel als technisch.

Waarom je moet primen:

  • Optimale hechting voor beitsen & vernissen
  • Open poriën & zeer effectief
  • Geschikt voor buiten
  • Met filmbescherming tegen schimmelaantasting
  • Weerbestendig na volledige droging

Leveringsomvang:

  • 1 x 2,5 l houtprimer
  • 2 x 2,5 l houtbeits in transparant lichtgrijs

Onze transparante houtbeits set - exterieur S - tot 34 m² voor buiten is ideaal voor het beschermen en decoratief coaten van hout. Het glazuur met open poriën is weer- en waterbestendig en behoudt de natuurlijke houtstructuur.

Met de filmbescherming tegen schimmel- en blauwschimmelaantasting is de beits ideaal voor ramen, deuren, hekken, pergola's, dakoverstekken en houten lambriseringen.

Voordat je je hout de uiteindelijke look geeft met de houtbeits, heeft het de juiste voorbereiding nodig. Dat is precies waar onze houtprimer met open poriën voor gemaakt is.

Deze dringt diep door in het hout, blijft ademen en zorgt voor een ideale hechting van je volgende laag. Zo haal je het beste uit je houtbeits of -lak - zowel visueel als technisch.

Waarom je moet primen:

  • Optimale hechting voor beitsen & vernissen
  • Open poriën & zeer effectief
  • Geschikt voor buiten
  • Met filmbescherming tegen schimmelaantasting
  • Weerbestendig na volledige droging

Leveringsomvang:

  • 1 x 2,5 l houtprimer
  • 2 x 2,5 l houtbeits in transparant antracietgrijs

Onze transparante houtbeits set - exterieur S - tot 34 m² voor buiten is ideaal voor het beschermen en decoratief coaten van hout. Het glazuur met open poriën is weer- en waterbestendig en behoudt de natuurlijke houtstructuur.

Met de filmbescherming tegen schimmel- en blauwschimmelaantasting is de beits ideaal voor ramen, deuren, hekken, pergola's, dakoverstekken en houten lambriseringen.

Voordat je je hout de uiteindelijke look geeft met de houtbeits, heeft het de juiste voorbereiding nodig. Dat is precies waar onze houtprimer met open poriën voor gemaakt is.

Deze dringt diep door in het hout, blijft ademen en zorgt voor een ideale hechting van je volgende laag. Zo haal je het beste uit je houtbeits of -lak - zowel visueel als technisch.

Waarom je moet primen:

  • Optimale hechting voor beitsen & vernissen
  • Open poriën & zeer effectief
  • Geschikt voor buiten
  • Met filmbescherming tegen schimmelaantasting
  • Weerbestendig na volledige droging

Leveringsomvang:

  • 1 x 2,5 l houtprimer
  • 2 x 2,5 l houtbeits in transparant wit

Onze transparante houtbeits set - exterieur S - tot 34 m² voor buiten is ideaal voor het beschermen en decoratief coaten van hout. Het glazuur met open poriën is weer- en waterbestendig en behoudt de natuurlijke houtstructuur.

Met de filmbescherming tegen schimmel- en blauwschimmelaantasting is de beits ideaal voor ramen, deuren, hekken, pergola's, dakoverstekken en houten lambriseringen.

Voordat je je hout de uiteindelijke look geeft met de houtbeits, heeft het de juiste voorbereiding nodig. Dat is precies waar onze houtprimer met open poriën voor gemaakt is.

Deze dringt diep door in het hout, blijft ademen en zorgt voor een ideale hechting van je volgende laag. Zo haal je het beste uit je houtbeits of -lak - zowel visueel als technisch.

Waarom je moet primen:

  • Optimale hechting voor beitsen & vernissen
  • Open poriën & zeer effectief
  • Geschikt voor buiten
  • Met filmbescherming tegen schimmelaantasting
  • Weerbestendig na volledige droging

Leveringsomvang:

  • 1 x 2,5 l houtprimer
  • 2 x 2,5 l houtbeits in transparante grenen kleur

Onze transparante houtbeits set - exterieur S - tot 34 m² voor buiten is ideaal voor het beschermen en decoratief coaten van hout. Het glazuur met open poriën is weer- en waterbestendig en behoudt de natuurlijke houtstructuur.

Met de filmbescherming tegen schimmel- en blauwschimmelaantasting is de beits ideaal voor ramen, deuren, hekken, pergola's, dakoverstekken en houten lambriseringen.

Voordat je je hout de uiteindelijke look geeft met de houtbeits, heeft het de juiste voorbereiding nodig. Dat is precies waar onze houtprimer met open poriën voor gemaakt is.

Deze dringt diep door in het hout, blijft ademen en zorgt voor een ideale hechting van je volgende laag. Zo haal je het beste uit je houtbeits of -lak - zowel visueel als technisch.

Waarom je moet primen:

  • Optimale hechting voor beitsen & vernissen
  • Open poriën & zeer effectief
  • Geschikt voor buiten
  • Met filmbescherming tegen schimmelaantasting
  • Weerbestendig na volledige droging

Leveringsomvang:

  • 1 x 2,5 l houtprimer
  • 2 x 2,5 l houtbeits in transparant lichtgrijs

Onze transparante houtbeits set - exterieur S - tot 34 m² voor buiten is ideaal voor het beschermen en decoratief coaten van hout. Het glazuur met open poriën is weer- en waterbestendig en behoudt de natuurlijke houtstructuur.

Met de filmbescherming tegen schimmel- en blauwschimmelaantasting is de beits ideaal voor ramen, deuren, hekken, pergola's, dakoverstekken en houten lambriseringen.

Voordat je je hout de uiteindelijke look geeft met de houtbeits, heeft het de juiste voorbereiding nodig. Dat is precies waar onze houtprimer met open poriën voor gemaakt is.

Deze dringt diep door in het hout, blijft ademen en zorgt voor een ideale hechting van je volgende laag. Zo haal je het beste uit je houtbeits of -lak - zowel visueel als technisch.

Waarom je moet primen:

  • Optimale hechting voor beitsen & vernissen
  • Open poriën & zeer effectief
  • Geschikt voor buiten
  • Met filmbescherming tegen schimmelaantasting
  • Weerbestendig na volledige droging

Leveringsomvang:

  • 1 x 2,5 l houtprimer
  • 2 x 2,5 l houtbeits in transparant antracietgrijs

Saunabeits set - binnen - S tot 34 m² - Weiß - Saunalasur

Meer details weergeven

Saunabeits set - binnen - S tot 34 m² - Weiß - Saunalasur

Onze Saunaglazenset - Interieur - S tot 34 m² is op waterbasis en maakt het mogelijk om hout in de saunaruimte te behandelen. Ideaal voor saunabanken, betimmerde wanden, plafonds, deuren en kozijnen binnenshuis.

De glazende, waterafstotende houtbeits zorgt voor een zijdemat oppervlak. De was die erin zit dringt diep door in het hout en vormt een natuurlijke beschermende barrière tegen vuil en vocht.

Leveringsomvang:

  • 2 x 2,5 liter saunaglazuur in wit

€ 199,00

Onze Saunaglazenset - Interieur - S tot 34 m² is op waterbasis en maakt het mogelijk om hout in de saunaruimte te behandelen. Ideaal voor saunabanken, betimmerde wanden, plafonds, deuren en kozijnen binnenshuis.

De glazende, waterafstotende houtbeits zorgt voor een zijdemat oppervlak. De was die erin zit dringt diep door in het hout en vormt een natuurlijke beschermende barrière tegen vuil en vocht.

Leveringsomvang:

  • 2 x 2,5 liter saunaglazuur in wit

Onze Saunaglazenset - Interieur - S tot 34 m² is op waterbasis en maakt het mogelijk om hout in de saunaruimte te behandelen. Ideaal voor saunabanken, betimmerde wanden, plafonds, deuren en kozijnen binnenshuis.

De glazende, waterafstotende houtbeits zorgt voor een zijdemat oppervlak. De was die erin zit dringt diep door in het hout en vormt een natuurlijke beschermende barrière tegen vuil en vocht.

Leveringsomvang:

  • 2 x 2,5 l saunaglazuur in zwart

Onze Saunaglazenset - Interieur - S tot 34 m² is op waterbasis en maakt het mogelijk om hout in de saunaruimte te behandelen. Ideaal voor saunabanken, betimmerde wanden, plafonds, deuren en kozijnen binnenshuis.

De glazende, waterafstotende houtbeits zorgt voor een zijdemat oppervlak. De was die erin zit dringt diep door in het hout en vormt een natuurlijke beschermende barrière tegen vuil en vocht.

Leveringsomvang:

  • 2 x 2,5 liter saunaglazuur in wit

Onze Saunaglazenset - Interieur - S tot 34 m² is op waterbasis en maakt het mogelijk om hout in de saunaruimte te behandelen. Ideaal voor saunabanken, betimmerde wanden, plafonds, deuren en kozijnen binnenshuis.

De glazende, waterafstotende houtbeits zorgt voor een zijdemat oppervlak. De was die erin zit dringt diep door in het hout en vormt een natuurlijke beschermende barrière tegen vuil en vocht.

Leveringsomvang:

  • 2 x 2,5 l saunaglazuur in zwart
Beoordelingen

Gemiddelde waardering van 0 van 5 sterren

(0)

Gemiddelde waardering van 0 van 5 sterren

(0 Beoordelingen)
Productdetails
Details:
Wanddikte
40
Type materiaal
Pijnboom | Sparrenhout
Oppervlaktebehandeling
Zonder
Basiskleur
Onbehandeld
Vloeroppervlak
4,3
Totale afmetingen (cm)
248 x 251
Totale hoogte
262
Aanbevolen ovenvermogen
9
Saunabankanzahl
2
Voorruimte
Geen
Volume
10,5
Vloer
Inclusief
Bouwwijze
Blokplankenbouw
Dakvorm
Plat dak
Dakoppervlak (m²)
6,3
Dakhelling
10
Dakbedekking
EPDM dakfolie
Binnenafmetingen sauna (cm)
200 x 200
Binnenhoogte saunaruimte (cm)
205
Volume saunaruimte (m³)
8,2
Aantal personen
3
Stroomvoorziening
400
Afmetingen van de basis (cm)
207 x 207
Aantal ramen
2
Uitvoering ramen
Vloerdiep raam
Beglazing
Veiligheidsglas

Populaire producten