Ga naar de hoofdinhoud Ga naar de zoekopdracht Ga naar de hoofdnavigatie
Advies
Sales Contact Image
Verkoop advies 030 202 5006
Onze hotline
Nieuw design, beproefde kwaliteit, evenveel hart – welkom bij ons!

€ 2.229,00

-37%
Adviesprijs € 3.519,00
-37%

Gemiddelde waardering van 4.8 van 5 sterren

(3)

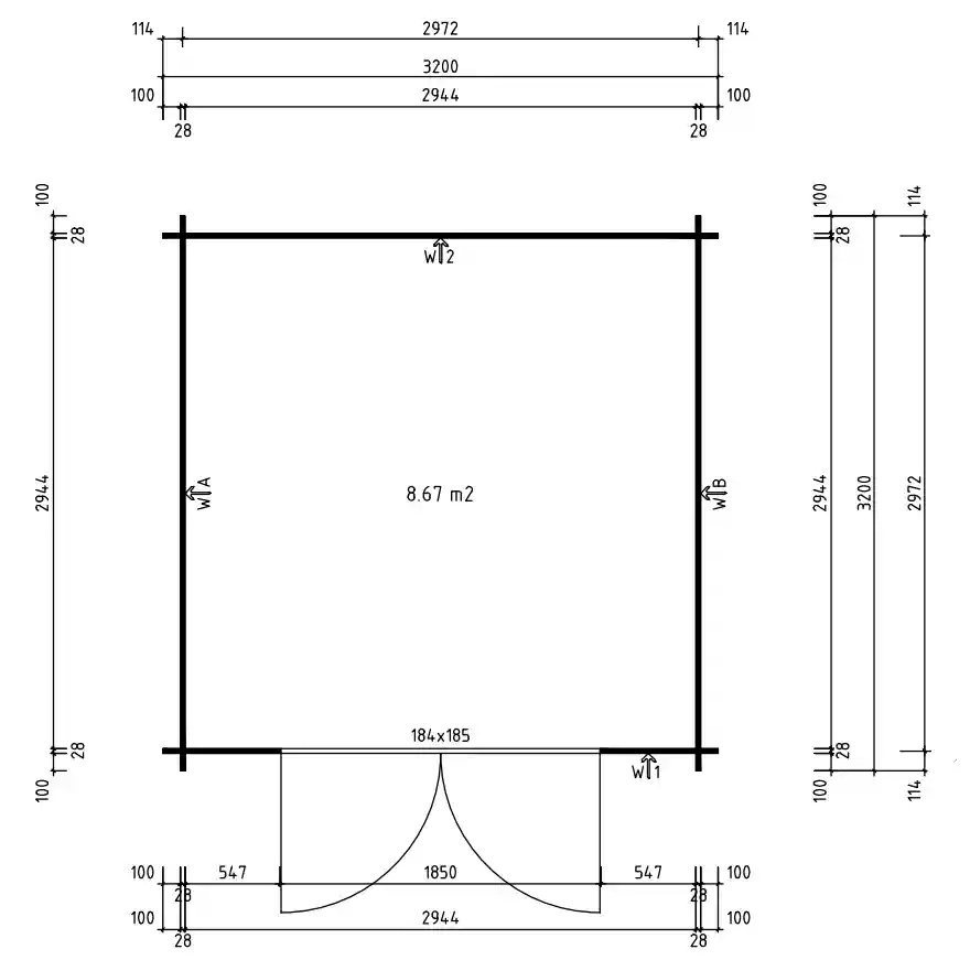
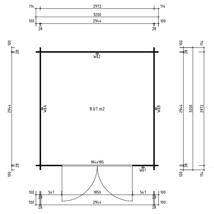
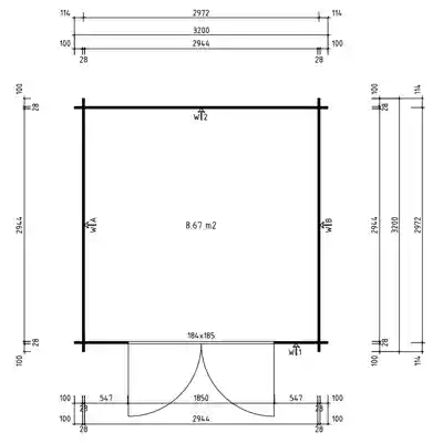
Tuinhuis model Maria-Optima 28

De hieronder geselecteerde accessoires worden aan de winkelwagen toegevoegd.
Purchase Advice Image
Persoonlijk product- en aankoopadvies gewenst Tel: 030 202 5006
Vragen over het product?
Levertijd 7-8 weken
Skonto Icon
3% korting bij vooruitbetaling
Productvarianten
Beschermende impregnering kiezen:
Zonder beschermende impregnering
Levering in gewenst tijdvak
Passende accessoires bij dit product
Productbeschrijving

Artikel omschrijving:

  • Afmetingen buitenhout: 320 x 320 cm
  • Afmetingen buitenmuur: 300 x 300 cm
  • Vloeroppervlak: 9,00 m²
  • Hoogte voorwand: ca. 245 cm
  • Hoogte achterwand: ca. 200 cm
  • Volume kamer: ca. 19,9 m³
  • Extra brede dubbele deur: ca. 184 x 185 cm
  • Vast 3-ruits raamelement: ca. 271 x 31 cm
  • Wanddikte: 28 mm

Bij de levering inbegrepen:

  • Massief houten dakplanken (messing en groef)
  • Extra brede massief houten dubbele deur
  • Groot 3-ruits raamelement met echt glas
  • Hoogwaardige roestvrijstalen dorpel
  • Slot, krukgarnituur, montagemateriaal & montagetekening
  • Ventilatierooster voor betere luchtcirculatie in het tuinhuisje
  • Geleverd zonder dakbekleding
  • Geleverd in naturel zonder kleurbehandeling
  • Geleverd zonder vloer (verkrijgbaar als accessoire)
  • Als er glaslatten worden meegeleverd bij ramen of deuren, worden deze apart geleverd.
    Je hebt dus altijd de keuze of je het huis een klassieke uitstraling wilt geven met glaslatten/houten dwarsbalken of een modernere uitstraling zonder.

Let op: De vloer en het funderingshout in het vloerpakket zijn niet inbegrepen bij de levering! Dit pakket kan hier echter direct worden besteld onder "Vloer, ramen, deuren, terras en uitbouw" bij de accessoires.

Omgekeerde montage mogelijk (Let op: geen montagehandleiding voor omgekeerde montage meegeleverd - deurscharnieren kunnen niet worden verwisseld).

We willen erop wijzen dat het product voortdurend verder ontwikkeld wordt en daarom in detail kan afwijken van de getoonde foto. Met name klantfoto's tonen modellen die door klanten zijn aangepast.

 

Als u onze montageservice hierboven onder "Populaire diensten" nog niet hebt gevonden, neem dan contact met ons op via dit aanvraagformulier en wij zullen de montagemogelijkheden bekijken.

Accessoires en services
2 Accessoire(s) zijn zojuist geselecteerd (inclusief onze aanbevelingen). De juiste hoeveelheden zijn vooraf ingesteld.

Dit heb je nodig voor de montage

ROOFPROTECT EPDM SET Nr. 27

Meer details weergeven

ROOFPROTECT EPDM SET Nr. 27

EPDM dakbanen zijn bij uitstek geschikt als dakbedekking voor tuinhuisjes, gereedschapsschuren en carports. Ze zijn ook geschikt als substraat voor een groendak, rekening houdend met de maximale dakbelasting. EPDM folies vervangen steeds meer de klassieke teerpapier dakbedekking.

Met onze EPDM-folieset krijgt u een dakbedekking die qua duurzaamheid nauwelijks te overtreffen is. Voor de montage hoeft u alleen maar de oppervlaktelijm rechtstreeks op de gereinigde dakplanken aan te brengen, de folie aan te drukken en uw tuinhuisdak blijft betrouwbaar waterdicht - en bij correct gebruik gegarandeerd voor de komende 20 jaar (materiaalgarantie van de fabrikant). Wij raden u aan de hoekprofielen, die ook als toebehoren verkrijgbaar zijn, te gebruiken om de dakplanken af te dekken.

 

goedgekeurde dakafdichting

recycleerbaar - kan bij uw eigen huishoudelijk afval

Wortelbestendig - ideaal voor latere groene dakbedekking

gemakkelijk te installeren - geen speciaal gereedschap nodig

waterdichting zonder naad uit één stuk

eenvoudig - veilig - duurzaam - duurzaam

 

Item beschrijving:

  • Afmetingen van de folie: 4,57 m x 5 m
  • Dikte 1,2 mm
  • gewicht per oppervlakte-eenheid: 1,5 kg/m²
  • hoge temperatuurstabiliteit van -45°C tot +130°C
  • Bestand tegen weer en wind
  • UV-bestendig
  • Ozonbestendig
  • Wortelbestendig
  • Onderhoudsvrij
  • Beloopbaar
  • vrij van weekmakers
  • Gemaakt uit één stuk, waardoor 100% zekerheid van ondoordringbaarheid
  • Duurzaam elastisch, breukrek > 300
  • Ideaal als substraat voor groendaken
  • Voor de duurzaamheid van uw dakbedekking is het noodzakelijk de open voegen af te dekken met hoekprofielen of aluminium strips om te voorkomen dat vocht binnendringt en het zeil loskomt.

Omvang van de levering:

  • EPDM dekzeil gesneden van de rol
  • Benodigde oppervlaktelijm op waterbasis voor verlijming op hout en materialen op houtbasis (niet geschikt voor ondergronden zoals Styrodur), kleur wit
  • Roller met handvat

 

Hoe bepaalt u de juiste maat zeilen voor uw tuinhuis, carport of overkapping:

Muur of paal afmeting
+ grootte van dakoverstek x 2
+ 15-20 cm fascia hoogte x 2
= gewenste film grootte

€ 569,00

Spaarset Basisaccessoires en Montage S

Meer details weergeven

Spaarset Basisaccessoires en Montage S

Vochtscherm, stormhoek, windverankering

Basis accessoire set met tot 20% besparing ten opzichte van individuele aankoop!

De minimale set voor een veilige montage en verankering van uw tuinhuisje.

Wij raden deze set sterk aan voor elk tuinhuisje. Deze producten zijn nodig om uw tuinhuis te beveiligen tegen vocht en storm. Met deze basisset - ontworpen op maat van uw huis - heeft u gegarandeerd jarenlang plezier van uw tuinhuis!

Deze set is ontworpen voor tuinhuizen met een vloeroppervlak van 0 - 20 m². Met deze set heeft u alles wat u nodig heeft voor de veilige bouw en verankering van uw tuinhuis in één klik - en in voldoende hoeveelheid.

Bestaande uit:

  • Vochtscherm (set: ca. 100 st.)
  • Stormhoek (set: 4 stuks)
  • 1x windverankeringsset (set voor 2 zijden)

Omschrijving Vochtscherm:

Onderleggers van speciaal rubbergranulaat voor draag- en funderingshout.

Rubbergranulaat pads worden gebruikt bij de bouw van de onderconstructie van een tuinhuisje als een
Ze worden onder de onderbouw of op de funderingsplaat gelegd. In het beste geval worden de pads om de 30-40 cm gelegd. Omdat de pads van een speciaal rubbergranulaat zijn gemaakt, kunnen ze geen water opnemen of rotten. Het rubber beschermt de onderbouw van uw tuinhuisje tegen optrekkend vocht en voorkomt zo verwering en rotting van de onderbouw. Tegelijkertijd zorgt de verhoogde structuur voor afwatering en kan water gemakkelijk wegstromen, terwijl een perfecte luchtcirculatie onder de funderingsbalken is gegarandeerd.

Voordelen van onze speciale rubbergranulaat pads

  • Geen scherpe randen
  • Bescherming tegen optrekkend vocht
  • Dampdoorlatend
  • Absorberend voor contactgeluid
  • Compenseert oneffenheden in de vloerplaat
  • Antislip
  • Rot niet, want gemaakt van 100% rubber
  • Dimensioneel stabiel
  • Geen stilstaand vocht onder het hout
  • Dient als drainage, water kan in alle richtingen weglopen

Afmetingen van de pads:

60 x 60 x 6 mm (lengte x breedte x dikte).

Inhoud per verpakkingseenheid

Een verpakkingseenheid bestaat uit ca. 100 stuks speciale rubbergranulaat pads.

Beschrijving stormhoek:

Speciale stormhoekset (4 stuks) voor de bevestiging van het tuinhuis aan de fundering.

In gebieden die bijzonder gevoelig zijn voor wind adviseren wij uw tuinhuis met onze speciale stormbeugels aan de fundering of bodemplaat te bevestigen. De beugels kunnen zowel binnen als buiten in minstens alle vier de hoeken van uw tuinhuis aan de bodemplaat worden bevestigd. De speciale hoek heeft een extra lange poot en verbindt zo de fundering of bodemplaat met het funderingshout en de eerste twee blokken.
het funderingshout en de eerste twee rijen blokken. Voor grotere tuin- of blokhutten moet naast de vier hoeken ook in het midden van elke muur een hoek worden geplaatst. Wij leveren de stormhoeken zonder bevestigingsmateriaal (schroeven & pluggen).

Verpakkingseenheid per set:

Een set bestaat uit 4 speciale stormhoeken (zonder bevestigingsmateriaal).

Afmetingen: ca. 28,5 x 9 x 6,5 cm; materiaaldikte: ca. 0,5 cm.

Voor een 100% stormbescherming adviseren wij een combinatie van deze
set en de windverankeringsset voor de afzonderlijke blokplanken!

Beschrijving van de windverankeringsset voor blokhutten:

In bijzonder sterke windgebieden adviseren wij uw tuinhuis te beveiligen met een extra windverankeringsset. De set bestaat uit twee stabiele draadstangen, die met behulp van speciale metalen beugels en trekveren in twee tegenovergestelde hoeken van buiten of binnen uw tuinhuis worden gemonteerd. De draadstangen verbinden de onderste en bovenste blokplanken en voorkomen dat de afzonderlijke blokplanken uit elkaar bewegen en houden ze bij elkaar tijdens stormen. Aangezien de afzonderlijke planken niet aan elkaar mogen worden geschroefd
Aangezien de afzonderlijke planken niet aan elkaar mogen worden geschroefd, is het vastzetten met deze set de beste manier om de planken met elkaar te verbinden.

De set bevat:

4x draadstangen M6 x 1000mm incl. montagebeugels, trekveren en montagemateriaal met schroeven.

Het montagemateriaal (schroeven) is geschikt voor blokhutten met een wanddikte van 19-45 mm.
Als u deze set gebruikt voor dikkere stammen (meer dan 45 mm), moeten de schroeven ter plaatse worden vervangen door langere.
schroeven moeten door de klant worden vervangen door langere schroeven!

Voor een 100% stormbescherming adviseren wij een combinatie van deze set en de
stormhoekset voor bevestiging aan de funderingsplaat.

€ 139,00

Comfortgarantie

Meer details weergeven

Comfortgarantie

Welke producten worden door de comfortgarantie gedekt?

Onze comfortgarantie geldt uitsluitend voor producten die voor privégebruik bedoeld zijn. Daaronder vallen:

  • Tuinhuisjes en schuren – een plek om te ontspannen of om spullen op te bergen
  • Sauna’s – voor ontspanning en wellness in je eigen huis
  • Speeltoestellen voor kinderen – voor urenlang veilig speelplezier
  • Houten tuinpaviljoens – jouw eigen stukje paradijs in de tuin
  • Carports – betrouwbare bescherming tegen regen, sneeuw en zon
  • Garages – veilige opslag voor je voertuig en extra bergruimte

Je kunt vertrouwen op de kwaliteit van je product. Gaat er toch iets mis? Dan lossen we het snel voor je op.

Wat valt er onder de Comfortgarantie?

Met de comfortgarantie ben je goed beschermd. Gaat er iets kapot? Dan ontvang je gratis de juiste vervangende onderdelen voor:

  • Deuren – glasschade tot € 200
  • Ramen – glasschade tot € 200
  • Dakgoten – voor een goede waterafvoer
  • Deursloten – voor optimale veiligheid
  • Hang- en sluitwerk – voor het vervangen van kleine maar essentiële onderdelen
  • Dakbedekking – zoals dakleer, shingles of KSK-folie

Belangrijk om te weten:

De comfortgarantie dekt uitsluitend de levering van vervangende onderdelen. De installatie is niet inbegrepen en moet je zelf uitvoeren.
Met de comfortgarantie ben je optimaal beschermd en geniet je zonder zorgen van je product.

Garantievoorwaarden
Alle details en aanvullende informatie over de comfortgarantie.

Vragen?
Onze klantenservice helpt je graag verder!

€ 69,00

Premium Glazuur Kleurenset 2XL - kiefer - ausverkauft

Meer details weergeven

Premium Glazuur Kleurenset 2XL

PGH Premium Houtbeschermingsprimer* Impregnatie, PGH Premium Weersbeschermingsbeits

Beitskleurset met tot 15% besparing in vergelijking met afzonderlijk kopen!

Passend bij het huis - alles wat je nodig hebt voor de kleurbehandeling van dit huis. Deze set is ontworpen voor ruimtes tot ca. 51m². Met deze set heb je alles wat je nodig hebt om de buitenkant van je tuinhuisje met één klik te verven. - en in voldoende hoeveelheden.

Bestaande uit:

  • PGH houtbeschermingsprimer impregnatie (4 potten van elk 2,5 l) voor preventieve bescherming tegen blauwe aanslag, insecten- en schimmelaantasting.
  • PGH weerbeschermend glazuur (3 potten van elk 2,5 l) in de kleuren grenen, kalkwit, Zweeds rood, walnoot, teak, agaatgrijs, grafietgrijs of kleurloos. Met deze kleurafwerking blijven de houtnerf en de natuurlijke charme van het hout zichtbaar.

De GartenHaus professionals adviseren:

  1. Een toepassing van PGH houtbeschermingsprimer impregnatie, voor preventieve bescherming tegen blauwe aanslag, insecten- en schimmelaantasting.
  2. Verzegel het gewenste product aan de buitenkant met twee lagen PGH Weersbeschermende Glazuur in de gewenste kleur en bescherm het langdurig effectief tegen weersinvloeden.

Beschrijving PGH Premium houtbeschermingsprimer* impregnatie:

PGH Holzschutzgrund is een watergedragen, blauwbeitsbeschermende houtimpregnering voor buiten.

PGH Holzschutzgrund wordt gebruikt voor preventieve toepassing en betrouwbare bescherming tegen blauwschimmel op hout zonder grondcontact in buitenruimtes.

Toepassingsgebieden:

Hout buiten, bijv. houten gevels, carports, ramen en buitendeuren, dakranden.

Eigenschappen:

  • Anti-blauwschimmel impregnering voor buiten
  • effectief in de diepte
  • op waterbasis
  • kleurloos

Dekking:

  • 2,5 liter is voldoende voor ca. 18-21 m² met één laag.

* Gebruik biociden met zorg. Lees voor gebruik altijd eerst de etikettering en productinformatie.

Beschrijving PGH Premium Wetterschutzlasur:

PGH Wetterschutzlasur is de halfglanzende, aromaatvrije houtlazuur voor buiten.

PGH Wetterschutzlasur is druipremmend en daarom ideaal voor werken boven het hoofd. Het is openporig, vochtregulerend en gemakkelijk aan te brengen en is geschikt voor alle loof- en naaldhoutsoorten buiten die een UV- en weerbestendige coating nodig hebben.

Toepassingsgebieden:

Hout buiten, bijv. tuinhuisjes, carports, pergola's, soffits of sauna's

Eigenschappen:

  • beschermende coating voor buiten
  • UV- en weerbestendig
  • Druppelbestendig
  • Zijdeglans

Dekking:

  • 2,5 liter is voldoende voor ca. 30-37 m² met één laag

Let op: Set bevat kleurmateriaal om zelf ter plaatse te schilderen. Kleuren kunnen variëren afhankelijk van het beeldscherm en zijn daarom niet bindend!

€ 299,00

Spaarset Universeel houten Vloer set 9m2 - 28 mm Natuurlijke vloer

Meer details weergeven

Spaarset Universeel houten Vloer set 9m2

Universele houten vloeren set met een besparing tot 20% ten opzichte van een losse aankoop!

Passend bij het huis - Met deze set heeft u met één klik het juiste aantal houten vloerpakketten voor het door u gewenste product.

Inhoud van de set:

  • Tand- en groefplanken met een dikte van 18 mm, met fabrieks impregnering
  • Bijbehorend aantal plinten, met of zonder fabrieksimpregnering
  • Onder druk geïmpregneerde funderingshout
  • Materiaal van Noords sparrenhout

Houd er rekening mee dat de vloer zelf moet worden aangepast. Gedetailleerde montage-instructies zijn meegeleverd bij de set.

Deze set is berekend voor tuinhuizen met een vloeroppervlakte van 6,01 - 9 m². Als u er niet zeker van bent, raden wij u aan de artikelen los aan te schaffen. 

€ 729,00

Dakgotenset box, antraciet metallic - monopitch dak voor 1 dakzijde tot 6 m

Meer details weergeven

Dakgotenset box, antraciet metallic - monopitch dak voor 1 dakzijde tot 6 m

Voor blokhutten met zijlengtes tot 6 m, complete set voor 1 houten huiszijde.

Marley dakgootsets beschermen de muren en funderingen van tuinhuizen en blokhutten veilig en betrouwbaar tegen schade veroorzaakt door regenwater.

Voordelen:

  • Complete set met dakgoten, regenpijpen en bevestigingsmateriaal.
  • Gemakkelijk te monteren
  • Alles compleet in de set
  • Bestand tegen weer, UV en temperatuur
  • Slagvaste kunststof van hoge kwaliteit
  • Topkwaliteit - Made in Germany
  • 10 jaar garantie

Inhoud van de set:

  • 3x goot 70, 2 m
  • 2x gootverbindingsschaal 70
  • 2x eindstuk voor linker en rechter
  • 1x verbindingsstuk 70/ DN53
  • 13x instelhoek voor gootbeugel
  • 1x standpijp DN 53, 2m
  • 2x pijpbocht DN 53, 45°
  • 1x buisklem met oogbout

€ 159,00

PGH dakgootset gegalvaniseerd enkelzijdig - monopitch dak voor 1 dakzijde tot 6 m

Meer details weergeven

PGH dakgootset gegalvaniseerd enkelzijdig - monopitch dak voor 1 dakzijde tot 6 m

Voor platte en eenzijdig hellende daken met zijlengtes tot 6 m, complete set voor 1 houten huis zijkant

De PGH dakgootsets beschermen de muren en fundamenten van tuin- en blokhutten veilig en betrouwbaar tegen beschadiging door regenwater.

Leveringsomvang:

  • 2x standleiding bocht Ø80mm

  • 13x gootbeugels + gootbeugel 125 mm
  • 2x gootverbindingsstukken
  • 2x muurbeugel
  • 1x verbindingsstuk Ø80mm
  • 3x goot 125mm
  • 26x spaanplaatschroef, roestvrij staal Ø4.0x40mm
  • 1x standleiding bocht Ø80mm
  • 13x standleiding bocht Ø80mm
  • 2x eindstuk
  • 2x inschroefpen voor muurbeugel
  • 1x gootafvoer Ø80mm
  • 1x regenpijp Ø90mm

€ 449,00

Gootingang

Meer details weergeven

Gootingang

Een gootingang  is de professionele afsluiting aan de dakrand. Het is de overgang van het dakoppervlak naar de dakgoot.

Materiaal: gegalvaniseerd staal, Gepoedercoat

Afmetingen: A: 60mm B: 125mm D: 15mm

Lengte: 200cm dikte: 0,50mm

Schroeven zijn niet Leveringspakket. Geschikte loodgietersschroeven vindt u op onze website.

€ 39,00

Loodgieter Schroeven 4,5x20

Meer details weergeven

Loodgieter Schroeven 4,5x20

Product omschrijving:

Spengler schroef met afdichtingsring van V2A, geschikt voor bijv:

  • Nok Nokbedekking
  • Hoekprofielen
  • Dakranden knipperen
  • Locatieplaten
  • en nog veel meer

Technische details:

  • Afmetingen: 4,5 mm diameter en 20 mm lengte / Torx
  • Kleur: Antraciet RAL 7016
  • Inhoud: 20 stuks.

Gelieve het aantal schroeven te wijzigen in de gewenste hoeveelheid. 4 schroeven per profiel worden aanbevolen.

€ 19,00

Plat dak type 10

Meer details weergeven

Plat dak type 10

Voor cubus- en Plat dak zonder boeiboorden. Kan aan drie of vier zijden van het huis worden gebruikt. Kan worden gecombineerd met een Dakgoot of downpipe set

2-delige set bestaande uit:

  • 1x Type 10a Strip (buiten): A: 120mm B: 30mm C: 15mm D: 90° E: 225° F: 135
  • 1x Type 10b Strip (binnenin): A: 85mm B: 85mm C: 30mm D: 45° E: 135
  • Aluminium, Antraciet Gepoedercoat
  • Lengte: 200 cm elk
  • dikte: 0,80 mm

Schroeven zijn niet Leveringspakket. Geschikte loodgietersschroeven kunt u vinden op onze website.

 

€ 79,00

KSK dakbaan 0,5 x 5m -

Meer details weergeven

KSK dakbaan 0,5 x 5m

De KSK dakbaan is een zelfklevende bitumen dakbaan die snel, gemakkelijk en veilig kan worden gebruikt om tuinhuisjes, garages, carports of soortgelijke kleinere constructies waterdicht te maken zonder gebruik van vlammen.

Koud zelfklevend

Eenvoudige installatie

Snelle verwerking

Artikelgegevens van de KSK dakbaan

  • Afmeting: 0,5 x 5m
  • Dikte: ongeveer 4,0 mm
  • Dakhelling vanaf 5°
  • Verwerkingstemperatuur: +15 tot +35 °C
  • Kleur: zilver

€ 59,00

Accessoires voor je product

Basis Arrangementenset

Meer details weergeven

Basis Arrangementenset

Deze basisopruimset is de kers op de taart voor uw nieuwe tuinhuisje. Dankzij onze zorgvuldig samengestelde opruimset staan bezems, zagen en dergelijke niet langer in de weg, maar kunnen ze handig aan de wanden worden opgeborgen. Dit bespaart niet alleen ruimte, maar zorgt ook voor een uitnodigend en opgeruimd gevoel in de kamer.

De haken in de set hebben een hoog draagvermogen en zijn ideaal voor het sorteren en opbergen: Ladder, emmer, verlengsnoer, gieter, tuinslang, hark, schep, enz.

De opruimset bestaat uit:

  • 2 x standaardhaak, van gegalvaniseerde stalen buis, roestvrij, Ø 16 mm, diepte 80 mm, draagvermogen tot 60 kg.
  • 2 x standaard haken, van gegalvaniseerde stalen buis, roestvrij, Ø 16 mm, diepte 210 mm, max. belasting 60 kg
  • 2 x standaard haken, van gegalvaniseerde stalen buis, roestvrij, Ø 16 mm, diepte 285 mm, max. belasting 60 kg
  • 5 x kleine enkelvoudige haken van staal, Ø 8 mm, hoogte 8 cm, draagvermogen tot 50 kg
  • 1 x gecoat, rood dubbele haak, Ø 10 mm, diepte 70 mm, max. belasting 80 kg
  • 1 x houder voor 1 handvat, diameter 16-32 mm
  • 1 x fietshaak met bevestiging door het wiel
  • 1 x haak voor 1 handgereedschap, Ø 16 mm, hoogte 158 mm, breedte 166 mm, diepte 115 mm, max. belasting 30 kg

€ 49,00

Standaard Arrangement Set

Meer details weergeven

Standaard Arrangement Set

Deze opruimset is de kers op de taart voor uw nieuwe tuinhuisje. Dankzij onze zorgvuldig samengestelde opruimset staan bezems, zagen en dergelijke niet langer in de weg, maar kunnen ze handig aan de wanden worden opgeborgen. Dit bespaart niet alleen ruimte, maar zorgt ook voor een uitnodigend en opgeruimd gevoel in de kamer.

De haken in de set hebben een hoog draagvermogen en zijn ideaal voor het sorteren en opbergen: Ladder, emmer, verlengsnoer, gieter, tuinslang, hark, schep, enz. Sommige van de haken zijn ook gecoat ter bescherming.

De opruimset bestaat uit:

  • 2 x gecoate standaardhaken, van gegalvaniseerde stalen buis, roestvrij, Ø 16 mm, diepte 80 mm, draagvermogen 60 kg.
  • 2 x gecoate standaardhaken, van verzinkte stalen buis, roestvrij, Ø 16 mm, diepte 210 mm, max. belasting 60 kg
  • 2 x gecoate standaardhaken, van verzinkte stalen buis, roestvrij, Ø 16 mm, diepte 285 mm, max. belasting 60 kg
  • 5 x enkele haken van gegalvaniseerd staal, Ø 9 mm, hoogte 125 mm, breedte 40 mm, max. belasting 50 kg
  • 1 x gewikkeld, zwart dubbele haak, Ø 10 mm, diepte 165 mm, max. belasting 80 kg
  • 1 x multi-concept haaksteun met 3 ophangpunten, Ø 16 mm, hoogte 35 mm, lengte 27 mm, diepte 120 mm
  • 1 x gewikkelde fietshaak met bevestiging door het wiel
  • 5 x multifunctionele houders, Ø 10 mm, diepte 70 mm, draagvermogen tot 80 kg
  • 1 x haak voor 3 handgereedschappen, Ø 16-32 mm, hoogte 158 mm, breedte 166 mm, diepte 115 mm, draagvermogen tot 30 kg

€ 69,00

Premium Arrangement Set

Meer details weergeven

Premium Arrangement Set

Deze opruimset is de kers op de taart voor uw nieuwe tuinhuisje. Dankzij onze zorgvuldig samengestelde opruimset staan bezems, zagen en dergelijke niet langer in de weg, maar kunnen ze handig aan de wanden worden opgeborgen. Dit bespaart niet alleen ruimte, maar zorgt ook voor een uitnodigend en opgeruimd gevoel in de kamer.

De haken in de set hebben een hoog draagvermogen en zijn ideaal voor het sorteren en opbergen: Ladder, emmer, verlengsnoer, gieter, tuinslang, hark, schep, enz. Sommige van de haken zijn ook zwaar gecoat ter bescherming.

De opruimset bestaat uit:

  • 2 x in buis gevatte haken, Ø 20 mm, diepte 150 mm, draagvermogen 90 kg
  • 5 x gegalvaniseerde platte ijzeren haken, staal 1,2 mm dik, breedte 25 mm, diepte 25 mm, hoogte 73 mm
  • 1 x Pro houder voor 3 handgrepen, Ø 16 - 40 mm, diepte 285 mm, verschuifbaar op de bar
  • 1 x frame met 7 mini haakjes van gelakt staaldraad
  • 1 x dubbele haak, Ø 16 mm x 2, lengte 250 mm, draagvermogen tot 80 kg
  • 1 x in buis gevatte fietshaak met bevestiging door het wiel, Ø 20 mm
  • 5 x multifunctionele dubbele haken, breedte 75 mm, diepte 48 mm, hoogte 60 mm, draagvermogen tot 20 kg
  • 1 x dubbele haak in buis, Ø 20 mm, lengte 200 mm, draagvermogen tot 70 kg

€ 129,00

Funderingssteun kunststof - Robust

Meer details weergeven

Funderingssteun kunststof

Wijzig het aantal funderingsbalken naar het gewenste aantal.
Bereken gewoon de omtrek van het tuinhuisje of gereedschapsschuurtje en selecteer het juiste aantal funderingssteunen.

Deze kunststof funderingsbalk heeft een praktische druiprand die de eerste wandlaag beschermt tegen vocht.

  • Afmetingen: 35 x 85 x 3000 mm
  • Materiaal: Kunststof
  • Hoeveelheid: 1
  • Kan worden gebruikt in combinatie met vloer/fundatiebalken
  • verkrijgbaar in standaard uitvoering voor alle wanddikte 
  • Eenvoudig zagen van de funderingsbalken, mogelijk met elke in de handel verkrijgbare handzaag of decoupeerzaag

 

 

€ 49,00

Gereedschapsset voor montage

Meer details weergeven

Gereedschapsset voor montage

De perfecte gereedschapsset voor u samengesteld - zorgvuldig geselecteerd gereedschap dat in geen enkele montage mag ontbreken. Met deze set heeft u alles wat u nodig heeft voor de assemblage van uw nieuwe droomproduct met slechts één klik.
Laat niets aan het toeval over en zorg ervoor dat u de gereedschapsset krijgt met professioneel gereedschap dat door professionals wordt aanbevolen!

Inhoud van de set:

  • 2 paar werkhandschoenen maat 10,5 (XL)
    Het werken met hout geeft veel plezier, wat niet mag worden verminderd door een kleine splinter. Met werkhandschoenen worden dergelijke verwondingen vermeden.
  • Metalen hamer met rubberen bovenkant
    Niet elke hamer is geschikt voor het hameren van de planken, omdat de metalen bevestigingen te hard zijn voor contact met hout en deze bij het hameren beschadigen. Om dergelijke schade te voorkomen, is het aan te raden om een metalen hamer met een rubberen top te gebruiken. Omdat het hulpstuk afneembaar is, kan de hamer later voor andere werkzaamheden worden gebruikt.
  • Meetlint 5 m
    De regelmatige meting dient de geplande constructie, maar ook de stabiliteit. Vooral het probleemloos sluiten van deuren en ramen vereist precisiewerk tijdens de montage, wat gegarandeerd wordt door een rolmaat.
  • handzaag 400 mm
    Sommige producten bevatten dak- of vloerdelen die voor gebruik moeten worden aangepast. Met de handzaag in deze set is dit geen uitdaging.
  • waterpas 600 mm
    Aangezien u waarschijnlijk niet de Scheve Toren van Pisa in uw tuin wilt hebben, maar een stabiel en veilig tuinhuis, is het een goed idee om tijdens de bouw een waterpas te gebruiken om de schietloodlijn van de fundering en het product in de gaten te houden.
  • Spanband 6 m
    Alleen een recht huis is een veilig huis! Gebruik de spanbanden voor het loodgieterswerk en het rechtzetten van de wanden om de vereiste diagonale en hoekige afmetingen gemakkelijk te kunnen handhaven.
  • Platte borstel met 30 mm en 60 mm borstellengte
    De keuze van de kleur onderscheidt uw tuinhuis van dat van uw buurman. Met de juiste penselen zijn er geen grenzen aan uw individualiteit voor groter of kleiner schilderwerk. De set bevat daarom penselen voor het aanbrengen van impregnatie, verf en glazuur.
  • Schroefklem 500 x 120 mm
    Tijdens de montage worden de planken als plankringen op elkaar gelegd. De schroefklemmen houden de planken tijdens het proces op hun plaats en houden ze recht om de perfecte constructie te bereiken.
  • Skeletpatroonpers en transparante acryl
    Laat geen vocht door lekken het plezier van het nieuwe product bederven! Met de cartridgepers wordt de meegeleverde transparante acrylaat afdichtingsmassa op de betreffende gebieden aangebracht, zodat de afdichting vrijwel zonder sporen achter te laten plaatsvindt.

€ 99,00

PGH vloersteun kunststof - Instelbereik 3 - 6 cm

Meer details weergeven

PGH vloersteun kunststof

Deze vloersteun van nieuwe kunststof kan flexibel worden gebruikt en is in hoogte verstelbaar. Dit betekent dat elk oneffen oppervlak kan worden geëgaliseerd.

Artikelgegevens:

  • Afmetingen: ca. 16 x 16 x 5 cm
  • Materiaal: kunststof
  • Hoeveelheid: 1
  • Afstand tussen de afzonderlijke vloersteunen: ca. 30 cm
  • Verkrijgbaar in twee verschillende verstelbereiken
  • Maximale belasting 450 kg of 1400 kg
  • Kan worden gebruikt in combinatie met vloer/fundatiebalken

€ 39,00

Windverankering voor Blokplanken

Meer details weergeven

Windverankering voor Blokplanken

Windverankering voor Blokplanken

Wij raden u aan om in bijzonder sterke windstreken uw tuinhuis te beveiligen met een extra Windverankering. De set bestaat uit stabiele draadstangen, die met behulp van speciale metalen beugels en trekveren in alle vier de hoeken van uw Tuin van buiten of binnen worden gemonteerd.


De draadstangen verbinden de onderste en de bovenste plank en voorkomen zo dat de afzonderlijke Blokplanken uit elkaar vallen en houden ze bij stormachtig weer mm.

Aangezien de afzonderlijke Blokplanken niet aan elkaar moeten worden geschroefd, is het vastzetten met deze set de beste manier om de planken met elkaar te verbinden.
 

De set bestaat uit 8x

draadstangen M6 x 1000mm (geschikt voor Montage alle 4 de hoeken) incl. aansluitbussen, Montage, trekveren en Montage met schroeven.

Het Montage (schroeven) is geschikt voor Blokplanken met een Wanddikte van 19-45 mm. Als u deze setmm voor dikkere stammen Blokplanken 45 mm), moeten de schroeven ter plaatse worden vervangen door langere schroeven !
 

Voor een 100% Stormbeveiliging adviseren wij een combinatie van deze set en de Hoekijzers voor bevestiging aan de Fundering.

 

 

€ 59,00

PGH hardwasolie 0,75 L

Meer details weergeven

PGH hardwasolie 0,75 L

Hoogwaardige hardwaxolie voor binnen

Onze hardwaxolie biedt een hoogwaardige oplossing voor het gronden en behandelen van verschillende absorberende interieuroppervlakken. Met een zijdematte, slijtvaste afwerking die natuurlijke texturen doet herleven en tinten verdiept, biedt het de beste resultaten voor houten, kurk- en stenen vloeren en andere oppervlakken. Gemakkelijk in gebruik en getest volgens de hoogste normen, is het de ideale keuze voor professionele resultaten.

Artikelgegevens van de hardwaxolie:

  • Toepassing: Voorstrijken en behandelen van zuigende ondergronden binnenshuis.

  • Eigenschappen: Zijdemat oppervlak, verdiept de kleur, waterafstotend.
  • Getest op chemische weerstand en migratie.
  • Ingrediënten: Lijnolie, houtolie, ricinusolie, natuurlijke harsester, andere.
  • VOC-gehalte: Max. 440 g/l (EU-grenswaarde: max. 500 g/l).
  • Toepassing: Schudden voor gebruik, dun aanbrengen, polijsten.
  • Droogtijd: Ca. 6-12 uur, overschilderbaar na 16-24 uur.
  • Verbruik: 30-50 g/m²; dekking ca. 20 m²/l.
  • Opslag: Koel, droog en ongeopend ten minste 24 maanden houdbaar.
  • Verwijdering: Volgens plaatselijke voorschriften.
  • Opmerkingen: Kleurgegevens niet bindend, proeflaag aanbevolen.

€ 39,00

PGH Premium Tuinhuis Residentieel Glazuur

Meer details weergeven

PGH Premium Tuinhuis Residentieel Glazuur

PGH Living Space Glaze is de zijdeglanzende, sneldrogende en waterafdunbare houtafwerking voor binnen.

PGH Living Space Glaze is milieuvriendelijk omdat het weinig schadelijke stoffen bevat, gemakkelijk is aan te brengen en waterdampdoorlatend is. Het is water- en vuilafstotend en beschermt zo het hout. Het kan ook worden gebruikt als primer voor latere coatings met verven op waterbasis. Dankzij de antidruppelinstelling is hij ook ideaal voor werkzaamheden boven het hoofd.

Toepassingsgebieden:

Hout binnenshuis, bv. sauna's (alleen buitenshuis), meubilair, deuren of houten lambrisering.

Eigenschappen:

  • vernisafwerking van hout voor binnen
  • waterafstotend en vochtregulerend
  • beschermt tegen vervuiling
  • zijdeglans

Bereik:

  • 2,5l is voldoende voor ca. 23-28 m² met één laag.

€ 49,99

Aanbouw 28-A - naturel

Meer details weergeven

Aanbouw 28-A - naturel

Winnaar uit de test:

Dit uitbreidingsschuurtje kreeg een score van 1,3 van "Haus & Garten Test" als een "slim uitbreidingsschuurtje voor het uitbreiden van een tuinhuisje". Lees het testresultaat - samen met het tuinhuis Valencia.

Win waardevolle opbergruimte en opbergmogelijkheden met het 28-A aanbouwdeel - dit ruimtewonder kan eenvoudig aan uw nieuwe tuinhuis worden bevestigd en past harmonieus in elke tuin!
Eindelijk veel ruimte voor grasmaaiers, tuingereedschap enz., veilig opgeborgen en uit het zicht van nieuwsgierige ogen. Ook ideaal als overkapping voor een (chemisch) toilet of voor het plaatsen van een gastentoilet.

Artikel omschrijving:

  • Buitenafmetingen: 160 x 280 cm
  • Afmetingen bodem: 150 x 260 cm
  • Vloeroppervlak: 3,64 m²
  • Hoogte zijwanden: ca. 148 cm
  • Totale hoogte: ca. 188 cm
  • Volume: ca. 6,5 m³
  • Glulam enkele deur: ca. 82,8 x 150 cm
  • Wanddikte: 28 mm
  • Materiaal: Scandinavisch vurenhout

Bij de levering inbegrepen:

  • Massief houten dak van 18 mm rabatdelen
  • Massief houten vloer van 18 mm messing en groef
  • Alle logs met 4-voudig gefreesde hoeken (wind- en regendicht)
  • Hoogwaardige enkele deur met verlijmd houten frame
  • Hoogwaardige aluminium deurdrempel
  • Geïmpregneerd funderingshout
  • Slot, handgreepset & montagemateriaal
  • Stormstangen voor windbescherming
  • Geleverd in natuurlijke afwerking zonder impregnatie en kleurbehandeling
  • Bijpassende optionele accessoires:
    • Dakvilt vereist: 1 rol
    • Dakshingles vereist: 2 pakken
    • Viltstiften vereist: 2 pakken (voor het afdekken met dakvilt en dakshingles)

Het verlengstuk kan zowel rechts als links van het tuinhuisje bevestigd worden !!!

Wij willen u erop wijzen dat het product voortdurend verder ontwikkeld wordt en daarom in detail kan afwijken van de getoonde foto. Met name foto's van klanten geven modellen weer die door klanten zijn aangepast.

€ 1.129,00

Aanbouw 28-A - geïmpregneerd dennenhout

Meer details weergeven

Aanbouw 28-A - geïmpregneerd dennenhout

Winnaar uit de test:

Dit uitbreidingsschuurtje heeft een score van 1,3 gekregen van de "Haus & Garten Test" als een "slim uitbreidingsschuurtje voor het uitbreiden van een tuinhuisje". Lees het testresultaat - samen met het tuinhuis Valencia.

Win waardevolle opbergruimte en opbergmogelijkheden met het 28-A aanbouwdeel - dit ruimtewonder kan eenvoudig aan uw nieuwe tuinhuis worden bevestigd en past harmonieus in elke tuin!
Eindelijk veel ruimte voor grasmaaiers, tuingereedschap enz., veilig opgeborgen en uit het zicht van nieuwsgierige ogen. Ook ideaal als overkapping voor een (chemisch) toilet of voor het plaatsen van een gastentoilet.

Artikel omschrijving:

  • Buitenafmetingen: 160 x 280 cm
  • Afmetingen bodem: 150 x 260 cm
  • Vloeroppervlak: 3,64 m²
  • Hoogte zijwanden: ca. 148 cm
  • Totale hoogte: ca. 188 cm
  • Volume: ca. 6,5 m³
  • Glulam enkele deur: ca. 82,8 x 150 cm
  • Wanddikte: 28 mm
  • Materiaal: Scandinavisch vurenhout

Bij de levering inbegrepen:

  • Massief houten dak van 18 mm rabatdelen
  • Massief houten vloer van 18 mm messing en groef
  • Alle logs met 4-voudig gefreesde hoeken (wind- en regendicht)
  • Hoogwaardige enkele deur met verlijmd houten frame
  • Hoogwaardige aluminium deurdrempel
  • Geïmpregneerd funderingshout
  • Slot, handgreepset & montagemateriaal
  • Stormstangen voor windbescherming
  • Geleverd in geïmpregneerd grenen zonder eindkleurbehandeling (de kleur van de impregnering kan afwijken van die van het huis)
  • Bijpassende optionele accessoires:
    • Dakvilt vereist: 1 rol
    • Dakshingles vereist: 2 pakken
    • Dakviltstiften vereist: 2 pakken (voor het bedekken met dakvilt en dakshingles)

Het verlengstuk kan zowel rechts als links van het tuinhuisje bevestigd worden !!!

Wij willen u erop wijzen dat het product voortdurend verder ontwikkeld wordt en daarom in detail kan afwijken van de getoonde foto. Met name foto's van klanten geven modellen weer die door klanten zijn aangepast.

€ 1.189,00

Beoordelingen

Gemiddelde waardering van 4.8 van 5 sterren

(3)

Gemiddelde waardering van 4.8 van 5 sterren

(3 Beoordelingen)

Gemiddelde waardering van 4.5 van 5 sterren

Gemiddelde waardering van 5 van 5 sterren

Gemiddelde waardering van 5 van 5 sterren

Productdetails
Details:
Aantal kamers
1
Breedte incl. dakoverstek
320
Dakvorm
Lessenaardak
Diepte incl. dakoverstek
345
Totale hoogte
245
Vloer
Als accessoires
Vloeroppervlak
11.04
Wanddikte
28
spiegelbeeld constructie mogelijk voor
Ja

Populaire producten