Ga naar de hoofdinhoud Ga naar de zoekopdracht Ga naar de hoofdnavigatie
Advies
Sales Contact Image
Verkoop advies 030 202 5006
Onze hotline
Nieuw design, beproefde kwaliteit, evenveel hart – welkom bij ons!

€ 9.769,00

-12%
Adviesprijs € 11.139,00
-12%

Alpholz Gezellig Zwembadhuis 5

De hieronder geselecteerde accessoires worden aan de winkelwagen toegevoegd.
Purchase Advice Image
Persoonlijk product- en aankoopadvies gewenst Tel: 030 202 5006
Vragen over het product?
Levertijd 7-8 weken
Skonto Icon
3% korting bij vooruitbetaling
Productvarianten
Kleurbehandeling kiezen:
natuurlijk
Levering in gewenst tijdvak
Passende accessoires bij dit product
Productbeschrijving

Alpholz Cozy Pool House - jouw privé oase van welzijn bij het zwembad. Dit poolhouse is het perfecte toevluchtsoord in combinatie met je zwembad. Het combineert natuurlijk design met modern comfort en wordt in een handomdraai het middelpunt van je tuin. Of het nu een stijlvolle kleedkamer, koele lounge, gezellig gastenverblijf of kleine wellnessoase is - het Alpholz Cozy Pool House past zich aan je wensen aan. Gemaakt van hoogwaardig, massief hout straalt het warmte, kwaliteit en tijdloze elegantie uit.

Verkrijgbaar in verschillende kleuren

Waterdichte hoeken dankzij moderne hoekverbindingen

Beglazing van echt glas

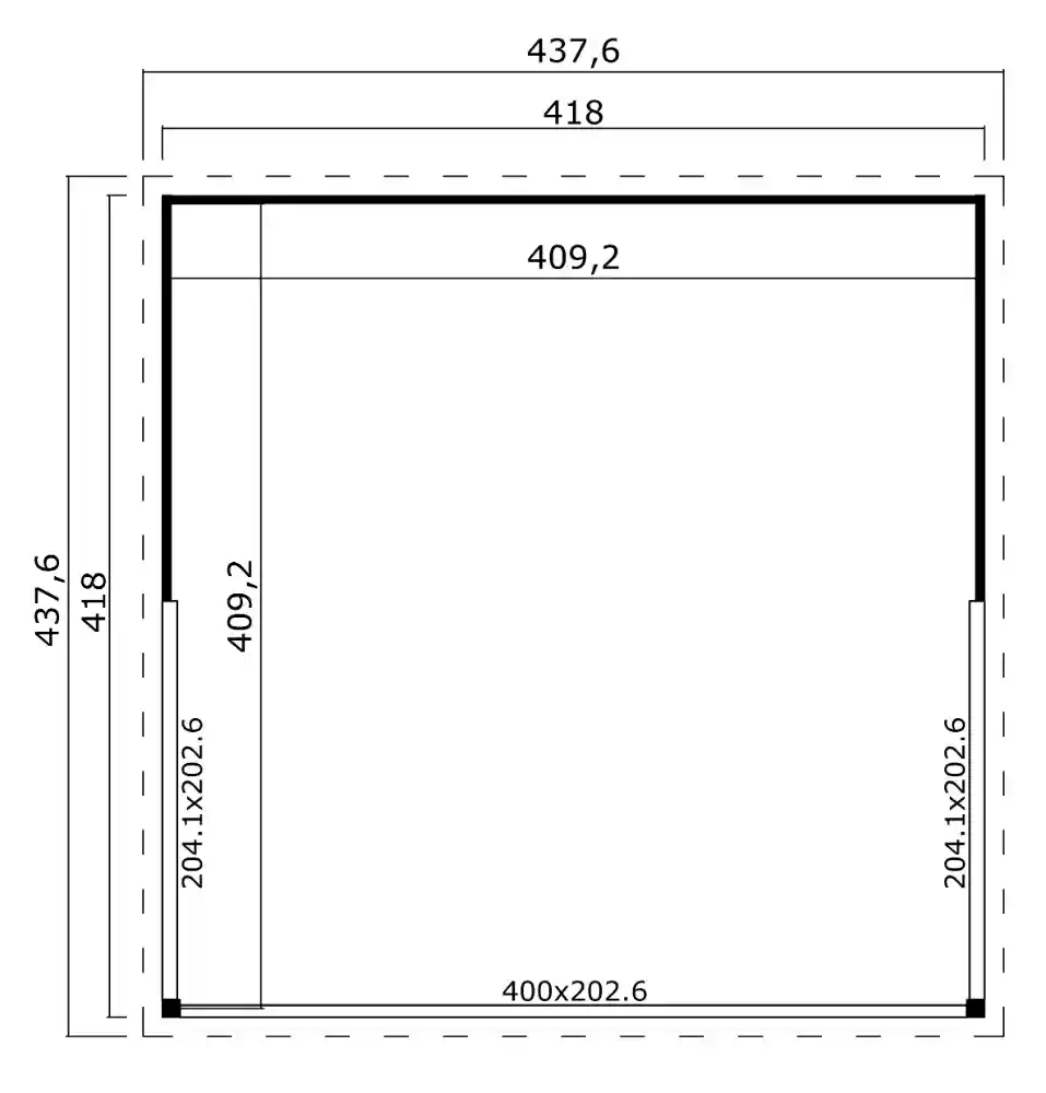
Artikel details Alpholz Cozy Pool House 5:

  • Buitenafmetingen met dakoverstek: 437,6 x 437,6 cm
  • Afmetingen bodem: 418 x 418 cm
  • Vloeroppervlak tuinhuis: ca. 16,74 m²
  • Hoogte zijwanden: ca. 222 cm
  • Totale hoogte: ca. 239,4 cm
  • Inhoud tuinhuis: ca. 38,79 m³
  • Dakhelling: 1,5°
  • Wanddikte: 44 mm
  • Kleur: naturel/antraciet
  • Kleur binnenkant: onbehandeld, naturel
  • Materiaal: Scandinavisch vurenhout
  • Bouwmethode: Plug-in/schroefsysteem
  • Schuifdeuren met glas en aluminium frame
  • Ramen (vast) met helder glas en aluminium frame
  • Vensterbeglazing: 4 mm ESG-glas (gehard veiligheidsglas)
  • 18 mm dak- en vloerdelen met messing en groef
  • incl. geïmpregneerde onderconstructie

Inbegrepen bij de levering van het tuinhuis:

  • Alpholz Cozy Pool House 5
  • Vloer
  • 2x schuifdeur 204 x 202,6 cm bestaande uit 2 elementen
  • Schuifdeur 400 x 202,6 cm bestaande uit 4 elementen
  • 1x vast raam
  • Montage materiaal
  • Montage tekening

De dakbedekking is optioneel verkrijgbaar.

Accessoires en services
2 Accessoire(s) zijn zojuist geselecteerd (inclusief onze aanbevelingen). De juiste hoeveelheden zijn vooraf ingesteld.

Dit heb je nodig voor de montage

Spaarset Basisaccessoires en Montage ES

Meer details weergeven

Spaarset Basisaccessoires en Montage ES

Vochtscherm, stormhoek

Basistoebehorenset met tot 20% besparing ten opzichte van individuele aankoop!

De minimale set voor een veilige bouw en verankering van uw tuinhuisje.

Wij raden deze set sterk aan bij elk tuinhuisje. Deze producten zijn nodig om uw tuinhuis te beveiligen tegen vocht en storm. Met deze basisset - ontworpen op maat van uw huis - heeft u gegarandeerd jarenlang plezier van uw tuinhuis!

Deze set is ontworpen voor tuinhuizen met een vloeroppervlak van 0 - 20 m². Met deze set heeft u alles wat u nodig heeft voor de veilige bouw en verankering van uw tuinhuis in één klik - en in voldoende hoeveelheid.

Bestaande uit:

  • Vochtscherm (set van ca. 100 stuks)
  • Stormhoek (set van 4 stuks)

Beschrijving Vochtscherm:

Onderleggers van speciaal rubbergranulaat voor draag- en funderingshout.

Rubbergranulaat pads worden gebruikt als vochtscherm en om oneffenheden bij de bouw van de onderconstructie van een tuinhuis te egaliseren. Ze worden onder de onderconstructie geplaatst of op de funderingsplaat gelegd. In het beste geval worden de pads om de 30-40 cm gelegd. Omdat de pads van een speciaal rubbergranulaat zijn gemaakt, kunnen ze geen water opnemen of rotten. Het rubber beschermt de onderbouw van uw tuinhuisje tegen optrekkend vocht en voorkomt zo verwering en rotting van de onderbouw. Tegelijkertijd zorgt de verhoogde structuur voor afwatering en kan water gemakkelijk wegstromen, terwijl een perfecte luchtcirculatie onder de funderingsbalken is gegarandeerd.

Voordelen van onze speciale rubbergranulaat pads

  • Geen scherpe randen
  • Bescherming tegen optrekkend vocht
  • Dampdoorlatend
  • Absorberend voor contactgeluid
  • Compenseert oneffenheden in de vloerplaat
  • Antislip
  • Rot niet, want gemaakt van 100% rubber
  • Dimensioneel stabiel
  • Geen stilstaand vocht onder het hout
  • Dient als drainage, water kan in alle richtingen weglopen

Afmetingen van de pads:

60 x 60 x 6 mm (lengte x breedte x dikte).

Inhoud per verpakkingseenheid

Een verpakkingseenheid bestaat uit ca. 100 stuks speciale rubbergranulaat pads.

Beschrijving stormhoek:

Speciale stormhoekset (4 stuks) voor de bevestiging van het tuinhuis aan de fundering.

In gebieden die bijzonder gevoelig zijn voor wind adviseren wij uw tuinhuis met onze speciale stormbeugels aan de fundering of bodemplaat te bevestigen. De beugels kunnen zowel binnen als buiten in minstens alle vier de hoeken van uw tuinhuis aan de bodemplaat worden bevestigd. De speciale hoek heeft een extra lange poot en verbindt zo de fundering of bodemplaat met het funderingshout en de eerste twee rijen stammen. Bij grotere tuinhuizen of blokhutten moeten naast de vier hoeken
in het midden van elke muur naast de vier hoeken. Wij leveren de stormhoeken zonder bevestigingsmateriaal (schroeven & pluggen).

Verpakkingseenheid per set:

Een set bestaat uit 4 speciale stormhoeken (zonder bevestigingsmateriaal).

Afmetingen: ca. 28,5 x 9 x 6,5 cm; materiaaldikte: ca. 0,5 cm.

 

 

€ 69,00

Besparing set dakbedekking KSK G WP 20 m² -

Meer details weergeven

Besparing set dakbedekking KSK G WP 20 m²

KSK dakbaan en hoekprofielen incl. tinsmith schroeven

Dakbedekkingsset - KSK met tot 20% besparing in vergelijking met afzonderlijke aankoop!

Het complete pakket voor een regenbestendig dak.

Deze set is ontworpen voor tuinhuisjes met een dakoppervlak tot 20 m². Met deze set heb je alles wat je nodig hebt voor een regenbestendig dak voor je tuinhuisje in één klik - en in voldoende hoeveelheid.

Bestaande uit:

  • KSK dakbaan (10 rollen)
  • Hoekprofiel type 1b (10x 2m)
  • Tinsmidschroeven met afdichtschijven (2x 20 stuks)

Beschrijving KSK dakbaan:

De KSK dakbaan is een zelfklevende bitumen dakbaan die snel, eenvoudig en veilig gebruikt kan worden om tuinhuisjes, garages, carports of soortgelijke kleinere constructies af te dichten zonder gebruik te maken van vlammen.

Productdetails van de KSK dakbaan

  • Afmeting: 0,5 x 5m
  • Dikte: ongeveer 4,0 mm
  • Dakhelling vanaf 5°
  • Verwerkingstemperatuur: +15 tot +35 °C
  • Kleur: antraciet

Artikelomschrijving Hoekprofiel type 1b:

Om de duurzaamheid van je dakbedekking op lange termijn te garanderen, is het noodzakelijk om de naden tussen de bitumenmembraan of dakfolie en de dakdoorvoeren af te dekken om te voorkomen dat vocht binnendringt en de dakbedekking loslaat.

Het aluminium hoekprofiel type 1 beschermt niet alleen de gootstukken op platte daken en sheddaken tegen vocht, maar zorgt ook voor een schone en visueel aantrekkelijke dakafwerking.

  • Voor de bovenste smalle kant van de boeiboorden op huizen met platte daken Aluminium antraciet
  • Afmetingen type 1b
  • A 30 mm
  • B 30 mm
  • C 15 mm
  • Lengte 2 m
  • Dikte: 0,5 mm

Artikel omschrijving Tinsmidschroeven:

Tinsmidschroef met V2A afdichtschijf, geschikt voor bijv:

  • nokafdekking
  • hoekprofielen
  • dakplaten
  • in-situ platen
  • en nog veel meer.

Technische details:

  • Afmeting: 4,5 x 20 / Torx
  • Kleur: Antraciet RAL 7016
  • Inhoud: 20 st.

Wij raden 4 schroeven per profiel aan

Dit accessoirepakket is berekend met algemene hoeveelheden die nodig zijn voor het tuinhuisje. De hoeveelheden kunnen anders worden gebruikt door verschillende installatietechnieken. Bij twijfel raden we aan de artikelen afzonderlijk te kopen.

€ 499,00

Loodgieter Schroeven 4,5x20

Meer details weergeven

Loodgieter Schroeven 4,5x20

Product omschrijving:

Spengler schroef met afdichtingsring van V2A, geschikt voor bijv:

  • Nok Nokbedekking
  • Hoekprofielen
  • Dakranden knipperen
  • Locatieplaten
  • en nog veel meer

Technische details:

  • Afmetingen: 4,5 mm diameter en 20 mm lengte / Torx
  • Kleur: Antraciet RAL 7016
  • Inhoud: 20 stuks.

Gelieve het aantal schroeven te wijzigen in de gewenste hoeveelheid. 4 schroeven per profiel worden aanbevolen.

€ 19,00

Plat dak type 10

Meer details weergeven

Plat dak type 10

Voor cubus- en Plat dak zonder boeiboorden. Kan aan drie of vier zijden van het huis worden gebruikt. Kan worden gecombineerd met een Dakgoot of downpipe set

2-delige set bestaande uit:

  • 1x Type 10a Strip (buiten): A: 120mm B: 30mm C: 15mm D: 90° E: 225° F: 135
  • 1x Type 10b Strip (binnenin): A: 85mm B: 85mm C: 30mm D: 45° E: 135
  • Aluminium, Antraciet Gepoedercoat
  • Lengte: 200 cm elk
  • dikte: 0,80 mm

Schroeven zijn niet Leveringspakket. Geschikte loodgietersschroeven kunt u vinden op onze website.

 

€ 79,00

Funderingssteun kunststof - Robust

Meer details weergeven

Funderingssteun kunststof

Wijzig het aantal funderingsbalken naar het gewenste aantal.
Bereken gewoon de omtrek van het tuinhuisje of gereedschapsschuurtje en selecteer het juiste aantal funderingssteunen.

Deze kunststof funderingsbalk heeft een praktische druiprand die de eerste wandlaag beschermt tegen vocht.

  • Afmetingen: 35 x 85 x 3000 mm
  • Materiaal: Kunststof
  • Hoeveelheid: 1
  • Kan worden gebruikt in combinatie met vloer/fundatiebalken
  • verkrijgbaar in standaard uitvoering voor alle wanddikte 
  • Eenvoudig zagen van de funderingsbalken, mogelijk met elke in de handel verkrijgbare handzaag of decoupeerzaag

 

 

€ 49,00

Gereedschapsset voor montage

Meer details weergeven

Gereedschapsset voor montage

De perfecte gereedschapsset voor u samengesteld - zorgvuldig geselecteerd gereedschap dat in geen enkele montage mag ontbreken. Met deze set heeft u alles wat u nodig heeft voor de assemblage van uw nieuwe droomproduct met slechts één klik.
Laat niets aan het toeval over en zorg ervoor dat u de gereedschapsset krijgt met professioneel gereedschap dat door professionals wordt aanbevolen!

Inhoud van de set:

  • 2 paar werkhandschoenen maat 10,5 (XL)
    Het werken met hout geeft veel plezier, wat niet mag worden verminderd door een kleine splinter. Met werkhandschoenen worden dergelijke verwondingen vermeden.
  • Metalen hamer met rubberen bovenkant
    Niet elke hamer is geschikt voor het hameren van de planken, omdat de metalen bevestigingen te hard zijn voor contact met hout en deze bij het hameren beschadigen. Om dergelijke schade te voorkomen, is het aan te raden om een metalen hamer met een rubberen top te gebruiken. Omdat het hulpstuk afneembaar is, kan de hamer later voor andere werkzaamheden worden gebruikt.
  • Meetlint 5 m
    De regelmatige meting dient de geplande constructie, maar ook de stabiliteit. Vooral het probleemloos sluiten van deuren en ramen vereist precisiewerk tijdens de montage, wat gegarandeerd wordt door een rolmaat.
  • handzaag 400 mm
    Sommige producten bevatten dak- of vloerdelen die voor gebruik moeten worden aangepast. Met de handzaag in deze set is dit geen uitdaging.
  • waterpas 600 mm
    Aangezien u waarschijnlijk niet de Scheve Toren van Pisa in uw tuin wilt hebben, maar een stabiel en veilig tuinhuis, is het een goed idee om tijdens de bouw een waterpas te gebruiken om de schietloodlijn van de fundering en het product in de gaten te houden.
  • Spanband 6 m
    Alleen een recht huis is een veilig huis! Gebruik de spanbanden voor het loodgieterswerk en het rechtzetten van de wanden om de vereiste diagonale en hoekige afmetingen gemakkelijk te kunnen handhaven.
  • Platte borstel met 30 mm en 60 mm borstellengte
    De keuze van de kleur onderscheidt uw tuinhuis van dat van uw buurman. Met de juiste penselen zijn er geen grenzen aan uw individualiteit voor groter of kleiner schilderwerk. De set bevat daarom penselen voor het aanbrengen van impregnatie, verf en glazuur.
  • Schroefklem 500 x 120 mm
    Tijdens de montage worden de planken als plankringen op elkaar gelegd. De schroefklemmen houden de planken tijdens het proces op hun plaats en houden ze recht om de perfecte constructie te bereiken.
  • Skeletpatroonpers en transparante acryl
    Laat geen vocht door lekken het plezier van het nieuwe product bederven! Met de cartridgepers wordt de meegeleverde transparante acrylaat afdichtingsmassa op de betreffende gebieden aangebracht, zodat de afdichting vrijwel zonder sporen achter te laten plaatsvindt.

€ 99,00

PGH vloersteun kunststof - Instelbereik 3 - 6 cm

Meer details weergeven

PGH vloersteun kunststof

Deze vloersteun van nieuwe kunststof kan flexibel worden gebruikt en is in hoogte verstelbaar. Dit betekent dat elk oneffen oppervlak kan worden geëgaliseerd.

Artikelgegevens:

  • Afmetingen: ca. 16 x 16 x 5 cm
  • Materiaal: kunststof
  • Hoeveelheid: 1
  • Afstand tussen de afzonderlijke vloersteunen: ca. 30 cm
  • Verkrijgbaar in twee verschillende verstelbereiken
  • Maximale belasting 450 kg of 1400 kg
  • Kan worden gebruikt in combinatie met vloer/fundatiebalken

€ 39,00

KSK dakbaan 0,5 x 5m -

Meer details weergeven

KSK dakbaan 0,5 x 5m

De KSK dakbaan is een zelfklevende bitumen dakbaan die snel, gemakkelijk en veilig kan worden gebruikt om tuinhuisjes, garages, carports of soortgelijke kleinere constructies waterdicht te maken zonder gebruik van vlammen.

Koud zelfklevend

Eenvoudige installatie

Snelle verwerking

Artikelgegevens van de KSK dakbaan

  • Afmeting: 0,5 x 5m
  • Dikte: ongeveer 4,0 mm
  • Dakhelling vanaf 5°
  • Verwerkingstemperatuur: +15 tot +35 °C
  • Kleur: zilver

€ 59,00

ROOFPROTECT EPDM SET Nr. 32

Meer details weergeven

ROOFPROTECT EPDM SET Nr. 32

EPDM dakbanen zijn bij uitstek geschikt als dakbedekking voor tuinhuisjes, gereedschapsschuren en carports. Ze zijn ook geschikt als substraat voor een groendak, rekening houdend met de maximale dakbelasting. EPDM folies vervangen steeds meer de klassieke teerpapier dakbedekking.

Met onze EPDM-folieset krijgt u een dakbedekking die qua duurzaamheid nauwelijks te overtreffen is. Voor de montage hoeft u alleen maar de oppervlaktelijm rechtstreeks op de gereinigde dakplanken aan te brengen, de folie aan te drukken en uw tuinhuisdak blijft betrouwbaar waterdicht - en bij correct gebruik gegarandeerd voor de komende 20 jaar (materiaalgarantie van de fabrikant). Wij raden u aan de hoekprofielen, die ook als toebehoren verkrijgbaar zijn, te gebruiken om de dakplanken af te dekken.

 

goedgekeurde dakafdichting

recycleerbaar - kan bij uw eigen huishoudelijk afval

Wortelbestendig - ideaal voor latere groene dakbedekking

gemakkelijk te installeren - geen speciaal gereedschap nodig

waterdichting zonder naad uit één stuk

eenvoudig - veilig - duurzaam - duurzaam

 

Item beschrijving:

  • Afmetingen van de folie: 5,03 m x 5,8 m
  • Dikte 1,2 mm
  • gewicht per oppervlakte-eenheid: 1,5 kg/m²
  • Hoge temperatuurstabiliteit van -45°C tot +130°C
  • Bestand tegen weer en wind
  • UV-bestendig
  • Ozonbestendig
  • Wortelbestendig
  • Onderhoudsvrij
  • Beloopbaar
  • vrij van weekmakers
  • Gemaakt uit één stuk, waardoor 100% zekerheid van ondoordringbaarheid
  • Duurzaam elastisch, breukrek > 300
  • Ideaal als substraat voor groendaken
  • Voor de duurzaamheid van uw dakbedekking is het noodzakelijk de open voegen af te dekken met hoekprofielen of aluminium strips om te voorkomen dat vocht binnendringt en het zeil loskomt.

Omvang van de levering:

  • EPDM dekzeil gesneden van de rol
  • Benodigde oppervlaktelijm op waterbasis voor verlijming op hout en materialen op houtbasis (niet geschikt voor ondergronden zoals Styrodur), kleur wit
  • Roller met handvat

 

Hoe bepaalt u de juiste maat zeilen voor uw tuinhuis, carport of overkapping:

Muur of paal afmeting
+ grootte van dakoverstek x 2
+ 15-20 cm fascia hoogte x 2
= gewenste film grootte

€ 739,00

Accessoires voor je product

Windverankering voor Blokplanken

Meer details weergeven

Windverankering voor Blokplanken

Windverankering voor Blokplanken

Wij raden u aan om in bijzonder sterke windstreken uw tuinhuis te beveiligen met een extra Windverankering. De set bestaat uit stabiele draadstangen, die met behulp van speciale metalen beugels en trekveren in alle vier de hoeken van uw Tuin van buiten of binnen worden gemonteerd.


De draadstangen verbinden de onderste en de bovenste plank en voorkomen zo dat de afzonderlijke Blokplanken uit elkaar vallen en houden ze bij stormachtig weer mm.

Aangezien de afzonderlijke Blokplanken niet aan elkaar moeten worden geschroefd, is het vastzetten met deze set de beste manier om de planken met elkaar te verbinden.
 

De set bestaat uit 8x

draadstangen M6 x 1000mm (geschikt voor Montage alle 4 de hoeken) incl. aansluitbussen, Montage, trekveren en Montage met schroeven.

Het Montage (schroeven) is geschikt voor Blokplanken met een Wanddikte van 19-45 mm. Als u deze setmm voor dikkere stammen Blokplanken 45 mm), moeten de schroeven ter plaatse worden vervangen door langere schroeven !
 

Voor een 100% Stormbeveiliging adviseren wij een combinatie van deze set en de Hoekijzers voor bevestiging aan de Fundering.

 

 

€ 59,00

Houten Bar

Meer details weergeven

Houten Bar

Artikel omschrijving:

  • Buitenafmeting: 200 x 75 cm
  • Afmeting voet: 190 x 65 cm
  • Totale hoogte: ca. 110 cm
  • Diepte aanrecht: ca. 45 cm
  • incl. montagehandleiding & montagemateriaal
  • Materiaal dikte: 40 mm
  • Zij-aan-zij montage mogelijk

€ 699,00

Comfortgarantie

Meer details weergeven

Comfortgarantie

Welke producten worden door de comfortgarantie gedekt?

Onze comfortgarantie geldt uitsluitend voor producten die voor privégebruik bedoeld zijn. Daaronder vallen:

  • Tuinhuisjes en schuren – een plek om te ontspannen of om spullen op te bergen
  • Sauna’s – voor ontspanning en wellness in je eigen huis
  • Speeltoestellen voor kinderen – voor urenlang veilig speelplezier
  • Houten tuinpaviljoens – jouw eigen stukje paradijs in de tuin
  • Carports – betrouwbare bescherming tegen regen, sneeuw en zon
  • Garages – veilige opslag voor je voertuig en extra bergruimte

Je kunt vertrouwen op de kwaliteit van je product. Gaat er toch iets mis? Dan lossen we het snel voor je op.

Wat valt er onder de Comfortgarantie?

Met de comfortgarantie ben je goed beschermd. Gaat er iets kapot? Dan ontvang je gratis de juiste vervangende onderdelen voor:

  • Deuren – glasschade tot € 200
  • Ramen – glasschade tot € 200
  • Dakgoten – voor een goede waterafvoer
  • Deursloten – voor optimale veiligheid
  • Hang- en sluitwerk – voor het vervangen van kleine maar essentiële onderdelen
  • Dakbedekking – zoals dakleer, shingles of KSK-folie

Belangrijk om te weten:

De comfortgarantie dekt uitsluitend de levering van vervangende onderdelen. De installatie is niet inbegrepen en moet je zelf uitvoeren.
Met de comfortgarantie ben je optimaal beschermd en geniet je zonder zorgen van je product.

Garantievoorwaarden
Alle details en aanvullende informatie over de comfortgarantie.

Vragen?
Onze klantenservice helpt je graag verder!

€ 69,00

Accessoires voor buitengebruik

Gootingang

Meer details weergeven

Gootingang

Een gootingang  is de professionele afsluiting aan de dakrand. Het is de overgang van het dakoppervlak naar de dakgoot.

Materiaal: gegalvaniseerd staal, Gepoedercoat

Afmetingen: A: 60mm B: 125mm D: 15mm

Lengte: 200cm dikte: 0,50mm

Schroeven zijn niet Leveringspakket. Geschikte loodgietersschroeven vindt u op onze website.

€ 39,00

PGH Premium Tuinhuis Isolerende Grondlaag

Meer details weergeven

PGH Premium Tuinhuis Isolerende Grondlaag

PGH Isoliergrund is de witte speciale grondverf op waterbasis voor hout binnens- en buitenshuis.

Door de speciale formulering voorkomt PGH Isoliergrund het binnendringen van wateroplosbare, vlekken veroorzakende houtbestanddelen en daarmee de vorming van vlekken op het oppervlak van de coating. Het kan buiten en binnen worden gebruikt op alle hardhoutsoorten en zachthoutsoorten. Kan ook worden gebruikt voor het gronden van MDF, OSB en spaanplaat.

Toepassingsgebieden:

Hout voor binnen en buiten, b.v. hardhout en zachthout, alsook MDF, OSB en spaanplaat.

Eigenschappen:

  • isolerende voorbehandeling voor binnen en buiten
  • tegen het binnendringen van houtbestanddelen
  • op waterbasis
  • wit

Bereik:

  • 2,5l is voldoende voor ca. 20-25 m² met een enkele laag.

€ 59,99

PGH Premium Tuinhuis Residentieel Glazuur

Meer details weergeven

PGH Premium Tuinhuis Residentieel Glazuur

PGH Living Space Glaze is de zijdeglanzende, sneldrogende en waterafdunbare houtafwerking voor binnen.

PGH Living Space Glaze is milieuvriendelijk omdat het weinig schadelijke stoffen bevat, gemakkelijk is aan te brengen en waterdampdoorlatend is. Het is water- en vuilafstotend en beschermt zo het hout. Het kan ook worden gebruikt als primer voor latere coatings met verven op waterbasis. Dankzij de antidruppelinstelling is hij ook ideaal voor werkzaamheden boven het hoofd.

Toepassingsgebieden:

Hout binnenshuis, bv. sauna's (alleen buitenshuis), meubilair, deuren of houten lambrisering.

Eigenschappen:

  • vernisafwerking van hout voor binnen
  • waterafstotend en vochtregulerend
  • beschermt tegen vervuiling
  • zijdeglans

Bereik:

  • 2,5l is voldoende voor ca. 23-28 m² met één laag.

€ 49,99

PGH Premium Tuinhuis Weerbestendige Verf - Pastelblauw

Meer details weergeven

PGH Premium Tuinhuis Weerbestendige Verf

PGH Weather Protection Paint is een zijdeglanzende, sneldrogende en waterafdunbare houtafwerkingsverf voor buiten. PGH Weather Protection Paint is gemakkelijk aan te brengen, zeer weerbestendig en waterdampdoorlatend.

PGH Weather Protection Paint is UV-bestendig en, na de juiste voorbehandeling van de ondergrond en grondlaag, bij uitstek geschikt voor buitendeklagen op zacht- en hardhout. Bevat een geïntegreerde oppervlaktebescherming tegen algen- en schimmelaantasting. Niet gebruiken op zitmeubelen, tafelbladen of oppervlakken die in contact komen met voedingsmiddelen.

Toepassingsgebieden:

Hout voor buiten, bv. tuinhuisjes, carports, schuttingen of sauna's

Eigenschappen:

  • Ondoorzichtige beschermende coating voor buiten
  • UV- en weerbestendig
  • Vochtregulerend
  • zijdeachtige glans

Dekking:

  • 2,5 liter is voldoende voor ca. 13-20 m² met één laag

Let op: Kleuren kunnen variëren afhankelijk van het beeldscherm en zijn daarom niet bindend!

€ 59,99

Gootset RG 100 - voor 1 dakhelft tot 9 m - Antraciet metallic

Meer details weergeven

Gootset RG 100 - voor 1 dakhelft tot 9 m

Voor blokhutten met zijlengte tot 9 m, complete set voor 1 houten huiszijde.

Marley dakgootsets beschermen de muren en funderingen van tuinhuizen en blokhutten veilig en betrouwbaar tegen schade veroorzaakt door regenwater.

Voordelen:

  • Complete set met dakgoten, regenpijpen en bevestigingsmateriaal.
  • Gemakkelijk te monteren
  • Alles compleet in de set
  • Bestand tegen weer, UV en temperatuur
  • Slagvaste kunststof van hoge kwaliteit
  • Topkwaliteit - Made in Germany
  • 10 jaar garantie

Inhoud van de set:

  • 4x goot, halfrond 2 m RG 100
  • 2x goot, halfrond 1 m RG 100
  • 4x gootverbindingsschaal RG 100
  • 4x eindstuk voor links en rechts RG 100
  • 18x gootbeugel RG 100
  • 18x Afstelbeugel voor gootbeugel
  • 2x verbindingsstuk RG 100 / DN 75
  • 4x pijpbocht DN 75, 45
  • 2x standpijp DN 75 2 m
  • 4x buisklem met oogbout

€ 449,00

Houten terrasplanken set geïmpregneerd grenen

Meer details weergeven

Houten terrasplanken set geïmpregneerd grenen

De hoogwaardige terrasset van geïmpregneerd grenen overtuigt door zijn zeer brede toepassingsmogelijkheden. De set kan individueel en eenvoudig worden aangepast aan elk terras en kan eenvoudig worden uitgebreid met andere sets. Het hout van de planken en de onderconstructie overtuigt door zijn goede duurzaamheid. De schroeven zijn gemaakt van hoogwaardig en roestvrij roestvrij staal. Zo kun je lang van je terras genieten.

✓ Eenvoudige montage

✓ Individueel aanpasbaar

✓ Duurzaam hout

✓ Roestvrijstalen schroeven

Praktisch - directlevering aan huis

Artikelgegevens:

  • Lengte planken: 3 m (inhoud pakket: 3.045 m²)
  • Aantal planken/pakket: 7
  • Profielmaat: 28 x 145 mm
  • Profiel: één zijde grof gegroefd, één zijde geschaafd
  • Materiaal: KDI den

Inbegrepen in de levering:

  • 7 x drukgeïmpregneerde grenen terrasplanken van 3 m per stuk (pakketinhoud: 3.045 m²); profiel: 28 x 145 mm
  • 4 x onderconstructiebalken van 3 m; profiel 45 x 7 mm
  • 120 st. roestvrijstalen schroeven 5 x50 mm voor terrasplanken
  • 20 st. roestvrijstalen schroeven 5 x70 mm voor onderstructuur

Eenvoudige montage:

De set terrasplanken van 3 m² bestaat uit 7 stuks. Drukgeïmpregneerde grenen terrasplanken van 3 m, 4 stuks. onderconstructiebalken van 3 m, 120 stuks. roestvrijstalen schroeven 5 x 50 mm voor de planken en 20 st. RVS schroeven 5 x 70 mm voor de onderstructuur. De set kan afzonderlijk worden gecombineerd met andere sets van dezelfde houtsoort om grotere terrassen te creëren.

De terrasset is alleen geschikt voor privégebruik en mag niet worden gebruikt voor commerciële doeleinden. Gebruik de terrasset alleen zoals beschreven in deze instructies. Anders kan onjuist gebruik leiden tot persoonlijk letsel of schade aan eigendommen.

De terrasplanken en onderbalken kunnen afzonderlijk op maat worden gezaagd. De onderstructuur vormt een frame met tussenbalken. Dit frame wordt uitgelijnd en vastgemaakt aan de ondervloer met hellingen en afstandsblokjes of bv. terrasplanken of gazonstenen. De planken worden dan uitgelijnd en vastgeschroefd aan de ondervloer.

1. Ondervloer

De ondervloer moet bestaan uit een voldoende verdicht en vorstbestendig oppervlak met een lichte helling van 2-3%. Indien nodig kan de ondervloer ook worden voorbereid met een onkruidvlies.

2. De onderbalken worden gesneden en vastgeschroefd.

De onderbalken worden op maat gezaagd en aan elkaar geschroefd met RVS schroeven 5 x 70 mm zoals aangegeven in de illustratie, voorboren indien nodig. De afstand tussen de tussenliggers mag niet groter zijn dan 45-50 cm. Het frame van de onderconstructie wordt nu uitgelijnd op de ondervloer met een helling op de steunpunten en kan indien nodig worden vastgezet met pluggen of schroeven (niet meegeleverd). De steunpunten moeten ongeveer 50-60 cm uit elkaar liggen in de lengte- en dwarsrichting.

3. Zaag de terrasplanken op maat.

Zaag de terrasplanken op maat. De planken moeten aan de uiteinden ongeveer 2-10 cm boven de onderconstructie uitsteken. In de lengte mag 4 cm niet worden overschreden. Schroef de planken vast met roestvrijstalen schroeven van 5 x 50 mm. Bewaar een minimumafstand van 25 mm tussen de schroefpunten en de randzones van de plank om scheuren in het hout te voorkomen - boor voor indien nodig. Schroef de planken op alle kruispunten vast aan de ondervloer. De voegafstand tussen de planken moet 5-8 mm zijn.

4. Behandel de planken bij voorkeur met water.

Het is aanbevolen om de terrasplanken voor of na het plaatsen te behandelen met een beits of olie om ze beter te beschermen tegen weersinvloeden.

€ 249,00

Houten terrasdelen RedClass

Meer details weergeven

Houten terrasdelen RedClass

De hoogwaardige terrasset van Red-Class overtuigt door zijn zeer brede toepassingsmogelijkheden. De set kan individueel en eenvoudig worden aangepast aan elk terras en kan eenvoudig worden uitgebreid met extra sets. Het hout van de planken en de onderconstructie overtuigt door zijn goede duurzaamheid. De schroeven zijn gemaakt van hoogwaardig en roestvrij roestvrij staal. Zo kun je lang van je terras genieten.

Eenvoudige montage

Individueel aanpasbaar

Duurzaam hout

Roestvrijstalen schroeven

Praktisch - directlevering aan huis

Inhoud set:

  • 7 x houten terrasplanken van elk 3m
  • 4 x 3m onderbalken (4,5x7,0cm)
  • 120 x rvs schroeven 5x50mm voor houten terrasplanken
  • 20 x rvs schroeven 5x70mm voor onderstructuur

Artikel details:

  • Lengte planken: 300 cm (inhoud pakket: 3,045 m²)
  • Aantal planken/pakket: 7
  • Profielmaat: 28 x 145 mm
  • Profiel: één zijde grof gegroefd, één zijde geschaafd
  • Materiaal: Rood-Klasse

Inbegrepen in de levering:

  • 7x planken: 300 cm (pakketinhoud: 3.045 m²); profiel: 28 x 145 mm
  • 4x 3 meter onderstructuur; profiel 45 x 7 mm
  • 120 st. RVS schroeven 5 x 50 mm
  • 20 st. RVS schroeven 5 x 70 mm

Eenvoudige montage:

De set terrasplanken van 3 m² bestaat uit 7 stuks. Houten terrasplanken a 3m, 4 stuks. Onderconstructiebalken a 3m, 120 stuks. RVS schroeven 5x50 voor de planken en 20 st. RVS schroeven 5x70 voor de onderconstructie. De set kan afzonderlijk worden gecombineerd met andere sets van dezelfde houtsoort om grotere terrassen te creëren. De terrasset is alleen geschikt voor privégebruik en mag niet worden gebruikt voor commerciële doeleinden. Gebruik de terrasset alleen zoals beschreven in deze instructies. Anders kan onjuist gebruik leiden tot persoonlijk letsel of schade aan eigendommen.

De terrasplanken en onderbalken kunnen afzonderlijk op maat worden gezaagd. De onderstructuur vormt een frame met tussenbalken. Dit frame wordt uitgelijnd en vastgemaakt aan de ondervloer met hellingen en afstandsblokjes of bv. terrasplanken of gazonstenen. De planken worden dan uitgelijnd en vastgeschroefd aan de ondervloer. 1. Ondervloer

De ondervloer moet bestaan uit een voldoende verdicht en vorstbestendig oppervlak met een lichte helling van 2-3%. Indien nodig kan de ondervloer ook worden voorbereid met een onkruidvlies. 2. De onderbalken worden gesneden en vastgeschroefd.

De onderbalken worden op maat gezaagd en aan elkaar geschroefd met RVS schroeven 5x70 zoals aangegeven in de illustratie, voorboren indien nodig. De afstand tussen de tussenliggers mag niet groter zijn dan 45-50 cm. Het frame van de onderconstructie wordt nu uitgelijnd op de ondervloer met een helling op de steunpunten en kan indien nodig worden vastgezet met pluggen of schroeven (niet meegeleverd). De steunpunten moeten ongeveer 50-60 cm uit elkaar liggen in de lengte- en dwarsrichting. 3. Zaag de terrasplanken op maat.

Zaag de terrasplanken op maat. De planken moeten aan de uiteinden ongeveer 2-10 cm boven de onderconstructie uitsteken. Aan de lange kant mag 4 cm niet worden overschreden. Schroef de planken vast met roestvrijstalen schroeven van 5x50. Bewaar een minimumafstand van 25 mm tussen de schroefpunten en de randzones van de plank om scheuren in het hout te voorkomen - boor voor indien nodig. Schroef de planken op alle kruispunten vast aan de ondervloer. De voegafstand tussen de planken moet 5-8 mm zijn. 4. Behandel de planken bij voorkeur met water.

Het is aanbevolen om de terrasplanken voor of na het plaatsen te behandelen met een beits of olie om ze beter te beschermen tegen weersinvloeden.

€ 249,00

Accessoires voor binnengebruik

PGH hardwasolie 2,5 L

Meer details weergeven

PGH hardwasolie 2,5 L

Hoogwaardige hardwaxolie voor binnen

Onze hardwaxolie biedt een hoogwaardige oplossing voor het gronden en behandelen van verschillende absorberende interieuroppervlakken. Met een zijdematte, slijtvaste afwerking die natuurlijke texturen doet herleven en tinten verdiept, biedt het de beste resultaten voor houten, kurk- en stenen vloeren en andere oppervlakken. Gemakkelijk in gebruik en getest volgens de hoogste normen, is het de ideale keuze voor professionele resultaten.

Artikelgegevens van de hardwaxolie:

  • Toepassing: Voorstrijken en behandelen van zuigende ondergronden binnenshuis.

  • Eigenschappen: Zijdemat oppervlak, verdiept de kleur, waterafstotend.
  • Getest op chemische weerstand en migratie.
  • Ingrediënten: Lijnolie, houtolie, ricinusolie, natuurlijke harsester, andere.
  • VOC-gehalte: Max. 440 g/l (EU-grenswaarde: max. 500 g/l).
  • Toepassing: Schudden voor gebruik, dun aanbrengen, polijsten.
  • Droogtijd: Ca. 6-12 uur, overschilderbaar na 16-24 uur.
  • Verbruik: 30-50 g/m²; dekking ca. 20 m²/l.
  • Opslag: Koel, droog en ongeopend ten minste 24 maanden houdbaar.
  • Verwijdering: Volgens plaatselijke voorschriften.
  • Opmerkingen: Kleurgegevens niet bindend, proeflaag aanbevolen.

€ 79,00

Basis Arrangementenset

Meer details weergeven

Basis Arrangementenset

Deze basisopruimset is de kers op de taart voor uw nieuwe tuinhuisje. Dankzij onze zorgvuldig samengestelde opruimset staan bezems, zagen en dergelijke niet langer in de weg, maar kunnen ze handig aan de wanden worden opgeborgen. Dit bespaart niet alleen ruimte, maar zorgt ook voor een uitnodigend en opgeruimd gevoel in de kamer.

De haken in de set hebben een hoog draagvermogen en zijn ideaal voor het sorteren en opbergen: Ladder, emmer, verlengsnoer, gieter, tuinslang, hark, schep, enz.

De opruimset bestaat uit:

  • 2 x standaardhaak, van gegalvaniseerde stalen buis, roestvrij, Ø 16 mm, diepte 80 mm, draagvermogen tot 60 kg.
  • 2 x standaard haken, van gegalvaniseerde stalen buis, roestvrij, Ø 16 mm, diepte 210 mm, max. belasting 60 kg
  • 2 x standaard haken, van gegalvaniseerde stalen buis, roestvrij, Ø 16 mm, diepte 285 mm, max. belasting 60 kg
  • 5 x kleine enkelvoudige haken van staal, Ø 8 mm, hoogte 8 cm, draagvermogen tot 50 kg
  • 1 x gecoat, rood dubbele haak, Ø 10 mm, diepte 70 mm, max. belasting 80 kg
  • 1 x houder voor 1 handvat, diameter 16-32 mm
  • 1 x fietshaak met bevestiging door het wiel
  • 1 x haak voor 1 handgereedschap, Ø 16 mm, hoogte 158 mm, breedte 166 mm, diepte 115 mm, max. belasting 30 kg

€ 49,00

Standaard Arrangement Set

Meer details weergeven

Standaard Arrangement Set

Deze opruimset is de kers op de taart voor uw nieuwe tuinhuisje. Dankzij onze zorgvuldig samengestelde opruimset staan bezems, zagen en dergelijke niet langer in de weg, maar kunnen ze handig aan de wanden worden opgeborgen. Dit bespaart niet alleen ruimte, maar zorgt ook voor een uitnodigend en opgeruimd gevoel in de kamer.

De haken in de set hebben een hoog draagvermogen en zijn ideaal voor het sorteren en opbergen: Ladder, emmer, verlengsnoer, gieter, tuinslang, hark, schep, enz. Sommige van de haken zijn ook gecoat ter bescherming.

De opruimset bestaat uit:

  • 2 x gecoate standaardhaken, van gegalvaniseerde stalen buis, roestvrij, Ø 16 mm, diepte 80 mm, draagvermogen 60 kg.
  • 2 x gecoate standaardhaken, van verzinkte stalen buis, roestvrij, Ø 16 mm, diepte 210 mm, max. belasting 60 kg
  • 2 x gecoate standaardhaken, van verzinkte stalen buis, roestvrij, Ø 16 mm, diepte 285 mm, max. belasting 60 kg
  • 5 x enkele haken van gegalvaniseerd staal, Ø 9 mm, hoogte 125 mm, breedte 40 mm, max. belasting 50 kg
  • 1 x gewikkeld, zwart dubbele haak, Ø 10 mm, diepte 165 mm, max. belasting 80 kg
  • 1 x multi-concept haaksteun met 3 ophangpunten, Ø 16 mm, hoogte 35 mm, lengte 27 mm, diepte 120 mm
  • 1 x gewikkelde fietshaak met bevestiging door het wiel
  • 5 x multifunctionele houders, Ø 10 mm, diepte 70 mm, draagvermogen tot 80 kg
  • 1 x haak voor 3 handgereedschappen, Ø 16-32 mm, hoogte 158 mm, breedte 166 mm, diepte 115 mm, draagvermogen tot 30 kg

€ 69,00

Premium Arrangement Set

Meer details weergeven

Premium Arrangement Set

Deze opruimset is de kers op de taart voor uw nieuwe tuinhuisje. Dankzij onze zorgvuldig samengestelde opruimset staan bezems, zagen en dergelijke niet langer in de weg, maar kunnen ze handig aan de wanden worden opgeborgen. Dit bespaart niet alleen ruimte, maar zorgt ook voor een uitnodigend en opgeruimd gevoel in de kamer.

De haken in de set hebben een hoog draagvermogen en zijn ideaal voor het sorteren en opbergen: Ladder, emmer, verlengsnoer, gieter, tuinslang, hark, schep, enz. Sommige van de haken zijn ook zwaar gecoat ter bescherming.

De opruimset bestaat uit:

  • 2 x in buis gevatte haken, Ø 20 mm, diepte 150 mm, draagvermogen 90 kg
  • 5 x gegalvaniseerde platte ijzeren haken, staal 1,2 mm dik, breedte 25 mm, diepte 25 mm, hoogte 73 mm
  • 1 x Pro houder voor 3 handgrepen, Ø 16 - 40 mm, diepte 285 mm, verschuifbaar op de bar
  • 1 x frame met 7 mini haakjes van gelakt staaldraad
  • 1 x dubbele haak, Ø 16 mm x 2, lengte 250 mm, draagvermogen tot 80 kg
  • 1 x in buis gevatte fietshaak met bevestiging door het wiel, Ø 20 mm
  • 5 x multifunctionele dubbele haken, breedte 75 mm, diepte 48 mm, hoogte 60 mm, draagvermogen tot 20 kg
  • 1 x dubbele haak in buis, Ø 20 mm, lengte 200 mm, draagvermogen tot 70 kg

€ 129,00

Beoordelingen

Gemiddelde waardering van 0 van 5 sterren

(0)

Gemiddelde waardering van 0 van 5 sterren

(0 Beoordelingen)
Productdetails
Details:
Aantal kamers
1
Breedte incl. dakoverstek
438
Diepte incl. dakoverstek
438
Vloer
Inclusief
Vloeroppervlak
19.18
Wanddikte
44

Populaire producten