Ga naar de hoofdinhoud Ga naar de zoekopdracht Ga naar de hoofdnavigatie
Advies
Sales Contact Image
Verkoop advies 030 202 5006
Onze hotline
Grijp nu de Black Friday-kortingen – goedkoper wordt het niet!

€ 2.599,00

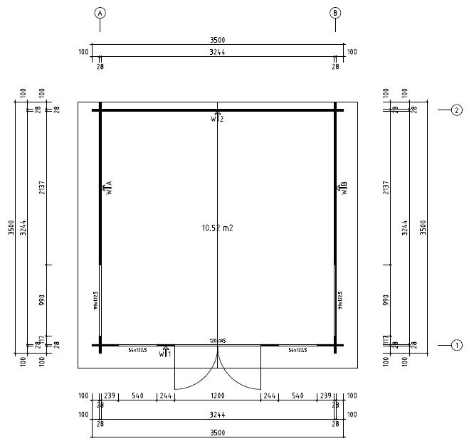
Tuinhuisje Gabriela-28 350 x 350 cm

De hieronder geselecteerde accessoires worden aan de winkelwagen toegevoegd.
Purchase Advice Image
Persoonlijk product- en aankoopadvies gewenst Tel: 030 202 5006
Vragen over het product en extra deal binnen halen?
Levertijd 7-8 weken
Skonto Icon
3% korting bij vooruitbetaling
Productvarianten
Beschermende impregnering kiezen:
Zonder beschermende impregnering
Levering in gewenst tijdvak
Passende accessoires bij dit product
Productbeschrijving

Het Gabriela tuinhuis maakt indruk met zijn vele ramen voor een prachtig panoramisch uitzicht op je tuin. Maak het jezelf gemakkelijk en neem even afstand van het alledaagse leven in je nieuwe Gabriela tuinhuis.

Alle logs met 4-voudige hoekfrezing

Hoogwaardige dubbele deur met glulam frame

inclusief vloer van rabatdelen

Artikelgegevens tuinhuis Gabriela-28:

  • Buitenafmetingen met dakoverstek: 388 x 370 cm
  • Afmetingen plint: 327 x 327 cm
  • Vloeroppervlak: 10,89 m²
  • Hoogte zijwanden: ca. 216 cm
  • Totale hoogte: ca. 256 cm
  • Inhoud: ca. 25,76 m³
  • Dakhelling: 14°
  • Dubbele deur in gelijmd gelamineerd hout: ca. 120 x 185 cm
  • 2 x enkel raam: 99 x 122 cm (klapraam)
  • 2 x enkel raam: 54 x 122 cm (draairaam)
  • Wanddikte: 28 mm

Inbegrepen bij het tuinhuisje:

  • Dak van rabatdelen
  • Vloer van rabatdelen
  • Alle logs met 4-voudig gefreesde hoeken
  • Deur- en vensterbeglazing van echt glas
  • Hoogwaardige dubbele deur met glulam frame
  • Slot, krukgarnituur, montagemateriaal & montagetekening
  • Levering zonder dakbedekking
  • Geleverd in naturel zonder kleurbehandeling

Wij willen u erop wijzen dat het product voortdurend verder wordt ontwikkeld en daarom op details kan afwijken van de getoonde foto. Met name afbeeldingen van klanten geven modellen weer die door klanten zijn aangepast.

Accessoires en services
3 Accessoire(s) zijn zojuist geselecteerd (inclusief onze aanbevelingen). De juiste hoeveelheden zijn vooraf ingesteld.

Dit heb je nodig voor de montage

Besparingsset Dakbedekking 6

Meer details weergeven

Besparingsset Dakbedekking 6

Dak vilt: V13, premium rechthoekige shingles zwart, schroeven en spijkers pakket:

Dakbedekking set met een besparing tot 20% ten opzichte van een enkele aankoop!

Het complete pakket voor uw regendichte dak

Deze set is samengesteld voor tuinhuizen met een oppervlakte van 15 - 18 m². Met slechts één klik heeft u met deze set alles wat u nodig heeft voor een regendichte dak van uw tuinhuis en in de juiste hoeveelheid

Bestaande uit:

  • dakbekleding V13 (3 rollen)
  • Premium rechthoekige shingles zwart (7 verpakkingen)
  • dakviltnagels (ca. 930 stuks)

Beschrijving dak vilt: V13:

Hoogwaardig dak vilt: V13 met speciale glazen vliesinleg voor optimaal gebruik als eenvoudige dakbedekking of als onderlaag bij het leggen van dakshingles. Het dak vilt voorkomt het binnendringen van water in het dak voor hellende en schilddaken. Bij platte daken of lessenaarsdaken wordt het dakbedekkingsvilt alleen als onderlaag gebruikt en moet het altijd met een tweede laag worden bedekt. Wij adviseren hierbij het gebruik van de KSK-dakbedekkingsmembraan of de Epdm-folie. Bij een juiste montage heeft het dak vilt V13 een levensduur van maximaal 10 jaar. Tijdens de productie wordt hoogwaardig glasvlies gedrenkt in bitumen en aan beide zijden bestrooid met fijn zand.

Let op: veel tuinhuisleveranciers bieden alleen het simpele dak vilt aan dat alleen geschikt is als een eenvoudige onderlaag en niet als enige dakbedekking mag worden gebruikt!

 

Beschrijving Premium rechthoekige shingles zwart:

Hoogwaardige rechthoekige bitumen dakspanen met een draagelement van glasvlies en een speciaal gekleurd mineraalgranulaat aan de bovenzijde. Het leggen van bitumen dakspanen voorkomt dat er water in de dakoppervlakte dringt en vormt tegelijkertijd een wind- en UV- bestendig oppervlak voor uw tuinhuis.

Deze dakshingle is door zijn bijzonder sterke glasvliesinleg en zijn materiaaldikte een absoluut topproduct en is niet te vergelijken met dakspanen uit de bouwmarkt!

Dak spijkers zijn bij deze set inbegrepen!

Dit accessoire pakket is berekend op basis van de algemene eisen die aan uw tuinhuis worden gesteld. Met verschillende legtechnieken kunnen verschillende voordelen van de hoeveelheden worden bereikt. Als u er niet zeker van bent, raden wij u aan de artikelen los te kopen.

€ 329,00

Spaarset Basisaccessoires en Montage S

Meer details weergeven

Spaarset Basisaccessoires en Montage S

Vochtscherm, stormhoek, windverankering

Basis accessoire set met tot 20% besparing ten opzichte van individuele aankoop!

De minimale set voor een veilige montage en verankering van uw tuinhuisje.

Wij raden deze set sterk aan voor elk tuinhuisje. Deze producten zijn nodig om uw tuinhuis te beveiligen tegen vocht en storm. Met deze basisset - ontworpen op maat van uw huis - heeft u gegarandeerd jarenlang plezier van uw tuinhuis!

Deze set is ontworpen voor tuinhuizen met een vloeroppervlak van 0 - 20 m². Met deze set heeft u alles wat u nodig heeft voor de veilige bouw en verankering van uw tuinhuis in één klik - en in voldoende hoeveelheid.

Bestaande uit:

  • Vochtscherm (set: ca. 100 st.)
  • Stormhoek (set: 4 stuks)
  • 1x windverankeringsset (set voor 2 zijden)

Omschrijving Vochtscherm:

Onderleggers van speciaal rubbergranulaat voor draag- en funderingshout.

Rubbergranulaat pads worden gebruikt bij de bouw van de onderconstructie van een tuinhuisje als een
Ze worden onder de onderbouw of op de funderingsplaat gelegd. In het beste geval worden de pads om de 30-40 cm gelegd. Omdat de pads van een speciaal rubbergranulaat zijn gemaakt, kunnen ze geen water opnemen of rotten. Het rubber beschermt de onderbouw van uw tuinhuisje tegen optrekkend vocht en voorkomt zo verwering en rotting van de onderbouw. Tegelijkertijd zorgt de verhoogde structuur voor afwatering en kan water gemakkelijk wegstromen, terwijl een perfecte luchtcirculatie onder de funderingsbalken is gegarandeerd.

Voordelen van onze speciale rubbergranulaat pads

  • Geen scherpe randen
  • Bescherming tegen optrekkend vocht
  • Dampdoorlatend
  • Absorberend voor contactgeluid
  • Compenseert oneffenheden in de vloerplaat
  • Antislip
  • Rot niet, want gemaakt van 100% rubber
  • Dimensioneel stabiel
  • Geen stilstaand vocht onder het hout
  • Dient als drainage, water kan in alle richtingen weglopen

Afmetingen van de pads:

60 x 60 x 6 mm (lengte x breedte x dikte).

Inhoud per verpakkingseenheid

Een verpakkingseenheid bestaat uit ca. 100 stuks speciale rubbergranulaat pads.

Beschrijving stormhoek:

Speciale stormhoekset (4 stuks) voor de bevestiging van het tuinhuis aan de fundering.

In gebieden die bijzonder gevoelig zijn voor wind adviseren wij uw tuinhuis met onze speciale stormbeugels aan de fundering of bodemplaat te bevestigen. De beugels kunnen zowel binnen als buiten in minstens alle vier de hoeken van uw tuinhuis aan de bodemplaat worden bevestigd. De speciale hoek heeft een extra lange poot en verbindt zo de fundering of bodemplaat met het funderingshout en de eerste twee blokken.
het funderingshout en de eerste twee rijen blokken. Voor grotere tuin- of blokhutten moet naast de vier hoeken ook in het midden van elke muur een hoek worden geplaatst. Wij leveren de stormhoeken zonder bevestigingsmateriaal (schroeven & pluggen).

Verpakkingseenheid per set:

Een set bestaat uit 4 speciale stormhoeken (zonder bevestigingsmateriaal).

Afmetingen: ca. 28,5 x 9 x 6,5 cm; materiaaldikte: ca. 0,5 cm.

Voor een 100% stormbescherming adviseren wij een combinatie van deze
set en de windverankeringsset voor de afzonderlijke blokplanken!

Beschrijving van de windverankeringsset voor blokhutten:

In bijzonder sterke windgebieden adviseren wij uw tuinhuis te beveiligen met een extra windverankeringsset. De set bestaat uit twee stabiele draadstangen, die met behulp van speciale metalen beugels en trekveren in twee tegenovergestelde hoeken van buiten of binnen uw tuinhuis worden gemonteerd. De draadstangen verbinden de onderste en bovenste blokplanken en voorkomen dat de afzonderlijke blokplanken uit elkaar bewegen en houden ze bij elkaar tijdens stormen. Aangezien de afzonderlijke planken niet aan elkaar mogen worden geschroefd
Aangezien de afzonderlijke planken niet aan elkaar mogen worden geschroefd, is het vastzetten met deze set de beste manier om de planken met elkaar te verbinden.

De set bevat:

4x draadstangen M6 x 1000mm incl. montagebeugels, trekveren en montagemateriaal met schroeven.

Het montagemateriaal (schroeven) is geschikt voor blokhutten met een wanddikte van 19-45 mm.
Als u deze set gebruikt voor dikkere stammen (meer dan 45 mm), moeten de schroeven ter plaatse worden vervangen door langere.
schroeven moeten door de klant worden vervangen door langere schroeven!

Voor een 100% stormbescherming adviseren wij een combinatie van deze set en de
stormhoekset voor bevestiging aan de funderingsplaat.

€ 139,00

Comfortgarantie

Meer details weergeven

Comfortgarantie

Welke producten worden door de comfortgarantie gedekt?

Onze comfortgarantie geldt uitsluitend voor producten die voor privégebruik bedoeld zijn. Daaronder vallen:

  • Tuinhuisjes en schuren – een plek om te ontspannen of om spullen op te bergen
  • Sauna’s – voor ontspanning en wellness in je eigen huis
  • Speeltoestellen voor kinderen – voor urenlang veilig speelplezier
  • Houten tuinpaviljoens – jouw eigen stukje paradijs in de tuin
  • Carports – betrouwbare bescherming tegen regen, sneeuw en zon
  • Garages – veilige opslag voor je voertuig en extra bergruimte

Je kunt vertrouwen op de kwaliteit van je product. Gaat er toch iets mis? Dan lossen we het snel voor je op.

Wat valt er onder de Comfortgarantie?

Met de comfortgarantie ben je goed beschermd. Gaat er iets kapot? Dan ontvang je gratis de juiste vervangende onderdelen voor:

  • Deuren – glasschade tot € 200
  • Ramen – glasschade tot € 200
  • Dakgoten – voor een goede waterafvoer
  • Deursloten – voor optimale veiligheid
  • Hang- en sluitwerk – voor het vervangen van kleine maar essentiële onderdelen
  • Dakbedekking – zoals dakleer, shingles of KSK-folie

Belangrijk om te weten:

De comfortgarantie dekt uitsluitend de levering van vervangende onderdelen. De installatie is niet inbegrepen en moet je zelf uitvoeren.
Met de comfortgarantie ben je optimaal beschermd en geniet je zonder zorgen van je product.

Garantievoorwaarden
Alle details en aanvullende informatie over de comfortgarantie.

Vragen?
Onze klantenservice helpt je graag verder!

€ 69,00

Gootset RG 100 antraciet metallic - voor 2 dakzijden tot 5 m elk

Meer details weergeven

Gootset RG 100 antraciet metallic - voor 2 dakzijden tot 5 m elk

Voor blokhutten met zijlengtes tot 5 m, complete set voor 2 houten huiszijden.

Marley dakgootsets beschermen de muren en funderingen van tuinhuizen en blokhutten veilig en betrouwbaar tegen schade veroorzaakt door regenwater.

Voordelen:

  • Complete set met dakgoten, regenpijpen en bevestigingsmateriaal.
  • Gemakkelijk te monteren
  • Alles compleet in de set
  • Bestand tegen weer, UV en temperatuur
  • Slagvaste kunststof van hoge kwaliteit
  • Topkwaliteit - Made in Germany
  • 10 jaar garantie

Inhoud van de set:

  • 4x goot, halfrond 2 m RG 100
  • 2x goot, halfrond 1 m RG 100
  • 4x gootverbindingsschaal RG 100
  • 4x eindstuk voor links en rechts RG 100
  • 18x gootbeugel RG 100
  • 18x instelhoek voor gootbeugel
  • 2x verbindingsstuk RG 100 / DN 75
  • 4x pijpbocht DN 75, 45
  • 2x standpijp DN 75 2 m
  • 4x buisklem met oogbout

€ 479,00

Gootingang

Meer details weergeven

Gootingang

Een gootingang  is de professionele afsluiting aan de dakrand. Het is de overgang van het dakoppervlak naar de dakgoot.

Materiaal: gegalvaniseerd staal, Gepoedercoat

Afmetingen: A: 60mm B: 125mm D: 15mm

Lengte: 200cm dikte: 0,50mm

Schroeven zijn niet Leveringspakket. Geschikte loodgietersschroeven vindt u op onze website.

€ 39,00

Accessoires voor je product

Standaard Arrangement Set

Meer details weergeven

Standaard Arrangement Set

Deze opruimset is de kers op de taart voor uw nieuwe tuinhuisje. Dankzij onze zorgvuldig samengestelde opruimset staan bezems, zagen en dergelijke niet langer in de weg, maar kunnen ze handig aan de wanden worden opgeborgen. Dit bespaart niet alleen ruimte, maar zorgt ook voor een uitnodigend en opgeruimd gevoel in de kamer.

De haken in de set hebben een hoog draagvermogen en zijn ideaal voor het sorteren en opbergen: Ladder, emmer, verlengsnoer, gieter, tuinslang, hark, schep, enz. Sommige van de haken zijn ook gecoat ter bescherming.

De opruimset bestaat uit:

  • 2 x gecoate standaardhaken, van gegalvaniseerde stalen buis, roestvrij, Ø 16 mm, diepte 80 mm, draagvermogen 60 kg.
  • 2 x gecoate standaardhaken, van verzinkte stalen buis, roestvrij, Ø 16 mm, diepte 210 mm, max. belasting 60 kg
  • 2 x gecoate standaardhaken, van verzinkte stalen buis, roestvrij, Ø 16 mm, diepte 285 mm, max. belasting 60 kg
  • 5 x enkele haken van gegalvaniseerd staal, Ø 9 mm, hoogte 125 mm, breedte 40 mm, max. belasting 50 kg
  • 1 x gewikkeld, zwart dubbele haak, Ø 10 mm, diepte 165 mm, max. belasting 80 kg
  • 1 x multi-concept haaksteun met 3 ophangpunten, Ø 16 mm, hoogte 35 mm, lengte 27 mm, diepte 120 mm
  • 1 x gewikkelde fietshaak met bevestiging door het wiel
  • 5 x multifunctionele houders, Ø 10 mm, diepte 70 mm, draagvermogen tot 80 kg
  • 1 x haak voor 3 handgereedschappen, Ø 16-32 mm, hoogte 158 mm, breedte 166 mm, diepte 115 mm, draagvermogen tot 30 kg

€ 69,00

Beoordelingen

Gemiddelde waardering van 0 van 5 sterren

(0)

Gemiddelde waardering van 0 van 5 sterren

(0 Beoordelingen)
Productdetails
Details:
Aantal kamers
1
Breedte incl. dakoverstek
388.1
Dakvorm
Zadeldak
Diepte incl. dakoverstek
370
Totale hoogte
256.5
Vloer
Inclusief
Vloeroppervlak
14.36
Wanddikte
28

Populaire producten