Ga naar de hoofdinhoud Ga naar de zoekopdracht Ga naar de hoofdnavigatie
Advies
Sales Contact Image
Verkoop advies 030 202 5006
Onze hotline
Dagen
20% korting op kleurensets | Code: COLOUR20

€ 4.339,00

Paasaanbieding | Tot €1.500 korting op veel producten

Gemiddelde waardering van 4.5 van 5 sterren

(2)

Tuinhuis Aktiva 40 Varianta

De hieronder geselecteerde accessoires worden aan de winkelwagen toegevoegd.
Purchase Advice Image
Persoonlijk product- en aankoopadvies gewenst Tel: 030 202 5006
Vragen over het product en extra deal binnen halen?
Levertijd 6-7 weken
Paid Delivery Icon
Veilig betalen
Skonto Icon
5% korting bij vooruitbetaling
Productvarianten
Beschermende impregnering kiezen:
Zonder beschermende impregnering
Levering in gewenst tijdvak
Passende accessoires bij dit product
Productbeschrijving

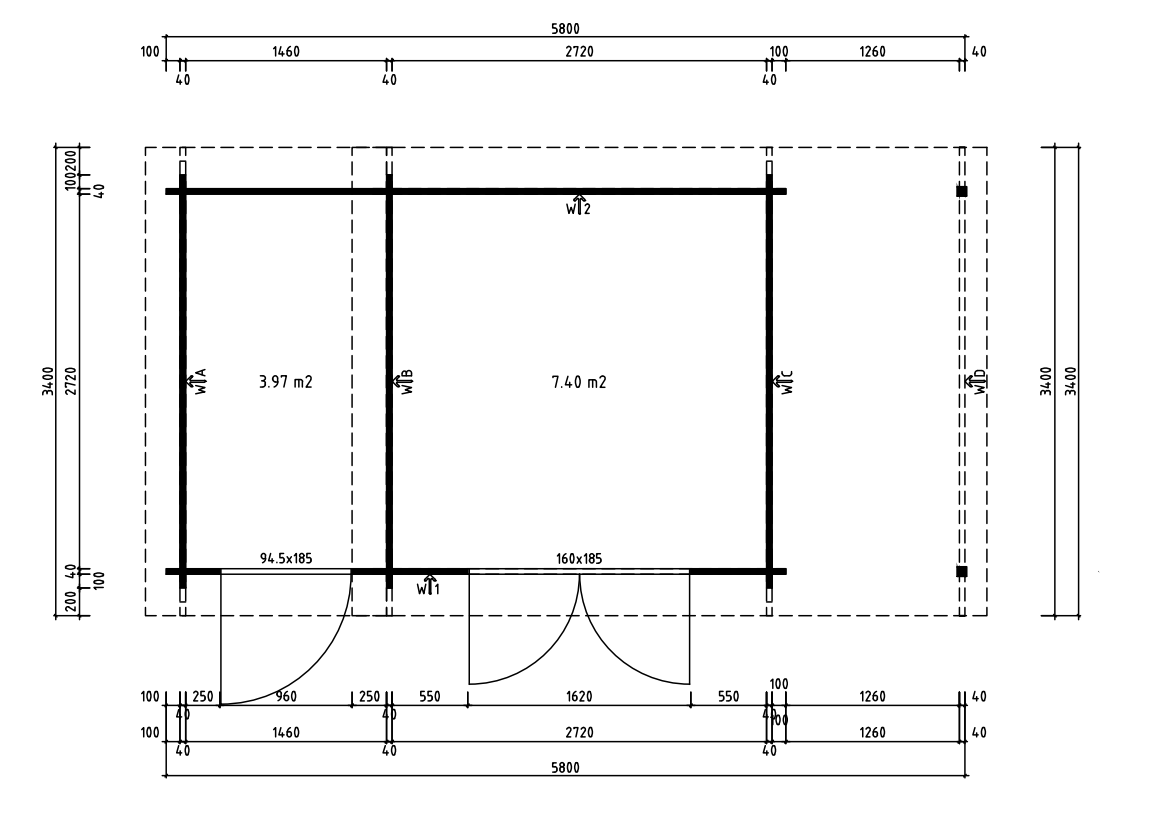
Productdetails van het tuinhuis Aktiva 40 Varianta :

  • Buitenafmetingen: 600 x 340 cm
  • Afmetingen plint: 426 x 272 cm
  • Hoogte zijwanden: ca. 205 cm
  • Totale hoogte: ca. 291 cm
  • Volume: ca. 25,2 m³
  • Glulam dubbele deur: ca. 160 x 185 cm
  • Glulam enkele deur: ca. 95 x 185 cm
  • Vast raam: ca. 111 x 19 cm
  • Wanddikte: 40 mm

Inbegrepen bij het Aktiva 40 Varianta tuinhuis:

  • Massief houten dak van rabatdelen
  • Alle logs met 4-voudig gefreesde hoeken (wind- en regendicht)
  • Beglazing voor deuren en ramen van echt glas
  • Hoogwaardige dubbele deur met verlijmd houten frame
  • Hoogwaardige massief houten enkele deur
  • Vast raamelement in het dak
  • Stevig luifeldak
  • Hoogwaardige aluminium dorpel
  • Stormstangen voor windbescherming
  • Slot, handgreepset & montagemateriaal
  • Geleverd in natuurlijke afwerking (zonder kleurbehandeling)
Accessoires en services
3 Accessoire(s) zijn zojuist geselecteerd (inclusief onze aanbevelingen). De juiste hoeveelheden zijn vooraf ingesteld.

Dit heb je nodig voor de montage

Spaarset Basisaccessoires en Montage S

Meer details weergeven

Spaarset Basisaccessoires en Montage S

Basis accessoire set met besparingen tot 20% vergeleken met losse aankopen!

De perfecte set voor de veilige montage en verankering van je tuinhuisje - biedt betrouwbare bescherming tegen vocht, wind en storm. Met slechts één klik krijg je alle belangrijke onderdelen in voldoende hoeveelheid voor een duurzame en stabiele structuur.

Bestaande uit:

  • Vochtscherm (ca. 50 stuks) van speciaal rubbergranulaat - beschermt tegen optrekkend vocht, egaliseert oneffenheden en zorgt voor drainage en luchtcirculatie.
  • Stormbeugels (set: 4 stuks) - Voor het stevig bevestigen van het tuinhuisje aan de fundering (schroeven & pluggen niet inbegrepen).
  • Windverankeringsset (set voor 2 zijden) - Verbindt de bovenste en onderste stammen en voorkomt dat ze uit elkaar worden geduwd tijdens stormen.

Onze aanbeveling

Voor optimale en permanente bescherming tegen storm en vocht raden we het gecombineerde gebruik van alle onderdelen in de set aan. Zo is je tuinhuisje optimaal beveiligd en betrouwbaar beschermd tegen weer en wind.

€ 139,00

Meer details weergeven

Spaarset Universeel houten Vloer set 12 m²

Universele houten vloeren set met een besparing tot 20% ten opzichte van een losse aankoop!

Passend bij het huis - Met deze set heeft u met één klik het juiste aantal houten vloerpakketten voor het door u gewenste product.

Inhoud van de set:

  • Tand- en groefplanken met een dikte van 18 mm, naturel 
  • Bijbehorend aantal plinten, met of zonder fabrieksimpregnering
  • Onder druk geïmpregneerde funderingshout
  • Materiaal van Noords sparrenhout

Houd er rekening mee dat de vloer zelf moet worden aangepast. Gedetailleerde montage-instructies zijn meegeleverd bij de set.

Deze set is berekend voor tuinhuizen met een vloeroppervlakte van 9,01 - 12 m². Als u er niet zeker van bent, raden wij u aan de artikelen los aan te schaffen. 

€ 0,00

Sparen set shingle dakbedekking - 24 m²

Meer details weergeven

Sparen set shingle dakbedekking - 24 m²

Jouw allround zorgeloos pakket voor een regenbestendig dak - met de complete set dakshingles bespaar je tot wel 20% vergeleken met wanneer je ze afzonderlijk koopt!

Leveringsomvang voor dakoppervlakken tot 24 m²:

- Premium rechthoekige dakshingles zwart (9 verpakkingen van elk 3 m²)

- Ondutiss Strong Air 120 onderlaagmembraan (3 rollen)

- Viltspijkers (9 verpakkingen)

- Bitumenlijm (3 tubes)

Premium rechthoekige dakshingles zwart:

Onze premium rechthoekige bitumen dakshingles maken indruk met een hoogwaardige dragerlaag van robuust glasvlies en een elegant, intens gekleurd mineraalgranulaat aan de bovenkant. Deze combinatie zorgt niet alleen voor een elegant uiterlijk, maar ook voor maximale bescherming: de shingles voorkomen op betrouwbare wijze dat water binnendringt, bieden een wind- en UV-bestendig oppervlak en geven je dak een elegante, onderhoudsvriendelijke look - langdurige schoonheid en betrouwbare weerbestendigheid.

Ondutiss Strong Air 120 onderlaagmembraan:

Het hoogwaardige, drielaagse polypropyleen onderlaag- en bekistingsmembraan biedt betrouwbare bescherming tegen wind en vocht en ondersteunt efficiënte thermische isolatie.

- Afmeting: 10 x 1 m

Dakviltpinnen:

De dakviltpinnen worden gebruikt voor een robuuste en weerbestendige bevestiging van de dakshingles en de onderlaagmembraan. Hun gegalvaniseerde oppervlak biedt een betrouwbare bescherming tegen corrosie.

- Afmetingen: 2,5 x L 15 mm

- Ø kop: 8 mm

- Gegalvaniseerd

- Hoeveelheid: ca. 200 g = ca. 133 stuks

Bitumenlijm:

Met deze hoogwaardige bitumenlijm kun je naast de dakviltpinnen ook windgevoelige shingles bevestigen en zo zorgen voor de ideale duurzaamheid van je dak - ook perfect voor snelle, betrouwbare reparaties. De lijm is direct klaar voor gebruik - niet verdunnen, niet verwarmen, gewoon aanbrengen en bevestigen.
Voor optimale hechting: Zorg ervoor dat het oppervlak schoon, droog en vrij van zand, bladeren of ander vuil is. Het oppervlak mag niet bevroren of bedekt zijn met vorst.

- Kleur: zwart

- Inhoud: 310 ml

- Voor gebruik op hout en bitumen

De accessoireverpakking is geoptimaliseerd voor de gebruikelijke benodigde hoeveelheden Afhankelijk van het type bevestiging en overlap kan het materiaalverbruik iets variëren.

€ 559,00

Dakrandfolie om Gevelplanken te bedekken

Meer details weergeven

Dakrandfolie om Gevelplanken te bedekken

Gevelplaat om de gevelplanken af te dekken.

  • Kleur: Antraciet
  • Materiaal: Gepoedercoat aluminium
  • Dikte: 0,8 mm
  • Diepte: 120 mm
  • Hoogte: 50 mm
  • Hoogte druiprand: 15 mm
  • Lengte: 2 m

Incl. blikschroeven

€ 39,00

Dachrinnenset RG 75 anthrazit metallic für 2 Dachseiten bis je 4 m

Meer details weergeven

Dachrinnenset RG 75 anthrazit metallic für 2 Dachseiten bis je 4 m

Voor blokhutten met zijlengtes tot 4 m, complete set voor 2 houten huiszijden.

Marley dakgootsets beschermen de muren en funderingen van tuinhuizen en blokhutten veilig en betrouwbaar tegen schade veroorzaakt door regenwater.

Voordelen:

  • Complete set met dakgoten, regenpijpen en bevestigingsmateriaal.
  • Gemakkelijk te monteren
  • Alles compleet in de set
  • Bestand tegen weer, UV en temperatuur
  • Slagvaste kunststof van hoge kwaliteit
  • Topkwaliteit - Made in Germany
  • 10 jaar garantie

Inhoud van de set:

  • 4x goot, halfrond 2 m RG 75
  • 2x gootverbindingsschaal RG 75
  • 4x eindstuk RG 75
  • 14x verstelbare gootbeugels RG 75
  • 2x verbindingsstuk RG 75 / DN 53
  • 4x pijpbocht DN 53, 45
  • 2x standpijp 2 m DN 53
  • 4x buisklem met oogbout

€ 479,00

Gootingang

Meer details weergeven

Gootingang

Een gootstuk is de professionele afwerking van de dakrand. Het is de overgangsplaat van het dakoppervlak naar de dakgoot. Het inzetstuk zorgt voor een gecontroleerde instroom van water in de goot.

Materiaal: gegalvaniseerd staal, poedercoating

Afmetingen: A:60 mm, B:125 mm, D:15 mm

Lengte: 200 cm

Dikte: 0,50 mm

Incl. blikschroeven

€ 39,00

Levering in gewenst tijdvak en services

Comfortgarantie

Meer details weergeven

Comfortgarantie

Welke producten worden door de comfortgarantie gedekt?

Onze comfortgarantie geldt uitsluitend voor producten die voor privégebruik bedoeld zijn. Daaronder vallen:

  • Tuinhuisjes en schuren – een plek om te ontspannen of om spullen op te bergen
  • Sauna’s – voor ontspanning en wellness in je eigen huis
  • Speeltoestellen voor kinderen – voor urenlang veilig speelplezier
  • Houten tuinpaviljoens – jouw eigen stukje paradijs in de tuin
  • Carports – betrouwbare bescherming tegen regen, sneeuw en zon
  • Garages – veilige opslag voor je voertuig en extra bergruimte

Je kunt vertrouwen op de kwaliteit van je product. Gaat er toch iets mis? Dan lossen we het snel voor je op.

Wat valt er onder de Comfortgarantie?

Met de comfortgarantie ben je goed beschermd. Gaat er iets kapot? Dan ontvang je gratis de juiste vervangende onderdelen voor:

  • Deuren – glasschade tot € 200
  • Ramen – glasschade tot € 200
  • Dakgoten – voor een goede waterafvoer
  • Deursloten – voor optimale veiligheid
  • Hang- en sluitwerk – voor het vervangen van kleine maar essentiële onderdelen
  • Dakbedekking – zoals dakleer, shingles of KSK-folie

Belangrijk om te weten:

De comfortgarantie dekt uitsluitend de levering van vervangende onderdelen. De installatie is niet inbegrepen en moet je zelf uitvoeren.
Met de comfortgarantie ben je optimaal beschermd en geniet je zonder zorgen van je product.

Garantievoorwaarden
Alle details en aanvullende informatie over de comfortgarantie.

Vragen?
Onze klantenservice helpt je graag verder!

€ 69,00

Accessoires voor je product

PGH hardwasolie 2,5 L

Meer details weergeven

PGH hardwasolie 2,5 L

Hoogwaardige hardwaxolie voor binnen

Onze hardwaxolie biedt een hoogwaardige oplossing voor het gronden en behandelen van verschillende absorberende interieuroppervlakken. Met een zijdematte, slijtvaste afwerking die natuurlijke texturen doet herleven en tinten verdiept, biedt het de beste resultaten voor houten, kurk- en stenen vloeren en andere oppervlakken. Gemakkelijk in gebruik en getest volgens de hoogste normen, is het de ideale keuze voor professionele resultaten.

Artikelgegevens van de hardwaxolie:

  • Toepassing: Voorstrijken en behandelen van zuigende ondergronden binnenshuis.

  • Eigenschappen: Zijdemat oppervlak, verdiept de kleur, waterafstotend.
  • Getest op chemische weerstand en migratie.
  • Ingrediënten: Lijnolie, houtolie, ricinusolie, natuurlijke harsester, andere.
  • VOC-gehalte: Max. 440 g/l (EU-grenswaarde: max. 500 g/l).
  • Toepassing: Schudden voor gebruik, dun aanbrengen, polijsten.
  • Droogtijd: Ca. 6-12 uur, overschilderbaar na 16-24 uur.
  • Verbruik: 30-50 g/m²; dekking ca. 20 m²/l.
  • Opslag: Koel, droog en ongeopend ten minste 24 maanden houdbaar.
  • Verwijdering: Volgens plaatselijke voorschriften.
  • Opmerkingen: Kleurgegevens niet bindend, proeflaag aanbevolen.

€ 79,00

Beoordelingen

Gemiddelde waardering van 4.5 van 5 sterren

(2)

Gemiddelde waardering van 4.5 van 5 sterren

(2 Beoordelingen)

Gemiddelde waardering van 5 van 5 sterren

Gemiddelde waardering van 4 van 5 sterren

Productdetails
Details:
Aantal kamers
2
Breedte incl. dakoverstek
600
Dakvorm
Lessenaardak
Diepte incl. dakoverstek
340
Totale hoogte
291
Vloer
Als accessoires
Vloeroppervlak
12
Wanddikte
40
spiegelbeeld constructie mogelijk voor
Ja

Populaire producten